3+kk na kraji Modřan u lesa - Ondřej Černovický - certifikovaný realitní makléř

3+kk na kraji Modřan u lesa

Insert Image

Rodinný byt na klidném místě, ke kterému náleží dvě garážová stání, je PRODANÝ.

Nejste ti, kdo chtějí bydlet uprostřed pole, ale zároveň vám nesedí ani rušné lokality s neustálým provozem? Na rozhraní Modřan a Komořan se nachází nově vybudovaná lokalita Modřanský háj, kterou jste možná dosud ani nezaregistrovali. A to je na ní právě to nejlepší - stojí bokem od silnic, u lesa a v klidu. Ale abyste nepojali podezření, že budete někde v Horní Dolní, tak pozor - odříznutí od centra města rozhodně nezůstanete. Na Palackého náměstí (dolní vestibul Karláku) se totiž prostřednictvím autobusu a tramvaje dostanete za rovných 30 minut. Auta, která v garáži můžete zaparkovat rovnou dvě, tak ke každodenní cestě do práce dost možná nebudete ani potřebovat. No a možná ani na výlety, kterých v jižní části okolí Prahy můžete vymyslet nespočet. Třeba na takovou Štěchovickou přehradu dorazíte po hodince jízdy na kole a to doslova od domu, který leží nedaleko cyklotrasy.

Insert Video

Okolí vás nadchne především pokud jste milovníky aktivního života a přírody. To ale neznamená, že byste si doma nemohli pěkně polenošit. Prostoru na to budete mít dost. Prostor v tomto případě neznamená jenom plochu, ale celkový dojem, který utváří také velké prosklené plochy. Velkoformátová okna jsou vybavená elektrickým roletami a ta v rodičovské ložnici také  zatemňovací fólií. Chybět vám nebude ani plácek k posezení při ranní kávě, kterou si můžete vychutnat na šestimetrové lodžii. Na tu lze vystoupit jak z obýváku, tak z hlavní ložnice. Oblečení poschováváte do vestavěných skříní, které jsou v bytě celkem 3. A to, co se nevejde nebo nepotřebujete každý den, to zase umístíte do 5 metrového sklepu. Tak jdeme na to!

Dispozice 3+kk
Velikost 67.3 m2 | čistá plocha bytu
Druhé podlaží cihlového domu

Orientace na východ | vnitroblok
2x garážové stání | sklep 5 m2
Lodžie 6 m2
Výstavba 2015 | Architektonický návrh A69

K dispozici okamžitě
30 min na Karlovo náměstí
 Poplatky 4.827 Kč + elektřina (3 osoby)

10.750.000 Kč

Virtuální prohlídka bytu

Abyste nemuseli studovat plánky a lovit ve fotkách, máme pro vás připravený model bytu. Ten si můžete projít na displeji i s nasazenými VR brýlemi. Využijte také funkci měření rozměrů (odchylka 3%).

Vítejte v hlavním prostoru vašeho nového bytu, který vyniká především velkou mírou prosvětlení. Velká okna orientovaná na východ a sever znamenají hodně světla, ale žádné problémy s letním přehříváním - silné slunce do oken totiž nepraží.

Pokud byste si ale i přes to řekli, že potřebujete klimatizaci, díky lodžii budete mít jednotku kam umístit. Lodžie nabízí příjemný výhled, mezi domy totiž převažuje zelená. Plocha lodžie činí 6 m2. Okno za sedačkou se leskne jako zrcadlo, jelikož je na něm natažená reflexní folie (z druhé strany samozřejmě klasicky průhledná).

Insert Image

Milým detailem, který prostor opticky zvětšuje, je řešení oken v čelní stěně bytu, kde mezi vstupem na lodžii a hlavní plochou oken není žádný nosný sloup. Plocha obýváku je 28 m2.

Barvy bytu jsou laděné do tlumených tónů, žádné divoké barvičky. Kamenný obklad u televize plní čistě dekorační účel.

Insert Image

Kuchyňská linka s ostrůvkem je do stěny zapuštěná vč. navazující zdi (sádrokartonový podhled), která eliminuje nevzhledné a nepraktické místo, kam se akorát chytá prach. Nad horními skříňkami tedy není žádná vodorovná plocha, vše je úhledně zarovnané do jedné vertikální linie.

Kdo nerad vaříte po tmě, potěší vás velké okno u kuchyně. A kdo naopak tmu chcete, můžete si okna zastínit elektrickými roletami.

Do ložnice můžeme proběhnout klidně přes lodžii. Velikost tohoto pokoje je 12.3 m2, je tedy nepatrně větší než dětský pokoj.

V zadní části vedle dveří se nachází velká a hluboká vestavěná skříň.

Když vyběhnete z ložnice na chodbu, doprava se můžete vydat směrem do obýváku, rovně pak k dalšímu pokoji. Odskočit si můžete na samostatnou toaletu, která je od koupelny oddělená.

Vestavěná skříň naproti koupelně má na svědomí, že vám pračka nebude strašit vedle vany. Ta se do koupelny vešla velká - rohová. A nechybí tu ani druhá toaleta, takže ranní boje o zasedací pořádek probíhat nebudou 🙂 

Ani v koupelně nečekejte žádné výstřelky. Velkoformátová dlažba v nenásilných barvách navazuje na barevné ladění zbytku bytu.

Velkou vestavěnou šatní skříň naleznete také u vstupních dveří do bytu. V bytě jsou tedy celkem dvě šatní skříně, ta druhá byla v ložnici. Třetí skříní je pak sekce s vestavěnou pračkou.

Posledním pokojem je pak dětská ložnice, která se nachází na začátku chodby.

Její velikost je necelých 12 m2 a je vybavena velkým oknem na severní stranu.

Všechna ostatní okna bytu (s výjimkou menšího v kuchyni) jsou orientovaná na východ. To je z bytu všechno, teď se přesuneme výtahem o kousek níž.

Společné části budovy jsou udržované a čisté. Přístup do bytu je bezbariérový.

Milé překvápko čeká na ty rodiny, kterým jedno auto nestačí. Takže vlastně na všechny 🙂 Sportovní náčiní a dětské haraburdí můžete schovat do pětimetrového zděného sklepa.

Ale jenom na zimu, na léto půjdou zase všechny tříkolky a traktůrky ven! V okolí domu je totiž spousta prostoru k vyblbnutí a také několik dětských hřišť.

Insert Image

Adresa bytu:
Štolcova 2160/3, 143 00 Praha 12 - Modřany

Vzdálenosti od domu:

Zastávka BUS Do Koutů - 150 m / 2 min chůze
(linka 117)
Zastávka BUS Komořany - 600 m / 8 min chůze
(linka 117, 139, 246 a noční 917)
BILLA - 600 m

Vlak Komořany - 1.200 m / 20 min chůze
Nájezd na Pražský okruh - 8 km / 5 min autem

Insert Image

Rozpis poplatků 2023

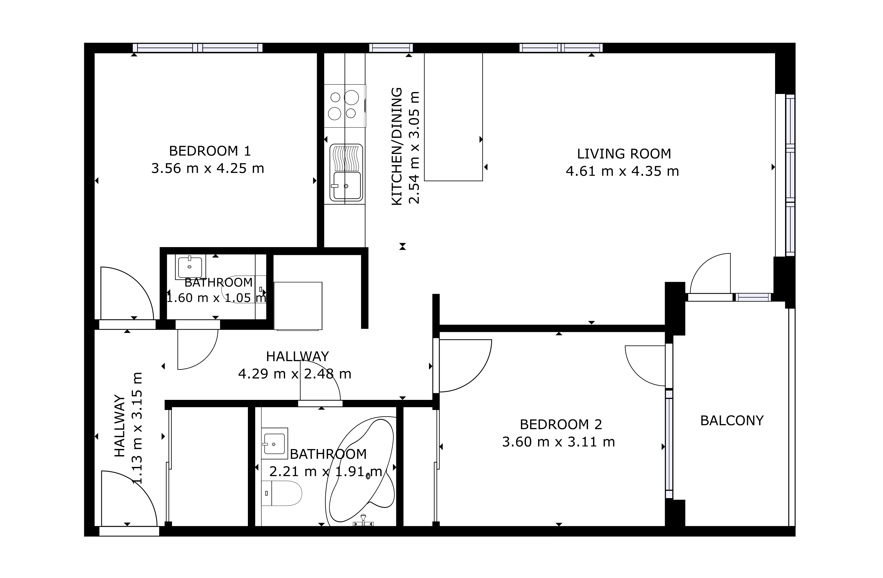
Půdorys bytu 

Vymezení dle prohlášení vlastníka

Výpis z katastru - předmět prodeje

Insert Image

rfwbs-slide

Reference

Co o mně říkají klienti?

Copyright © 2018. Všechna práva vyhrazena.

Vytvořil Tomáš Hlad.