Větší než byste na první pohled řekli. PRODÁNO.
Řadovky vždycky klamou tělem. 6 metrů na šířku a 10 metrů na délku se vám u bytu málo nezdá, ale u domu na první pohled možná ano. Přitom jsme mu při laserovém přeměření naměřili skoro 90 m2 a na pozemku, kde je plocha bezmála 250, se dá už hodně slušně vyřádit. Dům prošel v posledních letech řadou úprav a znamená to, že je úplně funkční a není potřeba do něj nijak zásadně investovat. Postaven byl před necelými 20 lety a to hlavní, co by vás trápilo, je po čerstvé výměně - tedy koupelna a kuchyně. Auto pohodlně zaparkujete na svém pozemku před domem, proběhnete přes překvapivě velký obývák, skoro třicetimetrový obývák, a hurá s masem na gril. Pokud vás už unavuje ruch Prahy a rádi byste o chloupek větší komfort, než naleznete v obyčejném bytě, pak je Unhošť skutečně zajímavým místem. Krásné a rozsáhlé lesy nadosah, skvělé dostupnost Prahy a na první pohled uvolněnější, klidnější charakter. Kdo chce mezi bytem a velkým samostatným domem ideální kompromis a mezistupeň, ten možná narazil na své budoucí bydlení. A ruku na srdce - v cenovce do 10 milionů korun zase tolik možností neexistuje. Určitě ne 15 km od cedule Praha.
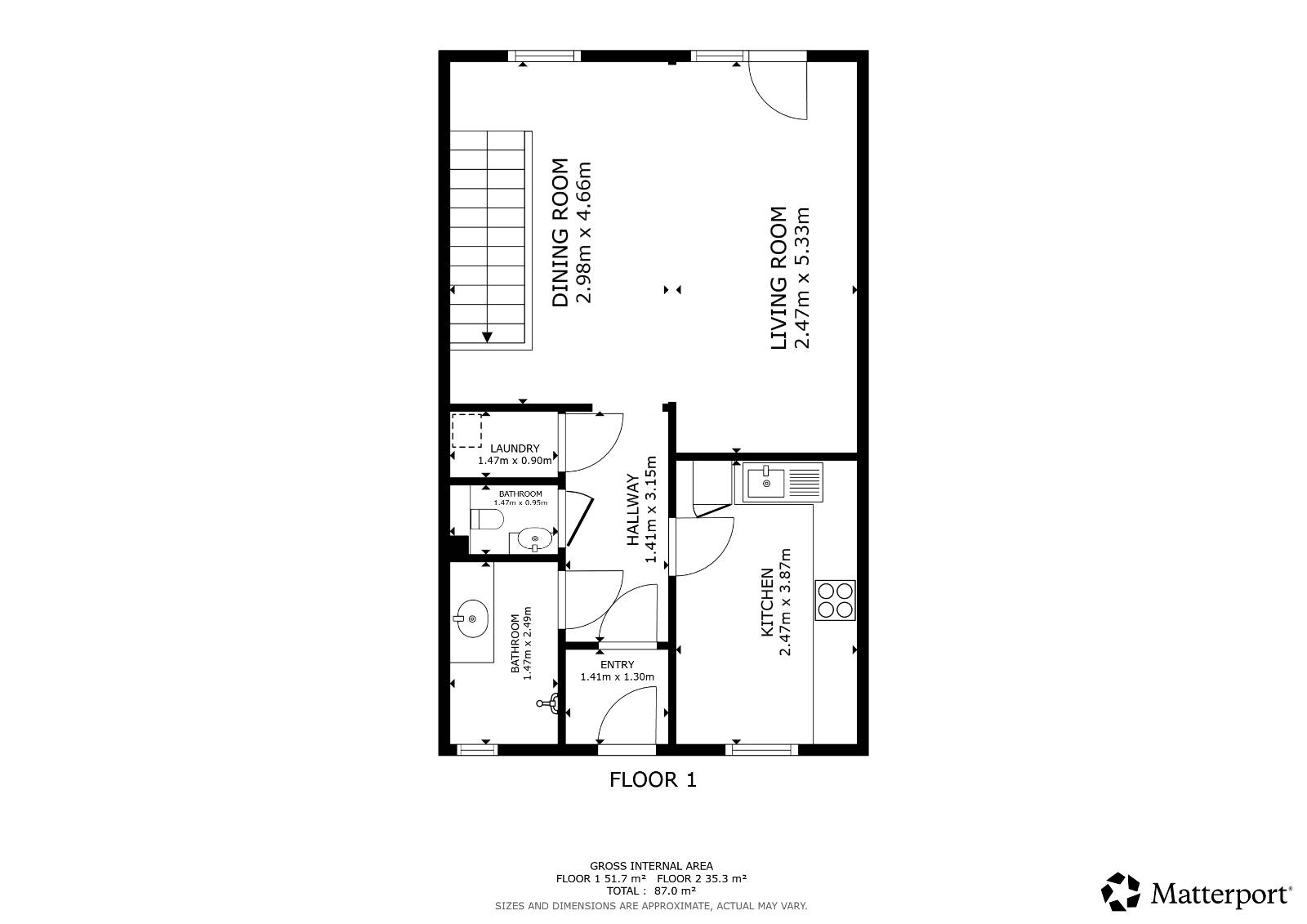
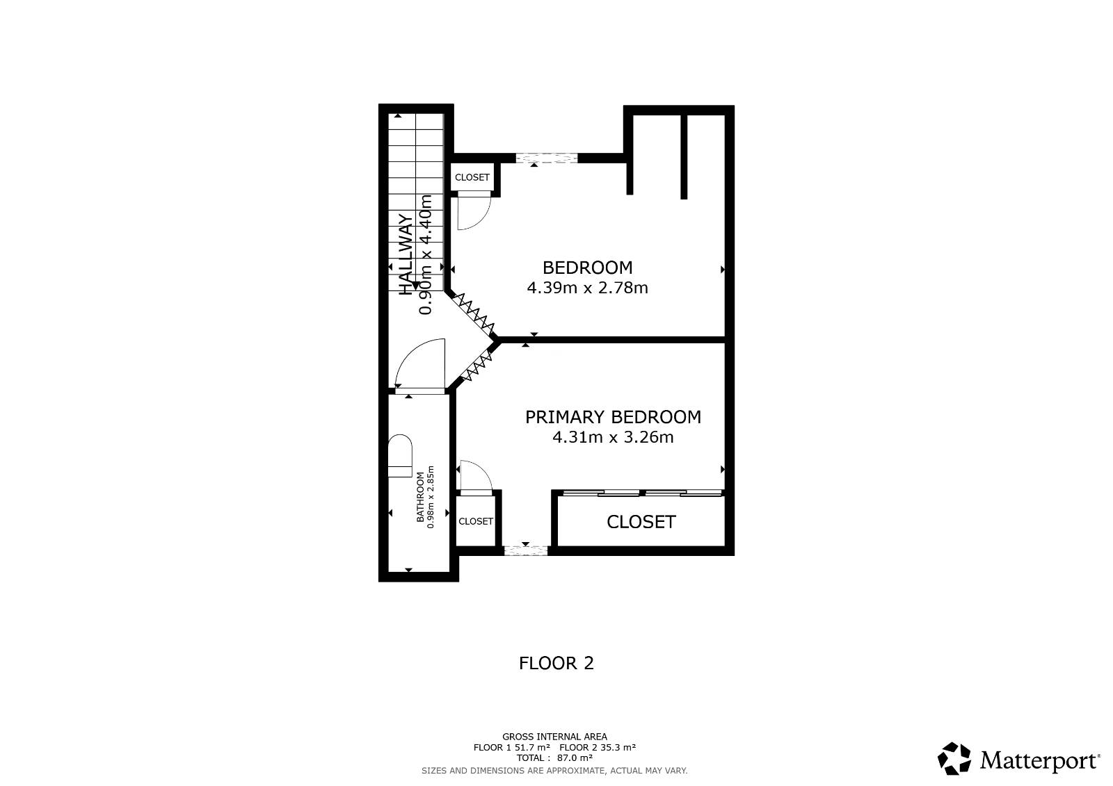
Dvě podlaží, obě ložnice nahoře a dole hlavní obytný prostor. Konkrétně v obýváku došlo k větší změně, kterou byl přesun kuchyňské linky do samostatné kuchyně. Trend, který se opět postupně vrací, má rozhodně svoje výhody. Samostatná kuchyně s jídelnou umožňuje vášnivějším kuchařům rozmach s větší linkou, těm hravým pak zase víc místa v obýváku na gauč nebo dětský plácek. Praktické překvapení pak přináší samostatná prádelna, která je navíc na jiném podlaží než ložnice. A možná úsměvný bonus, ale to jen do první vážné situace - je tu dvakrát WC a v obou případech je oddělené. Koupelna je nová a do sprchového koutu se vejdou nejen trpaslíci. Stojíte před ním a říkáte si - není moc malý? Pak ale vstoupíte dovnitř a uvědomíte si, že plocha zvenčí a zevnitř vypadá úplně jinak. A zejména pak dnes, kdy byty 3+kk v novostavbách začínají na výměrách kolem 65 m2, je tahle skoro devadesátimetrová tři plus jednička vlastně ještě velká. A to ještě nevíte, že další domy na vás čekají na zahradě 🙂
Dispozice 3+1 | 2 podlaží
1. NP 52 m2 | 2. NP 35 m2 | Podle laseru
74 m2 podle prohlášení vlastníka
Výstavba 2006 | Rekonstrukce 2022
Nová kuchyně | Vestavba podkroví | Koupelna
Pozemek 239 m2 | Parkování před domem
Zadní vstup na pozemek | Zahradní domek
Plyn | Elektřina | Vodovod | Kanalizace
Cihlová konstrukce | Vytápění plynem
BUS 350 m | Zličín 17 km
8.990.000 Kč
Virtuální prohlídka domu
Abyste nemuseli studovat plánky a lovit ve fotkách, máme pro vás připravený model domu. Ten si můžete projít na displeji i s nasazenými VR brýlemi.
Dům má dvě obytná podlaží a především 239 m2 pozemku. Necelých 40 m2 je před domem, za domem pak zhruba 140 m2. Dost místa na zahradní domek s grilováním, dětský domeček, bazének... No zkrátka všechno, na co v bytě musíte zapomenout.
Protože i děti musí mít svůj vlastní dům, mimo přístřešku pro grilování a zahradního domku tady naleznete i luxusní dětské zázemí.
Dospělí si radši roztáhnou gril nebo Mustanga schovaného za zahradním domkem, ale děti se tady vážně vyblbnou. Na zahrádku se dá vstupovat také zadními vrátky, takže nemusíte všechno nosit přes dům.
V nejširším bodě má pozemek cca 10 m, v nejužším pak 6 metrů. Na zahradu je pochopitelně vyvedená také voda. Orientace oken obýváku je čistě na jih, vstup je přes balkonové dveře.
Orientace i rozměr oken, která jsou téměř po celé délce místnosti, zajišťují skutečně spoustu světla. Obývák má celkem 28 m2 (se schodištěm).
Jednou z nejvýznamnějších úprav posledních let bylo přesunutí kuchyně do samostatné místnosti. Linka byla původně tam, kde vedle dveří vidíte dětský stoleček. Rozvody zde zůstaly.
Kuchyni tedy leze vrátit klidně tam, kde původně byla, ale...
...samostatná kuchyně s jídelnou má rozhodně své kouzlo. 10 m2 velká místnost tak nyní funguje také jako jídelna, obývák tak může plnohodnotně fungovat jako hlavní obytný prostor či herna, aniž by vás vyrušovalo vaření.
Linka je zánovní a pochopitelně je plně vybavená. Příjemné je také velké okno, díky kterému je v místnosti spousta světla. Naproti vstupu do kuchyně jsou pak dveře od koupelny a WC.
I koupelna prošla rekonstrukcí a plně respektuje potřeby i barevné ladění současných trendů. Skvělé je, že v koupelně nechybí okno pro větrání.
Klasickou miniaturní plastovou klícku s vaničkou nahradil velký zděný sprchový kout a na sousedním samostatném WC nechybí umývátko, takže nemusíte pořád běhat vedle. Nad WC si můžete povšimnout plynového kotle Junkers, který ohřívá vodu a vytápí dům.
Přesouváme se nahoru přes dřevěné schodiště. To je poměrně subtilní a opticky nenarušuje vzdušný dojem z obýváku.
Dětský pokoj má velikost lehce přes 11 m2 a také zde došlo na úpravu. Pod šikminou střechy totiž byly ukryté prostory, které původně byly bez využití. Velká škoda. Proto po levé straně okna vznikla vestavěná skříň a po pravé pak zase dlouhý prostor, kam lze schovat třeba hromadu hraček. Nejlépe to uvidíte na virtuální prohlídce, kterou určitě doporučuji projít.
Také v ložnici rodičů se využil prostor na maximum. Po obou stranách okna jsou velké vestavěné skříně. Plocha místnosti (bez skříní) je necelých 11 m2. Na střešním oknu je nainstalované stínění.
Výška pokojů v podkrovích je standardních 250 cm a sklon střechy není příliš prudký, šikminy tak prostor reálně příliš neomezují.
My téhle místnosti doma říkáme ,,Emergency *****". Prostě musí být dva záchody. Vrátíte se z výletu, nešťastný timing rozhodne, že zažívání dvou osob v jeden moment zavelí jisté povinnosti, a pak rozhodně oceníte, že máte dva porcelánové trůny. Že ten druhý není kdo ví jak luxusní je v tu chvíli docela jedno. Hlavní je se ... Od vstupních dveří, kde je prostor na botníky, to naštěstí není ani na jedno WC příliš daleko. Za tím horním je pak ještě docela dost místa, třeba na úklidové prostředky.
Na první pohled možná menší, ale dvě WC a technickou místnost tu máme. Pračka a sušička tak nemusí být nikde vystavená, abyste o ně každý den zakopávali. Oba dva spotřebiče jsou pěkně uklizené bokem. Navíc kdo chcete prát v noci, u spaní nebude rušení - obě ložnice jsou nahoře, pračka dole.
U některých sousedů můžete prostor (6 metrů na délku, 6 metrů na šířku) vidět upravený pro parkování dvou aut, my máme uzpůsobeno pro parking jednoho. Motorka se vám sem ale ještě vejde na pohodu. Vstupní prostor je zastřešen před nepřízní počasí.
Předzahrádka domu je od přístupové komunikace oddělena manuálními vrátky. Návštěvy na ulici zaparkují bez potíží.
Lokalita, ve které převažuje zástavba řadových domů, je jednoznačně tou klidnější částí Unhošti. Sotva tudy projede auto. Jak je to daleko do centra můžete vidět na fotce - na autobusák je to rovný kilometr (stejně tak škola neb školka). BUS vás na metro Zličín nebo Motol doveze za půl hodiny.
V Zahradách 1117, 273 51 Unhošť
Vzdálenosti od domu:
BUS Karlovarská | 320 m
(linka 365)
Aut. nádr. Unhošť | 1 km
(linky 307, 365, 386, 429)
COOP | 900 m
Penny | 1.200 m
Retail park LIDL | 1.800 m
ZŠ Unhošť | 800 m
MŠ Unhošť | 1 km
Metro Zličín | 18 km
Metro Motol | 20 km
Letiště | 17 km / 15 min
Kladno - Kaufland | 6 km
Půdorys | 1. NP
Půdorys | 2. NP
Mapa pozemku
Prohlášení vlastníka | Vymezení jednotky
































































