2+kk s bohatým příslušenstvím na Zličíně - Ondřej Černovický - certifikovaný realitní makléř

2+kk s bohatým příslušenstvím na Zličíně

Insert Image

Solidní plocha, dva sklepy, balkon, stání a komora. Co víc si přát od dvoupokojáku? Bohužel už je ale REZERVOVANÝ.

Možná ještě stav, který nebude vyžadovat žádnou rekonstrukci a umístění v novějším cihlovém domě nedaleko metra. Odškrtnout si teď můžete všechno zmíněné, protože tenhle byt v ulici Tulešická má všechna tato esa v rukávu. Nastěhovat se do něj můžete klidně hnedka, k dispozici je vám totiž okamžitě. A konečně vám nebudou všechny vaše věci přepadávat přes hlavu, protože jestli je něco skutečnou specialitou tohoto bytu, pak je to právě množství úložného prostoru. Místem pro velkou vestavěnou šatní skříň asi nikoho neodrovnáme, co ale taková samostatná komora hnedka u vstupu, ze které můžeme vybudovat například šatnu? Že nebude kam dát kola? K bytu je také sklep. Máte k tomu ještě rakev na auto, lyže, cokoliv dalšího? Sklep číslo dva je k vašim službám!

Insert Video

Zklamaní však nebudete ani z bytu samotného, protože ten bez sklepů i balkonu nabízí přes 56 m2 a třeba takový obývák dosahuje velikosti, které jsou dnes běžné pro nově stavěné 4+kk. Ty totiž podléhají snaze dostat co největší dispozici na co nejmenší plochu, v případě tohoto domu z roku 2009 je ale ještě všechno postaru - a to v dobrém slova smyslu. To znamená obývák o velikosti 27 m2 a ložnici, která má dalších skoro 15 metrů. V letních měsících oceníte sedmimetrový balkon, respektive lodžii - není totiž vysunutá z fasády domu a ze všech stran je chráněná. Klimatizaci díky východní orientaci nutně potřebovat nebudete, ale kdyby přeci jenom, právě díky lodžii je kam umístit venkovní jednotku.

Ani ne 10 minut chůze na metro nebo do jednoho z největších obchodních domů, zrovna tak pár minut chůze do starého Zličína a parků. Včetně cesty pěšky na metro jste na Václavském náměstí za rovnou půl hodinu. Periferní část Prahy, která je mimochodem skvěle dostupná díky nedalekého sjezdu z Pražského okruhu, v žádném případě neznamená odříznutí od centra. Chyby se tady hledají vážně těžko. Jasně, že kdo chce psa bít, hůl si vždycky najde. V případě tohoto bytu by však mohl dostat výprask spíše objektivní úsudek, budete-li na něm mermomocí hledat nějaké zvlášť závažné vady. V rámci své kategorie se totiž jedná skutečně o byt, od kterého můžete čekat víc jenom stěží.

Důležitou a velmi aktuální zprávou z poloviny října roku 2023 je to, že SVJ začalo s instalací solárních panelů na střechu domu. S dotací na pořízení ve výši 50% tak začne nová etapa tohoto bytového domu, která bude mít za následek podstatné snížení nákladů na jeho provoz (výkon 31 kWp). Ve všech bytech budou taktéž nově instalované vodoměry s dálkovým odečtem. SVJ tady rozhodně nespí, ostatně veškeré novinky z dění si můžete prohlédnout na jeho webu.

Dispozice 2+kk
Velikost 56.4 m2 | čistá plocha bytu
Druhé podlaží cihlového domu
Bezbariérový přístup

Orientace na východ | vnitroblok
Komora uvnitř bytu + garážové stání
Balkon 6.7 m2
Výstavba 2009 - Central Group

2x sklep | 3 a 2.9 m2
10 min pěšky na metro Zličín
30 min na Václavák
Poplatky 3.628 Kč + elektřina (2 osoby)

7.490.000 Kč

Virtuální prohlídka bytu

Abyste nemuseli studovat plánky a lovit ve fotkách, máme pro vás připravený model bytu. Ten si můžete projít na displeji i s nasazenými VR brýlemi. Využijte také funkci měření rozměrů (odchylka 3%).

Lodžie (balkon, chcete-li) je orientovaná směrem do vnitrobloku, tedy na východní stranu. Díku tomu má obývací pokoj téměř celou svou čelní stěnu kompletně prosklenou.

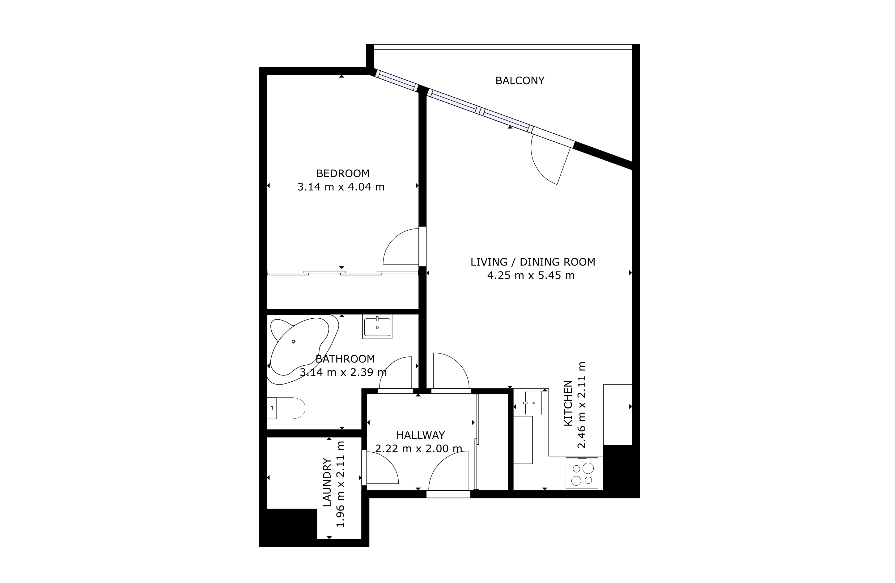
Nejedná se o žádného prcka, s plochou téměř 27 m2 se u tohoto bytu v obýváku mačkat skutečně nebudete. Mimo kuchyně se sem vejde i plnohodnotná jídelna a pokud nepotřebujete obří gauč, místa je dost i na pracovní koutek.

Insert Image

Kuchyně je vzhledem k velikosti bytu velká tak akorát. S tvarem do písmene U pojme všechny běžné spotřebiče a díky svému jednoduchému a nadčasovému provedení byste ji jenom těžko hádali svůj věk.

Častou bolestí bytů 2+kk je absence místa pro jídelnu, ne však v tomto případě. Žádný provizorní barový pultík, sem se totiž bez potíží vejde samostatný stůl.

Insert Image

S místem však nebojuje ani ložnice, která je přístupná přes obývák. Ani v ní nechybí velké okno směrem na lodžii.

A také prostor pro skutečně velkou vestavěnou šatní skříň. Velikost místnosti je 14.5 m2.

Malinká tu není ani chodba, její velikost je 6 m2 a posloužila k umístění další vestavěné skříně, kterou můžete vidět za vstupnímu dveřmi vpravo. Z chodby je přístup do koupelny i do samostatné komory.

Koupelna je ve tvaru L a její velikost je 6.1 m2. Pračku a sušičku v pohodě umístíte za sebe za rohem u vany, kde jsou pro ně připravené vývody. V koupelně vás taktéž čeká elektrické podlahové topení.

To nejlepší nakonec? Z praktického hlediska bezpochyby ano. Tato komora o ploše 3.3 m2 je samostatná a od zbytku místností oddělená. Na ploše 3.3 m2 tak můžete vytvořit například samostatnou šatnu. Budete se divit, ale v jednom bytě ve Strašnicích, který jsem loni prodával, byla v podobné místnosti vytvořená i malá hobby dílnička.

Jestliže mezi vaše hobby patří spíše po práci v klidu posedět u sklenky vína, na lodžii u bytu vás to bude zajímat nejvíc.

Pokud vyžadujete bezbariérový vstup až k vašim dveřím, pak pro vás mám dobrou zprávu. Prostřednictvím plošiny i výtahu se do bytu bez potíží dostanete i na vozíku.

K bytu náleží parkovací stání č. 297 a taktéž dvojice sklepů číslo 299 a 300. Jeden má 2.9 m2, ten druhý pak rovné 3 m2. Do jednoho kola a další sportovní náčiní, do druhého například vybavení pro auto.

Bytový dům z roku 2009 od společnosti Central Group se nachází na kraji sídliště směrem k parku Na Prameništi. Jeho specialitou jsou solární panely, které byly osazeny na střechu domu v říjnu roku 2023.

Ten začíná doslova pár kroků od domu, stačí akorát přejít silnici, kde začíná nezastavěná oblast. Po 15 letech je toto sídliště již etablované a nejedná se o ostrůvek bytů uprostřed pole.

Insert Image

Adresa bytu:
Tulešická 458/4, 155 21 Praha-Zličín

Vzdálenosti od domu:

ZLIČÍN - 900 m / 10 min chůze
Metro, autobusy, nákupní zóna

IKEA + TESCO - 2 km / 4 min autem
GLOBUS - 1.5 km / 3 min autem

Potraviny Sazovická - 200 m
ZŠ + MŠ Mišovická - 200 m
ZŠ + MŠ Nedašovská - 600 m
Park Na Prameništi - 200 m

Nájezd na Pražský okruh - 850 m
Letiště - 10 km / 10 min

Insert Image

Rozpis poplatků 2023

Půdorys bytu - bez balkonů

Půdorys podlaží domu

Umístění sklepů

Vymezení dle prohlášení vlastníka

Výpis z katastru - předmět prodeje

Insert Image

rfwbs-slide

Reference

Co o mně říkají klienti?

Copyright © 2018. Všechna práva vyhrazena.

Vytvořil Tomáš Hlad.