Dům s jedinečným výhledem u Říčan - Ondřej Černovický - certifikovaný realitní makléř

Dům s jedinečným výhledem u Říčan

REZERVOVÁNO. Atypický nový dům a výhled na hory v půlhodinovém dosahu centra Prahy.

Nabídek domů je plný internet. Toto není žádný obyčejný dům s malým pozemkem v satelitu. Tento dům vás totiž naprosto odrovná svým výhledem. Zdaleka tím ale nekončí. Pokud jste milovníci atypických řešení, přijdete si na své.

Když to někomu budu vyprávět, možná mi nebude ani věřit. Kousek od Říčan, půl hodiny od Prahy a z kuchyně výhled až na Krkonoše či Jizerky. Zkrátka přes 100 km absolutně volného výhledu až na hory.

Umístění je naprosto stěžejní parametr pro vaše nové bydlení. Tento luxus nabídne opravdu jen pár pozemků. Ostatně jeho unikátnost byla hlavním důvodem pro koupi současného majitele. Nyní nastal čas na novou životní etapu a dům čeká na vás.

Dobře totiž víte, že soukromí a něco extra je přesně to, co potřebujete pro spokojený život.  Obrovský pozemek, jezírka, bazén, další zděný objekt.  Navíc opravdu krásné a klidné okolí. Jednoduše ráj pro ty, kteří hledají něco speciálního.

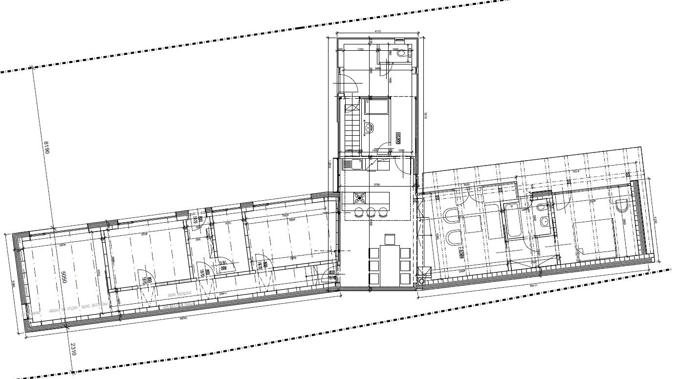
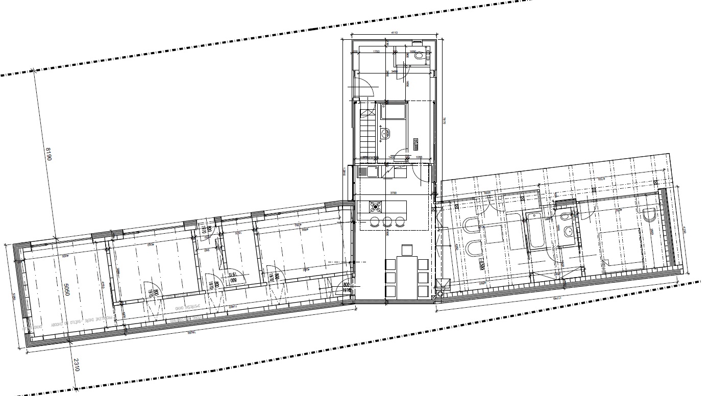
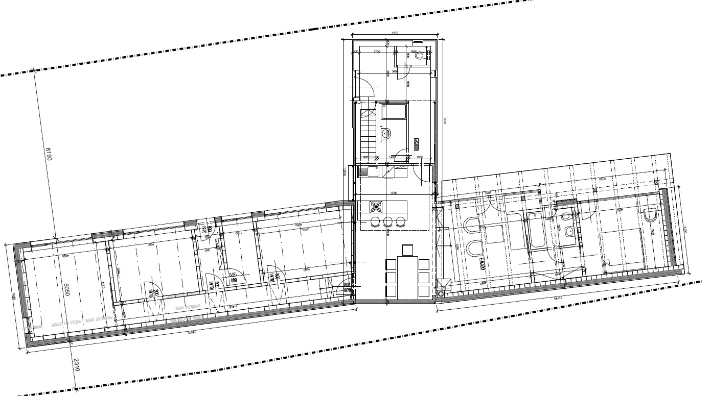
Zastavěná plocha domu: 177 m2
Kombinace zděného domu a dřevostavby
3 etapy rozšíření, 2012 až 2015
Fasáda a kuchyně 2019

Dispozice: 5+1
Obytná plocha: cca 145 m2 (bez sklepu)
Jedno podlaží + sklep 11 m2
Pozemky: 1.798 m2

90 metrová vrtaná studna
Elektřina cca 4000 Kč měsíčně při použití i pro topení
Bazén: 4x3 m a dvě jezírka

Voda na hranici pozemku, plyn u hlavní silnice. Kanalizace v obci není - jímka. PENB C.

Uvedené plochy odpovídají doloženému plánu a katastrální mapě.

Začneme pěkně zostra tím, co mě u tohoto místa odrovnalo úplně nejvíc. Když jsem se jel poprvé podívat na dům u Říčan, tohle jsem tedy rozhodně nečekal. V dáli můžete pozorovat hory a úplně volnou krajinu. Jelikož současný majitel pochází z Jeseníků, pohledu na hory se nechtěl vzdát ani u Prahy. Podařilo se mu to dokonale.

Výhled ale není to jediné, co pozemek nabízí. Jak dobře ukazuje fotka z dronu, pozemek má navíc naprosté soukromí. Z drtivé většiny plochy ho totiž neobklopují žádní sousedé. Vpravo je vidět alej stromů, kterou se dostanete do Škvorce. Žádné silnice a provoz v okolí domu, jen louky a pastviny.

Severní část domu nabízí obrovské prosklené plochy (11.6 a 11.3 m2), díky kterým tyto místnosti získávají obrovské množství přirozeného světla i vzdušnosti. Před oběma pokoji je umístěná venkovní terasa o délce 10 metrů. Před ložnicí nabízí místo pro posezení a výhled na zapadající sluníčko, které zapadá přímo za protějším stromem.

Vážně, nekecám! Vidíte to? Zapadající sluníčko svítí přímo do těchto oken. Do obývacího pokoje jsme vstoupili přes velké dvoukřídlé a prosklené dveře. Nachází se tu krb. Nevěřili byste, jak neuvěřitelně rychle dokáže tento prostor vyhřát. Mimo své praktické funkce je to navíc naprostá nezbytnost, copak by tento dům mohl být bez krbu? Dokonale sem zapadá. Mimo topení krbem je ve sklepě ještě 1000 litrová akumulační nádrž. Topení dřevem však v Třebohosticích vychází velmi zajímavě, palivo je tu totiž levné a tak se klidně vejdete do 10.000 Kč za topnou sezonu.

V severním křídle domu se nachází i tato úžasná ložnice o velikosti 14.2 m2. Celou její přední stěnu tvoří okno. V rukopise tohoto domu by plastová okna opravdu neseděla. Pochopitelně tu tak najdete dražší dřevěná okna s izolačním trojsklem. Jsou i ve zbytku domu a jejich pořízení vyšlo bezmála na tři čtvrtě milionu.

Obývací pokoj a zmiňovanou ložnici propojuje chodba, ve které je dostatek prostoru pro velkou vestavěnou skříň. Dveře proti skříni vedou do první koupelny.

Ach, to sluníčko. I v koupelně na vás přes vysoké okno vykoukne. Moderně pojatá koupelna je vybavena sprchovým koutem, k dispozici máme i druhou koupelnu. K té se dostaneme, nabízí pro změnu vanu.

A jsme zpátky v obýváku. Střední sekce domu je výš, než jeho krajní části. Byla by škoda prostor schodiště nijak nevyužít, a tak v něm najdete praktické úložné prostory. Milý detail, který v kombinaci s dalšími prozrazuje, že nad využitím prostoru se tu opravdu přemýšlelo.

Jídelní prostor společně s kuchyní se nachází v centrální části domu s dřevěnou podlahou a nabízí 24 m2. Jedná se o část domu, která je dřevostavbou. Obě zbylá křídla jsou pak z Ytongu. Zateplení nové fasády (2019) tvoří 15 až 20 cm polystyrenu.

Musím přiznat, že do kuchyně jsem se zamiloval a opravdu mě nadchla. A to vlastně ani nevíte, jaký je z ní neuvěřitelný výhled. Do domu se instalovala teprve loni a je tedy jako nová. Navíc je v ní opravdu hodně světla, k dispozici je hned několik velkých oken.

Pokračujeme do jižního křídla domu. První pokoj je ložnice o velikosti cca 13 m2, taktéž z okny na západ směrem do vzrostlé zahrady.

Hned vedle je potom malá pracovna (4.5 m2) a samostatný vstup do domu. Pokud tedy pracujete z domova, další vstup jistě oceníte. Vaši zákazníci totiž vůbec nemusí narušovat soukromou zónu domu, dokonce ani pozemku. Na jeho spodní část totiž není přes dům vidět. A v té první je tolik místa na parkování, že se sem bez problémů vejde i více aut.

Snad nám prominete, že v těchto místnostech nemáme uklizeno. Jedná se totiž momentálně o sklad a pracovnu. Ale i pracovnímu prostoru zapadající sluníčko propůjčuje kouzlo. Velikost této místnosti je 17 m2 a nachází se na kraji domu směrem k parkovacímu stání.

Toto je centrální chodba, ze které se dostanete do všech pokojů jižního křídla. I na té musí být dostatek světla a tak do stropu majitel nechal nainstalovat dva světlovody (stavební prvek pro přívod přirozeného světla do prostor bez oken). Zadní a největší pokoj (pracovna) je oddělen od chodby skleněnými posuvnými dveřmi, i ty důmyslně propustí na chodbu denní světlo. Na druhé fotce je pak hlavní vstup do domu. Za dveřmi vpravo je vstup do sklepa, vlevo potom velká vestavěná skříň.

Přes vstupní část domu je mimo vstupu do sklepa (11 m2) a oddělené toalety vstup do druhé koupelny s vanou. V této koupelně je zároveň i zázemí pro praní. Dveře jsou řešeny atypicky posuvným dřevěným křídlem.

Uvnitř už jsme viděli všechno , na zahradě je toho ale ještě hromada. První, na co narazíme, je pergola pro grilování. Na té je umístěn vysílač lokálního poskytovatele internetu. Internet je tedy výměnou za umístění zadarmo a kvalita signálu je špičková.

Dovolte mi vás ještě jednou upozornit, že ze všech těchto míst parcely koukáte na tohle.

Terén pozemku je v těchto místech svažitý a je rozdělen do několika teras. V soustavě jezírek se nyní chovají ryby. Schválně, kolik domů tohle nabídne? Koupat se v nich nemusíte, na to tu máme jinou parádu.

A tou je tento bazén o velikosti 4 x 3 m a hloubce 170 cm. Můžete u něj být od rána do večera, nikdo vás rušit nebude. Tato část pozemku nemá totiž žádné sousední stavby.

Úplně dole se pak nachází ještě jeden samostatný objekt, který je přímo za bazénem. Momentálně se využívá jako hudební zkušebna, můžete ale vymyslet cokoliv jiného. Je před ní zpevněná plocha a vrata směrem na louku. Ujdete pár kroků a narazíte na tohle. Okolí je to vůbec opravdu zajímavé, ke všemu se ještě dostaneme

Cítíte ten klid? Ať je sluníčko nebo už je po setmění, atmosféra tohoto místa je pořád naprosto klidná a příjemná.

Pozemek je opravdu velký a tak to zdaleka není všechno, pořád jsme ho prošli zhruba polovinu. Toto je zóna hlavního vstupu do domu a království malého motorkáře.

O trochu níž se potom nachází užitková část zahrady se záhonky. Na fotce vidíte oba vstupy do domu a jižní křídlo (to s dlouhou centrální chodbou).

Kam se vším harampádím, zahradním náčiním a sekačkou? No přece do dřevěného zahradního domku.

U zahradního domku je tato velká parkovací plocha, kam úplně bez problémů hodíte 3 auta. V přední částí pozemku je starý ovocný sad a 90 metrová vrtaná studna. Jeden z předchozích majitelů pozemku vlastnil vrtnou soupravu na studě a tak vrtal o 106. Voda vám tu jen tak nedojde. Pokud byste ale chtěli vodovod, je k napojení na hranici pozemku.

Pár minut chůze od domu se nachází přírodní památka Lom Na plachtě. Kdysi žulový lom, dnes místo s úžasnou atmosférou. Stejně jako výhled od domu, i tohle byste tu vážně nečekali. Procházky se psem tím máme vyřešené.

Tohle všechno je v bezprostředním okolí domu. Vážně je tu něco, co vám bude chybět?

Tvar pozemku prozrazují tyto dvě fotografie z dronu. Párkrát nám už aktivní sousedé chtěli dron sestřelovat, nikoliv však tady. Na fotce dobře vidíte, kde a kolik sousedů máte. Nebo spíš nemáte.

Tak co na to říkáte? Právě jste se seznámili s vašim novým domem. Teď už jen pár technických věcí.

Dům se nachází na adrese Třebohostice 94. Google mi ji nechtěl vzít, přikládám tedy mimo interaktivní mapy i obrázek.

Vzdálenosti od domu:

Stanice BUS: 600 m (linka 329 - Skalka, 423)
Hostinec: 600 m
​Metro Skalka: 41 minut busem 329
Vlak Úvaly: 6.5 km, 10 minut
Vlak Říčany: 10 km, 15 minut
Potraviny Škvorec: 2.5 km / 5 minut
Praha - Václavák: 35 km / 35 minut
Český Brod - centrum: 16 km / 18 minut
Dálnice D1: 15 km / 17 minut

Nejbližší ZŠ přímo v Třebohosticích a Škvorec, Úvaly, Říčany. Nejbližší MŠ Škvorec, Sluštice, Doubek.

Předmět prodeje - výpis na listu vlastnictví

Půdorys domu

REZERVOVÁNO

Zajímají vás další informace? Zavolejte nebo napište, rád vám je doplním. A nebo úplně nejlépe, přijeďte se podívat. Možná se vám ale už nebude chtít pryč.


rfwbs-slide

Reference

Co o mně říkají klienti?

Copyright © 2018. Všechna práva vyhrazena.

Vytvořil Tomáš Hlad.