Prodej bytu – Svornosti - Ondřej Černovický - certifikovaný realitní makléř

Prodej bytu – Svornosti

Čerstvě po kvalitní rekonstrukci, na vás je už jen to příjemné.

3+kk po čerstvé rekonstrukci, pár kroků od Anděla, v původním domě a do 8 milionů. Kolik je takových bytů v nabídce? Většinou je spočítáte na prstech jedné ruky.

Od teď můžete počítat i s tímhle. Tento byt byl dokončen teprve listopadu a je tedy úplně nový. Jedinou chybějící věcí je kuchyňská linka. Její výběr zůstane na vašich potřebách a představách. Abyste nezůstali úplně bez inspirace, máme pro vás zpracovanou i vizualizaci možného řešení.

Navzdory umístění na rušné ulici není v bytě pozorován žádný nadměrný hluk - ostatně pusťte si video se záznamem v originální podobě. Byt je poměrně vysoko (třetí podlaží) a díky novým izolačním oknům do něj neproniká nic, co by mohlo člověka, který chce bydlet v centru města, mohlo rušit.

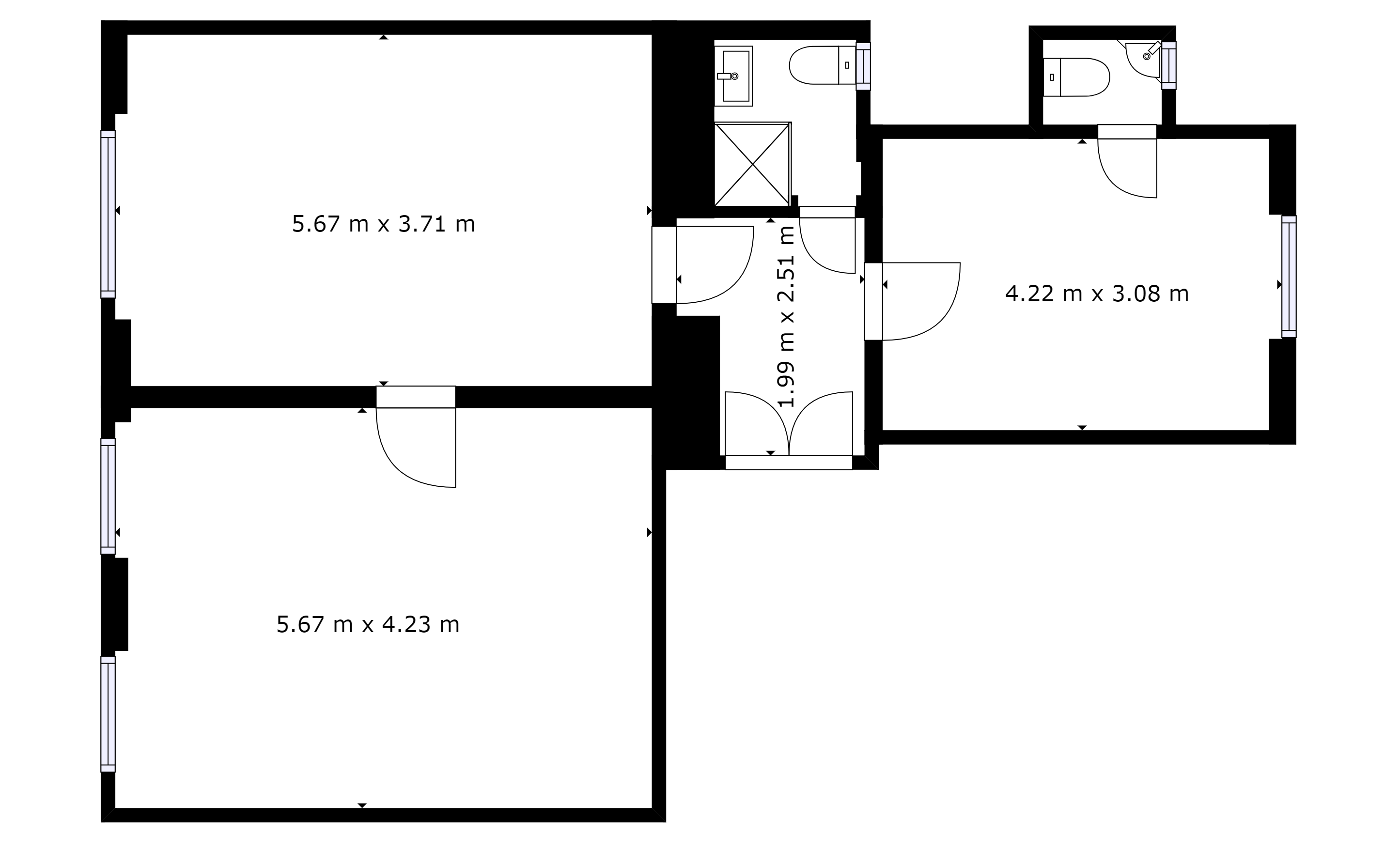
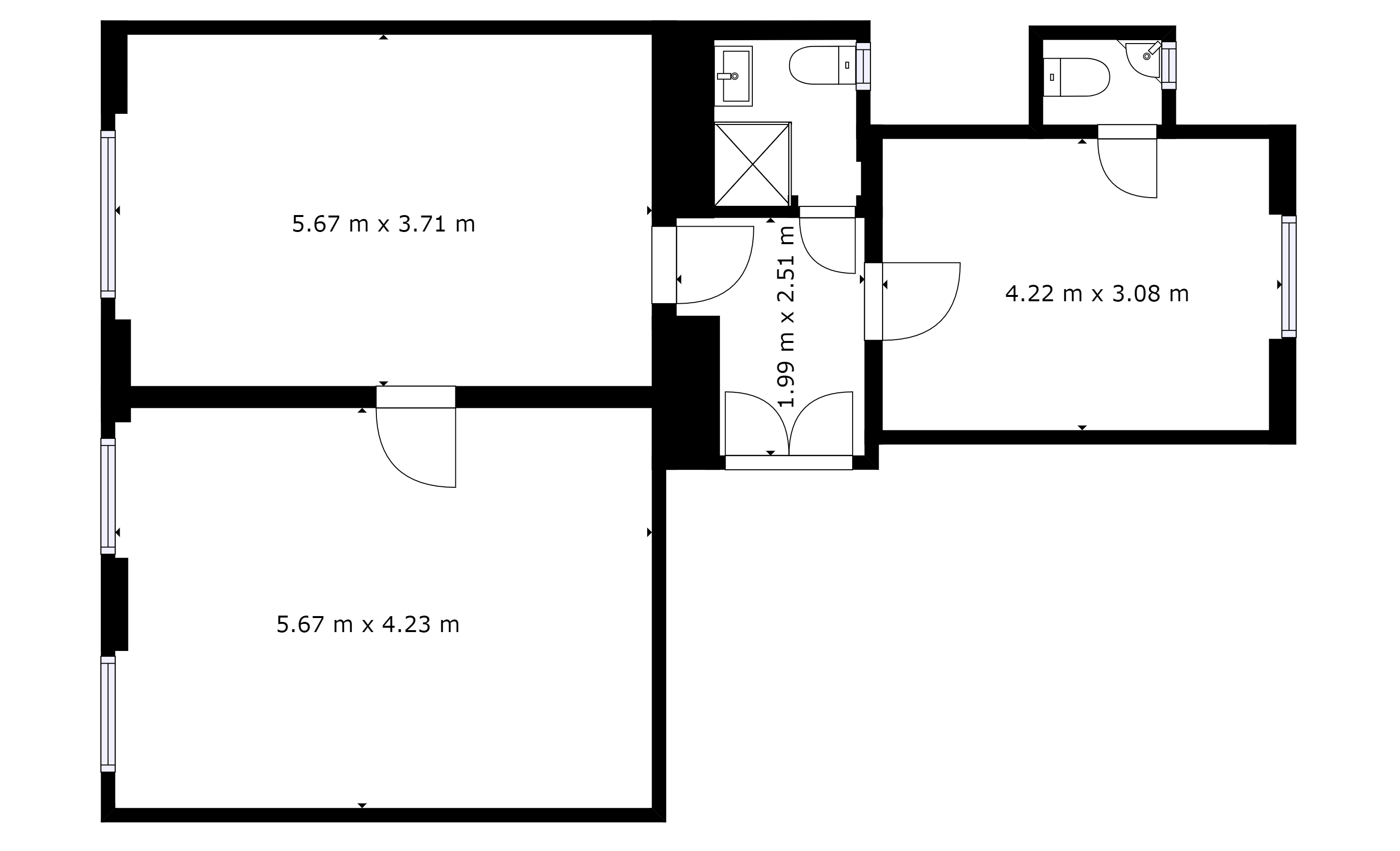
Plocha bytu činí celkem 64.4. m2 a jak už bylo zmíněno, prošel kompletní rekonstrukcí. Jsou zde renovované parkety, dokonalé repliky původních dveří, nové rozvody elektřiny, vody i odpadu. Nová je koupelna, toaleta i celý systém vytápění. Máte tedy slušně rozehráno, na vás už je jen vydařená koncovka.

Plocha: 64 m2
Vytápění: elektrický kotel
Kompletní rekonstrukce v r. 2020

Umístění: 3. podlaží s výtahem
Orientace: východ - západ
Blok od Náplavky a 2 od Anděla

Poplatky: 2.800 Kč
(z toho fond oprav 1.288 Kč)
K dispozici IHNED

V domě se v roce 2021 provedly nebo plánují tyto opravy:

vymalování chodby a rozvod internetu (hotovo), video zvonky, nyní se provádí nové vchodové dveře (červenec)

3D interaktivní prohlídka bytu

Abyste nemuseli studovat plánky a lovit ve fotkách, máme pro vás připravený model bytu. Ten si můžete projít na displayi i s nasazenými VR brýlemi.

Hlavní prostor bytu tvoří západně orientovaný obývací pokoj s prostorem pro kuchyňskou linku. Ten nabízí celkem 21 m2. Jak už bylo zmíněno, kuchyňská linka v bytě není instalovaná, o fotku dole ale najdete její možnou podobu. Ve stěně je veškerá příprava - elektřina, voda, odpad a odtah par pro digestoř.

Takto může vypadat vaše kuchyně, do toho vám ale kecat nebudeme. Vizualizace je pro představu a ukazuje konfiguraci, kdy je celá tato místnost věnována kuchyni s jídelnou. Důležité je, že je tu spousta místa i pro linku vášnivého kuchaře. Využít lze i prostor vpravo vedle dveří. Páska na podlaze slouží pro představu o prostorovém uspořádání.

Velká sousední ložnice (nebo obývák) je od současného obývacího pokoje s kuchyní oddělena příčkou, tedy pokud byste chtěli obrovské 2+kk, je to bez větších problémů možné. V bytě byly uchovány i původní dveře - respektive jejich dokonalé repliky, které na zakázku vyrobil truhlář.

Mimo dveří drží původní podobu i parkety, ty jsou po kompletní renovaci a budou sloužit dalších XX let. Co je naopak nové je elektřina, kompletní rozvod topení a taktéž okna (ta byla měněna v roce 2010).

Právě okna jsou tu totiž velké téma, díky jejich výměně je hlučnost v bytě opravdu nízká. Ostatně, pusťte si video s originálním, neupraveným audio záznamem.

Tato ložnice (a největší místnost - 23 m2) bytu je skutečně obří. Nejen plochou, ale i objemem - stromy jsou vysoká 3.5 metru.

Menší ložnice bytu je orientovaná do vnitrobloku, tedy na východní stranu. Velmi příjemný bonus se ukrývá ve dveřích vlevo.

Mít hned u ložnice při ruce toaletu je luxus, který v bytech ve starších domech zpravidla chybí. Další toaleta je v koupelně, kde je sprchový kout. Koupelna je pak přístupná z chodby. Obložení je z masivního italského mramoru, který si můžete na prohlídce klidně potěžkat.

I vstupní dveře do bytu prošly renovací. Zachoval se ale jejich původní venkovní vzhled a zvýšila bezpečnost prostřednictvím vyztužení. Nový systém vytápění v podobě elektrického kotle a bojleru zajišťuje sníženou sazbu elektřiny pro veškerou spotřebu bytu.

Pohled z oken hlavních (větších) místností je orientován do ulice Svornosti. Vpravo je tramvaj na Anděl, vlevo pivovar.

A ani výhled ze zadní (východní) ložnice vás nebude ničím rušit - žádné kanceláře nebo hlučné provozy, ale výhradně bytové domy.

Pokud jste vášnivý kuřák nebo balkonový kafíčkář, i tady si přijdete na své - balkon je společný a je vám k dispozici. I vstupní dveře jsou opravené - od vizuální po funkční stránku.

Původní cihlový dům je průběžně udržovaný a v roce 2021 proběhlo ve společných částech budovy následující: nové rozvody elektřiny, přivedení optického kabelu a vymalování. V domě se nachází i prostorný výtah.

A závěrem pár fotek toho, čeho budete ušetřeni. Domlouvání, stresování, prošvihnutí lhůt. Ne, to už vás tady nečeká.

Byt se nachází v domě na adrese Svornosti 947, Smíchov. Přes mapu se prokliknete přímo do navigace.

Vzdálenosti od domu:

Metro Anděl: 400 m / 4 minuty chůze
Zastávka tram Lidická: 150 m
Dopravní uzel Na Knížecí: 500 m

OC Nový Smíchov: 500 m / 5 minut chůze
Nábřeží - náplavka: 200 m

A dalších 150 věcí. Prostě je tady všechno!

Půdorys bytu

Prohlášení vlastníka

Máte pocit, že vám nějaké informace chybí? Zavolejte nebo napište, jsem vám k dispozici.
7.740.000 Kč


rfwbs-slide

Reference

Co o mně říkají klienti?

Copyright © 2018. Všechna práva vyhrazena.

Vytvořil Tomáš Hlad.