Čerstvě dokončený dům v Košířích - Ondřej Černovický - certifikovaný realitní makléř

Čerstvě dokončený dům v Košířích

Zrekonstruovaná čtyřpodlažní řadovka na Cibulce, kde je parádní klid, je REZERVOVANÁ.

Lámete si hlavu nad koupí nového rodinného útočiště? Koupit pozemek a pustit se do mnohaletého dobrodružství se stavbou domu? První rok budete věnovat výběru architekta a strávíte ho nad nekonečným množstvím papírů. To není žádný strašení, však se zeptejte kohokoliv, kdo má tuhle anabázi za sebou. Nebo koupit starší dům a pustit se do jeho rekonstrukce? Tento nápad jsem měl taky. Nakonec mě rekonstrukce vychází o 10% dráž, než stavba nového domu vedle. Tyhle story  se zkrátka dějí. Nebo radši koupit velký byt? Jenže mezi bytem a domem, i když jde o řadovku, je přece jenom pořád rozdíl. Žádné SVJ, žádný soused nad vámi nebo pod vámi, který má jiné představy o běžné míře hluku. Co takhle ale udělat pořádný life hack a koupit dům, který je právě teď čerstvě zkolaudovaný a nestavil se na kšeft? Právě takový se aktuálně objevil v lokalitě Cibulka, která je velmi specifickým místem v sousedství zeleně, kde vás čeká naprostý klid, přesto se na Anděl dostanete za 15 minut busem.

4 podlaží a 4 samostatné zóny. Zázemí pro hosty nebo kancelář? Tak to vás čeká dole, společně s garáží. Patro pro setkávání s návštěvami je pak také samostatné a po ruce má WC. Až budete s kamarády popíjet na terase víno, vůbec vám nemusí běhat po soukromé části domu. Ta se totiž nachází nahoře a opět hezky rozdělena na dva funkční celky - patro rodičů a patro dětí, které je až nahoře. Z původního domu z 60. let zůstalo prakticky jen obvodové zdivo a všechno ostatní se dělalo pěkně od podlahy. A to doslova, ve všech patrech se nyní můžete těšit na podlahové topení. Nová okna, zateplení vatou a rázem je na světě provozní náklad, který potěší každého, kdo nerad vyhazuje peníze za elektřinu z okna. Dům má ozkoušené provozní náklady v úrovni jen lehce nad 10 MWh za rok, takže vás jeho provoz rozhodně nezrujnuje.

V rámci úzké jednosměrné ulice se nemusíte obávat provozu ani hluku, takže vaše ratolesti klidně mohou lítat i za branami vašeho království. Nakoupit můžete hned ve 3 potravinách přímo v místě, vybírat můžete ze 3 školek a na BUS to bude 100 metrů. Nejvíc nadšení ale budete při ranním běhání, venčení nebo jen při obyčejné procházce. Přírodní památka Vidoule, která tvoří ohraničení lokality z jižní strany, je pořádný lán zeleně. Člověk by tady až zapomněl, že se stále pohybuje v rámci širšího centra Prahy. Všude blízko, v klidu, v novém, a s dostatkem prostoru. To je bydlení na Cibulce.

Dispozice 5+1 | 4 podlaží
Dům celkem 165 m2 | Garáž 16 m2
Zděná konstrukce | Zateplení vata 180 mm

Kolaudace březen 2025 | Původně dům ze 60. let
Pozemek 124 m2 | Obdélníkový tvar
Spotřeba elektřiny do 11 MWh/rok

Elektrokotel 9 kW | Podlahové topení
13 min BUSEM od metra Anděl
Žádný velký provoz nebo ruch kolem domu

22.490.000 Kč

Virtuální prohlídka domu

Abyste nemuseli studovat plánky a lovit ve fotkách, máme pro vás připravený model domu. Ten si můžete projít na displeji i s nasazenými VR brýlemi.

Bokem a v klidu, přitom ale kousek od Anděla. Lokalitu Cibulka v posledních letech proslavil luxusní development, v 60. letech tady však vznikly desítky řadových domů, které těžily (a do dnes těží) zejména z polohy uprostřed zeleně. Přírodní památka Vidoule bude častým terčem vašich procházek nebo sportování.

Dům je umístěný v jednosměrné ulici Štěpánkova, kterou tvoří výhradně zástavba řadovek.

Dům pochází původně ze 60. let, nicméně příliš původního v něm nenajdete. V podstatně jen obvodové zdivo nebo stropy, vše ostatní je nové. Konstrukce je zděná, zatepleno je 18 cm minerální vaty (podstatně lepší řešení než klasický polystyren) a okna jsou rovněž velmi kvalitní - dřevěná s trojsklem (specifikace ZDE). Na nové střeše se rovněž počítalo s FVE, je tedy hotová příprava pro její umístění.

To je ale krása, co? A není lepší se podobné akce ušetřit? Je... Potvrzuje 10 z 10 rodin, které kdy něco rekonstruovaly.

Takže pojďme radši zpátky do roku 2025, ve kterém tento dům může okamžitě sloužit vašim záměrům. Je dotažený celý včetně nově upravené zahrádky. Od ní nečekejte žádný lán pole, plocha za domem je necelých 50 m2.

Na terase už je nainstalované zábradlí a plot k sousedovi je hotový. Na terásce před obývákem si díky jihozápadní orientaci užijete dost sluníčka.

Insert Image

Zahrádka má dvě úrovně, aby mohla sloužit pro obývák i spodní podlaží. Plocha je sice menší, ale využita je hezky - terénní rozdíl byl vyřešen skalkou.

Insert Image

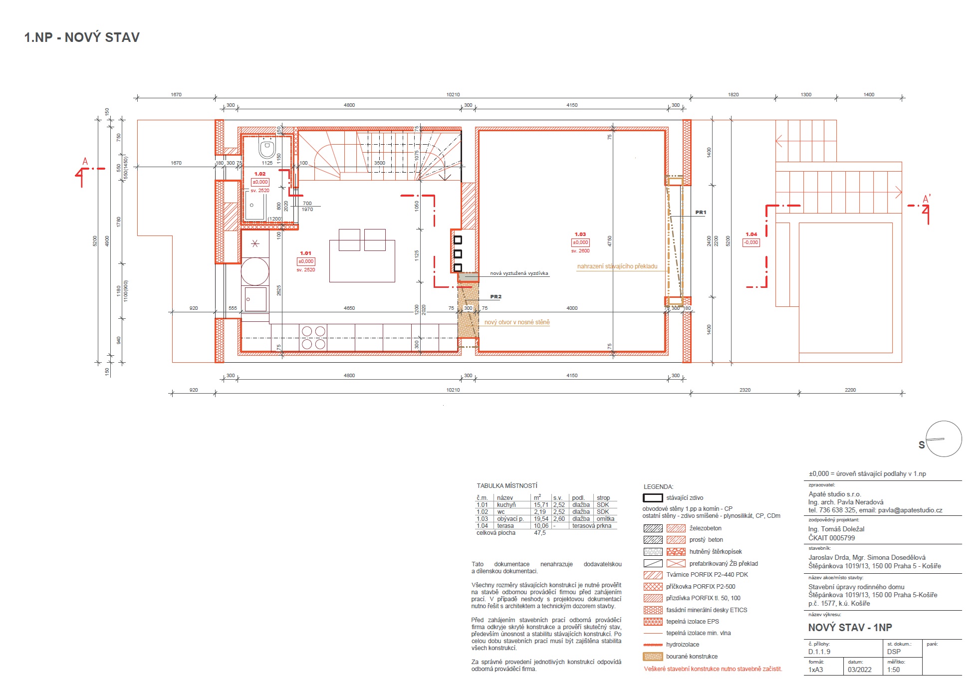
Přes HS portál vstoupíte do obýváku, jehož plocha je 20 m2 (4,15 x 4,75 m).

V obýváku je umístěný prostor pro jídelnu, ta však pro rychlejší jídlo funguje i přímo u linky, kde jsou o ostrůvku barové židle.

Prostor kuchyně má 16 m2 a také okno u dřezu, nejde tedy o žádný tmavý miniaturní koutek.

Na podlahách v celém domě můžete vidět vinyl, schodiště má nášlapy z masivního dřeva.

U kuchyně je k dispozici také samostatné WC, abyste nemuseli lítat po schodech v případě nutnosti rychlého zásahu 🙂 Přesuneme se nahoru do podlaží s hlavní ložnicí.

Rodiče si budou užívat největší plochy. Snad se vám podaří ji před dětmi uhájit. Rozhodně se vám bude hodit, protože mimo postele zbylo dost místa ještě na velkou skříň nebo pracovní kout. Výměra je lehce přes 19 m2 a okno je směrem do zahrádky.

Ani v tomto podlaží nechybí oddělené WC, u kterého navíc vzniklo místo na prádelnu. Když sundáte skřínku, můžete pračku a sušičku klidně umístit nad sebe.

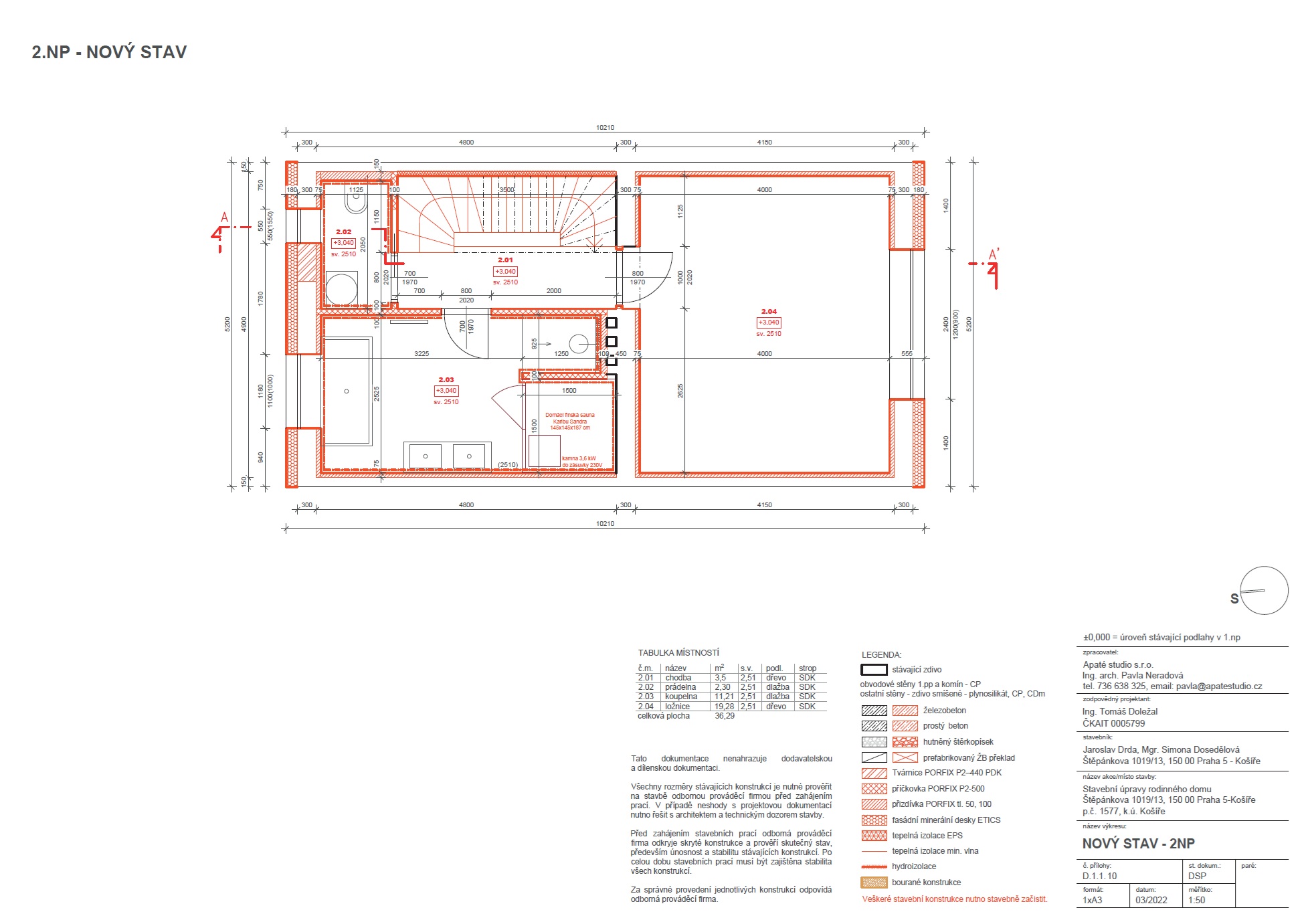
Hlavní koupelna je pořádná chlouba! Nechybí tady dokonce ani vestavěná sauna.

Insert Image

11 m2 by bohatě stačilo i na pokoj. Vejde se sem velká vana i sprchový kout. WC tu nehledejte, je oddělené vedle.

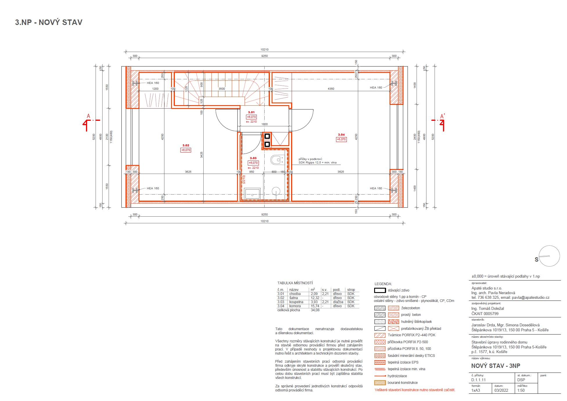
Děti pokoje v podkroví milují a mluvím z vlastní zkušenosti - vyrůstal jsem v něm. Pokoje jsou tu dva, tento je orientovaný do zahrádky a má plochu 16 m2. Za dveřmi je pak ještě výklenek pro umístění vestavěné skříně.

Druhý pokoj má plochu 12 metrů a výhled směrem do ulice. K dispozici má také výklenek za schodištěm, kam lze rovněž umístit skříň.

Také děti mají k dispozici vlastní koupelnu a WC, aby nemusely v noci běhat po schodech. Koupelny jsou provedeny v jednotném designu, který kombinuje dřevěný dekor s jednoduchými barvami.

Jednou jste nahoře, jednou dole. Přesouváme se tedy do úrovně prvního podlaží domu, kde máme ještě pár milých překvapení. Vstupovat sem můžete také přímo ze zahrádky.

V této části domu může klidně fungovat malý samostatný byteček, pokud sem doplníte kuchyňku. Nyní funguje jako kancelář nebo zázemí pro hosty.

Ani tady potom nechybí vlastní koupelna se sprchou a kvalitní vestavěný nábytek. Za žaluziemi při vstupu se schovává technické zázemí k vytápění.

V celém domě naleznete teplovodní podlahové topení. Od shora až dolů. Není akorát v garáži (16 m2), se kterou se pracovalo jako se skladovým prostorem.

Auto se totiž vejde i před ní, případně pak můžete parkovat na ulici. Místa je tu dost a vzhledem k tomu, že jsou tu jen řadové domy ze stejné éry, nedošlo v minulých letech k drastickému nárůstu počtu aut.

Veškeré nový development (vpravo a vlevo) má k dispozici parkovací garáže a okolní ulice tak nejsou zaplavané přílivem aut. Nové domy rozhodně prospěly rozvoji lokality, která je sice bokem od ruchu, ale rozhodně ne odříznutá od centra. Na autobus je to zhruba 150 metrů a na Anděl vás doveze za 13 minut. A to skutečně zvládne, na rozdíl od aut totiž může jet vyhrazeným pruhem po ulici Vrchlického (paralelní s Plzeňskou).

Možná na vás právě vykoukla vaše budoucnost. Nemyslím tedy přímo kameramana Tondu, ale možná u toho stolu strávíte s rodinou několik dalších let.


Štěpánkova 1019/13, 150 00 Praha 5 - Košíře

Vzdálenosti od domu:

BUS zastávka Průchova | 100 m

(linka 123 a 253)
TRAM Kavalírka | 2,3 km
(linka 9, 10, 15, 16)

3x potraviny | 100, 120 a 200 m

Metro Anděl | 5 km - 16 min busem
ZŠ Nepomucká | 2 km

3x MŠ v lokalitě | 300, 400 a 430 m

Insert Image

Půdorys domu | Suterén

Půdorys domu | 1. NP

Půdorys domu | 2. NP

Půdorys domu | 3. NP

Řez domem

Situace

PENB

Tak to je z vašeho nového domu všechno. Věřím, že vykouzlil úsměv na tváři i vám.

Insert Image

rfwbs-slide

Reference

Co o mně říkají klienti?

Copyright © 2018. Všechna práva vyhrazena.

Vytvořil Tomáš Hlad.