5+kk v Mukařově - Ondřej Černovický - certifikovaný realitní makléř

5+kk v Mukařově

Dům pro celou rodinu obklopený úžasnou přírodou. REZERVOVÁNO.

Dům, který by vám vystačil i pro opravdu velkou rodinu a ze kterého se nebudete muset stěhovat jen proto, že už nemáte místo? Tento dvoupodlažní dům u Říčan možná vypadá nenápadně, ale místa má v sobě až až. Pokoj pro hosty, 3 další ložnice a 2 koupelny. Ideální velikost domu a na ideálním místě, obklopeni krásnou přírodou a klidem. Hned za domem se totiž nachází louka a tato část Srbína je navíc mimo silnice. Pár domů, které mají to štěstí, že jsou od provozu úplně bokem.

Představovat Říčansko asi netřeba, ale jen pro jistotu. Lesy, louky, rybníky a všudypřítomná kouzelná příroda. Pokud tedy chcete zmizet z Prahy, nemít ji příliš daleko, ale užívat si klidu, pak může být Mukařov - Srbín tou správnou volbou. Škola 1.5 km, do Říčan k Olivovně 5 km a do Prahy k OC Chodov 25 km. Louňovické rybníky a nekonečné lesy doslova přes pole. Tady vás opravdu nemá co rušit, tedy až na sousedy - ti mohou občas zabečet. Výstavbou za domem se navíc obávat nemusíte. Vlastník louky nemá o tento záměr zájem. Přes louku navíc vede vedení vysokého napětí, které by se nejdříve muselo nákladně přeložit.

Dům nevyžaduje žádné dramatické investice a bydlet se v něm dá okamžitě. Známá je také jeho kompletní historie, neboť ho v roce 2007 postavila rodina současných majitelů. Pozemek tak akorát, abyste se celé léto netahali se sekačkou, ale splnil potřebnou funkci. S plochou 450 m2 není nijak obrovský, přesto pojme všechno, co budete potřebovat. A nechybí na něm ani vaše soukromé koupací jezírko. Parkování pro auta, místo na trampolínu, zahradní domek i terasu.

Dispozice 5+kk
Dům 140 m2
Pozemek celkem 450 m2

Výstavba 2007 - postaveno rodinou majitelů
Spotřeba elektřiny 13.5 - 17 MWh/rok
Jímka 15 m3 - zprovoznění ČOV 2023

Vytápění elektrickým kotlem
Koupací jezírko s bio filtrací
Obecní vodovod + vrtaná studna

9.890.000 Kč 

Insert Custom HTML

Virtuální prohlídka domu

Abyste nemuseli studovat plánky a lovit ve fotkách, máme pro vás připravený model domu. Ten si můžete projít na displeji s nasazenými VR brýlemi. Využijte také funkci měření rozměrů.

Dům se nachází ve slepé ulici, provoz je tedy prakticky nulový a nemusíte se ani obávat nechat děti skotačit před plotem. Dům klasického střihu se sedlovou střechou je obklopen zahrádkou o velikosti 361 m2 (odečtena zastavěná plocha).

K zahrádce se ještě dostaneme, teď ale přes jižně orientovanou terasu vstoupíme přímo do největší místnosti domu.

Tou je obývací pokoj, ze kterého se přes francouzské okno dostanete na jižně orientovanou terásku.

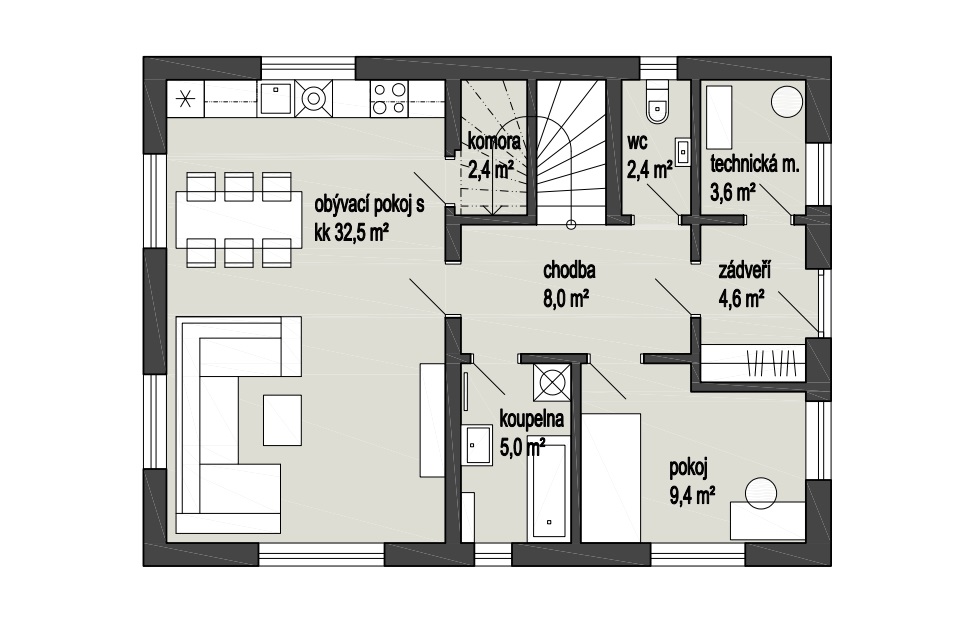
Plocha obýváku s kuchyní je krásných 33 m2 a díky dostatku velkých oken (ty s modrým obrázkem jsou na západ) je místnost i příjemně svělá.

Tedy dost na to, aby se do místnosti bez potíží vešel i plnohodnotný jídelní prostor s velkým stolem. Kuchyňská linka je po celé délce zadní stěny místnosti s oknem, které má výhled směrem na louku.

Západní okna jsou skutečně příjemným benefitem, protože jakmile zasvítí sluníčko, je celý prostor krásně prosluněný. Ve dveřích vpravo vedle linky se nachází spíž o velikosti 2.4 m2, která vede pod schodiště.

V prvním podlaží domu vás také čeká jeden pokoj. A to buď pokoj pro hosty (hned vedle je koupelna), případně vaše pracovna. Okna jsou na východ a jih, plocha činí 9 m2.

Koupelny jsou v domě dvě, tato spodní je menší (5 m2). Toaleta je oddělená.

Přes schodiště se přesuneme do druhého podlaží, kde nás čekají 3 ložnice a druhá koupelna. Schodiště je prosvětlené střešním oknem, které se nad tím nachází.

Stejně jako dole, i nahoře jsou všechny místnosti přístupné z centrálně umístěné chodby. První ložnicí je aktuálně hlavní rodičovská s velkou vestavěnou skříní. Plocha je 15 m2 a z horních pokojů je tedy nejmenší.

Sousední místnosti má 17.5 m2 a funguje jako dětská herna. Okno této i sousední ložnice je na západní stranu.

Posledním a největším pokojem je 19 metrová místnost se dvěma okny na východ, která se nachází u druhé koupelny.

Ta je ještě původní (2007), je vybavena velkým oknem a její velikost je 8 m2.

Vstupní zádveří domu (5 m2) bez potíží pojme šatní skříň. Další dveře vedou do technické místnosti, kde je umístěný kotel s bojlerem a dalších 3.6 m2 prostoru.

Díky solidní odstupové vzdálenosti není dům stíněný okolními stavbami, nejedná se tedy o žádné temné místo.

Za domem se nachází zahradní jezírko s výhledem na protější louku, na které se výstavba neplánuje. Stavbě překáží taktéž vedení vysokého napětí, které by se muselo přeložit (od tohoto domu je však daleko).

Kouzelná zákoutí s naprostým klidem a za zvuku tekoucí vody. Nezní tohle jako totální idylka? Jezírko má na délku přes 7 metrů, jeho hloubka je cca 1.5 metru a objem zhruba 15 - 18 m3.

V západní části zahrady se nachází zahradní domek. Místa je tady dost i na podstatně větší. Dům má již hotovou přečerpávací jímku a napojení na kanalizaci, čeká se pouze na spuštění provoz ČOV (má proběhnout letos). Vaším jediným nákladem ke zprovoznění tedy bude napojení domu do této šachty, do které obec dodá taktéž čerpadlo.

Ze strany z ulice nenápadný a možná byste ani nehádali, kolik místa ses v něm najde. Dobré je také upozornit, že střecha má zcela ideální sklon i orientaci pro umístění FVE.

Tak takhle bude vypadat vaše nové doma. Málo sousedů, hodně lesů a luk. A až se budete před spaním nudit, můžete na fotce spočítat ovečky.

Kopretinová 201, 251 62 Mukařov - Srbín

Dětské hřiště hned u ulice (Kopretinová)
ZŠ Mukařov - 1.500 m
Penny Market - 1.200 m
LIDL - 1.800 M

BUS Srbín - 420 m
Vlak Říčany - 7.5 km

Půdorysy podlaží domu

Výpis z katastru

Mapa katastru

Spotřeba elektřiny - poslední vyúčtování

Pokud jste vám tímto domem zahráli na tu správnou notu, přijďte se osobně přesvědčit, že nekecáme. Vážně vypadá tak dobře, jako tady na webu.


rfwbs-slide

Reference

Co o mně říkají klienti?

Copyright © 2018. Všechna práva vyhrazena.

Vytvořil Tomáš Hlad.