Poctivá stavba, která na první pohled klame, je REZERVOVANÁ.
Výhody starších domů? Začít můžeme u lokality. Starší zástavba těží z lepších umístění, kdy nestojíte uprostřed pole a široko daleko nic. A stavby samotné? Zpravidla bytelné, neošizené kšeftařinou a také se sklepy či suterény. A přesně tak je to v případě tohoto domu, který kouká na Radotín pěkně z kopečka. Kousek od nádraží, přesto v klídku v uličce s velkým lesem v zádech, kde projede maximálně soused. Vědět o něm stejně vůbec nemusíte, jelikož až budete kutit ve více jak stometrovém suterénu, okolní svět vás vůbec nemusí zajímat. Nebo třeba kutit nechcete, místo toho vybudujete byt vašim dětem nebo rozestavíte svou sbírku. Ať už to ale bude cokoliv, konečně vám pro vaše plány nebude scházet místo. Dům je sice k rekonstrukci a nějakou tu korunu snese, ale rozhodně ne kvůli špatnému stavu. Je důsledně udržovaný, plně funkční a stále užívaný. Dokonalé zázemí pro náročnější rodinu pod jednou střechou, kde můžete spojit bydlení s řadou dalších věcí. Je to vážně sympaťák. Trochu ošlehaný časem, přesto se na vás směje. A to pěkně doširoka, však uvidíte sami na balkoně, jak moc je jeho úsměv široký. Skoro tak, jako ten výhled samotný.
Čekají na vás dvě plnohodnotná podlaží a třetí v podkroví. To však není pouhou půdou, ale již zatepleným prostorem o ploše přes 100 m2 s vysokým stropem, kde nemusí být pouhý sklad, ale klidně další pokoje. V současné konfiguraci dům funguje o 3 ložnicích, malém pokojíku, obýváku a jídelně s kuchyní, které jsou od sebe oddělené. Tedy variace na dispozici 5+1. Pokud by vám i tak v domě, který má dohromady skoro 400 m2, bylo místa málo, tak ještě nekončíme. Terasovitý pozemek o ploše bezmála 1.000 m2 je v severní části využit pro bazén, pod kterým vznikla další garáž a sklad. Pro sběratele všechno možného (vůbec teď nemluvím sám k sobě) je tohle učiněný ráj. Všechno pohromadě a na jednom místě v naprosto nenápadném domě, kde navíc nebudete na očích. Příjemně bokem mimo hlavní ruch Radotína, ale bez odříznutí se špatnou dostupností. Autobus, škola, školka, supermarket, nádraží. Všechno do 15 minut. Pamatujete na první řádky o výhodách starší zástavby? Ty v tomto případě pocítíte při každodenním provozu. Takže co raději bydlet na kopečku, nikoliv na širém poli?
A když nastane chvilka pro odpočinek nebo procházku s vaším chlupatým mazlíčkem, stačí se doslova otočit na podpatku a vyrazit na konec ulice. Ten je lemován lesem s vyhlídkou, který navazuje na CHKO Český kras. Na své si tu přijde skutečně každý. A tak není divu, že tento dům mění majitele poprvé za celou dobu jeho existence. Bydlení tu bylo skvělé. Ale čas nezastavíte a s přibývajícím věkem je nutné jít zase dál. Pokud čas a síly stále máte, pravděpodobně jste našli místo, kde vy i vaše rodina může strávit několik desítek spokojených let. Stejně tak, jako tomu bylo dosud. Tak pojďme na to!
Dispozice 5+1
Plocha 384 m2 (komplet)
Klasická zděná konstrukce
Pozemek 931 m2 s jižním výhledem
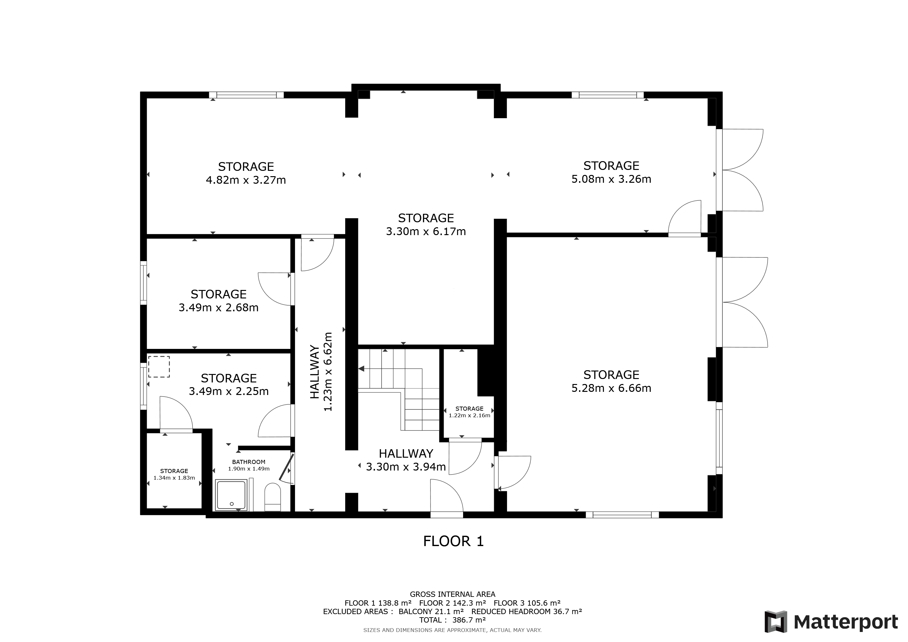
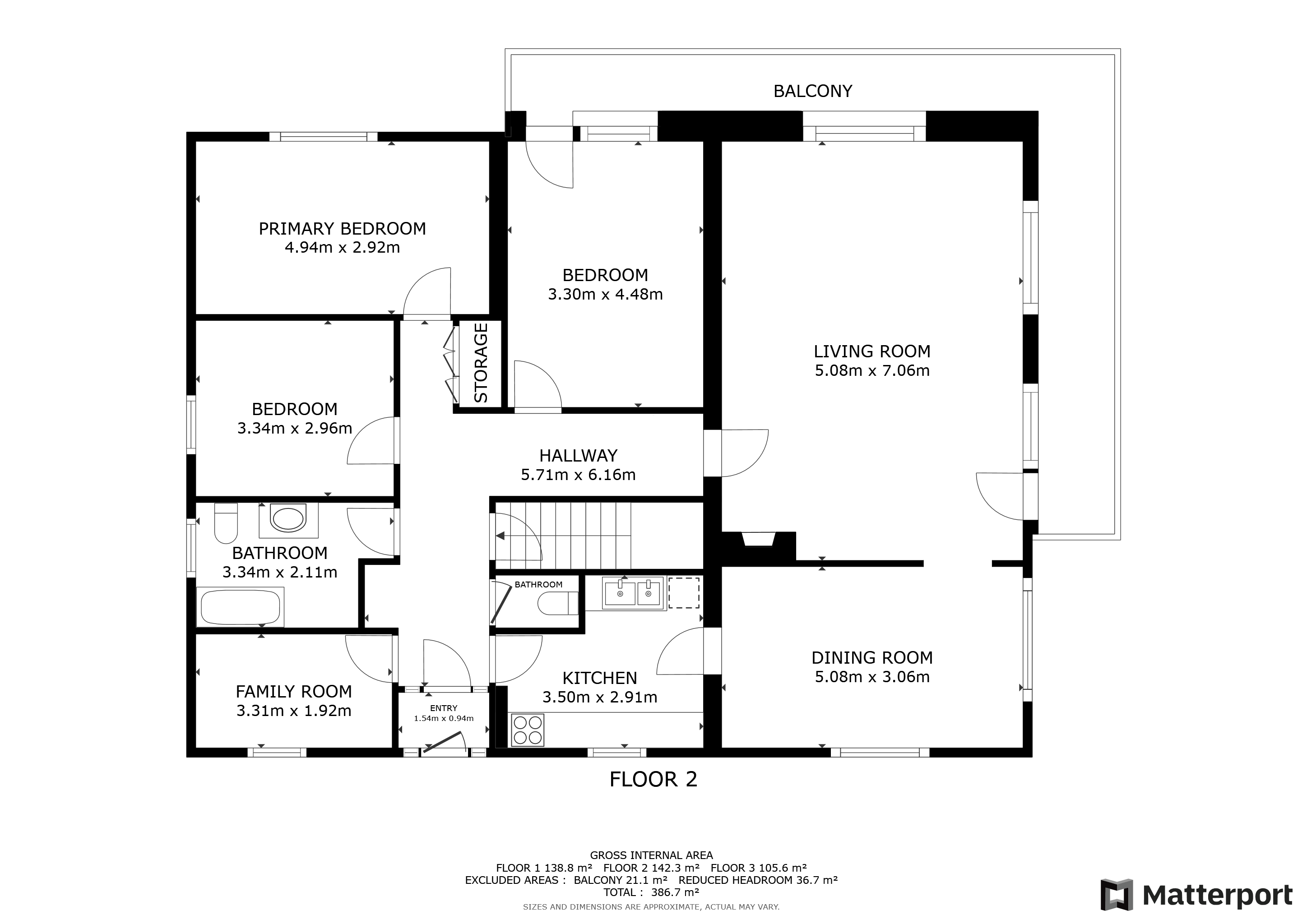
1. NP - 139 m2 | 2. NP - 142 m2 | Půda - 106 m2
Bazén | Sauna | Sklad pod bazénem
Vytápění plynovým kotlem
Spotřeba plynu: 16,7 MWh/rok
Udržovaný stav k rekonstrukci
17.490.000 Kč
Virtuální prohlídka domu
Abyste nemuseli studovat plánky a lovit ve fotkách, máme pro vás připravený model domu. Ten si můžete projít na displayi i s nasazenými VR brýlemi. Připravte se ale, že v tomto domě se dost naběháte i virtuálně 🙂 Je totiž vážně dost velký.
Otázka za tři bludišťáky. Proč je Radotín tak oblíbený? Za a) je to díky blízkosti přírody, za b) díky skvělé dopravní dostupnosti, za c) díky svému klidnějšímu charakteru, který smazává ruch velkoměsta. Všechny tři jsou správně, gratuluji výherci. Můžete postupovat do dalšího kola.
Z ulice se tento dům k rekonstrukci zdá nenápadný, ale nenechte se zmást. Jeho celková plocha je 387 m2 včetně půdy, která je plně využitelná pro další pokoje. Spodní dvě podlaží pak každé nabízí zhruba 140 m2 plochy.
Neoddiskutovatelná výhoda starších domů? Bezpochyby suterény a sklepy. Velké téma této stavby, která má suterén po celém půdorysu domu a kouzlit s ním můžete do zblbnutí.
Ať už je vaše diagnóza jakákoliv, místa bude konečně dost. Nadšený autíčkář, motorkář, kutil, sběratel... Všechna tato postižení jsou v Radotíně vítána.
Ale nebojte, ani na romantiky se nezapomnělo. Výhled z výše posazeného pozemku je fantastický a sahá až do širokého okolí. Koukat budete na lesy kolem Točné a úplně vpravo můžete vidět Cukrák.
Pozemek je sice ve svahu, ale netrpí klasickou bolestí v podobě nevyužitelné plochy. Je totiž řešen terasovitě a terén je podepřen zdmi. Místo svahů tak očekávejte pohodlnější a klasické řešení v podobě několika rovin. Svou nespornou výhodu to má také z hlediska soukromí, protože vám na pozemek z výšky nekouká žádný soused. Celá přední (jižní) část pozemku je tak bez větší pozornosti.
Teď už ale pojďme rovnou dovnitř. Třeba vám tu bude při první návštěvě stejně dobře, jako tady bylo mně.
Jižně orientovaný obývací pokoj s trojicí velkých oken nabízí plochu 35 m2, což je přesně tak akorát. Pravidelný tvar, 5 metrů na šířku a 7 na délku. Výhled z balkonu, na který je z obýváku přístup, jsme vám už představili.
Nicméně opakování je matka moudrosti. A ani v noci to nevypadá zle 🙂
V pořádném domě pochopitelně nesmí chybět krb. Dům je sice starší a realisticky uvádíme, že je k rekonstrukci, ale rozhodně ne kvůli svému stavu. Dům je skvěle udržovaný a pozorné oko si toho všimne velmi rychle.
Hned vedle obýváku se nachází jídelna. 15 metrová místnost je nyní od kuchyně oddělená a funguje tedy samostatně. Příčku ale samozřejmě můžete odstranit, není totiž nosná. S dispozicí se tady dá vůbec dost zatočit.
V lince žádnou parádu nehledejte, je jednoduše stará. Ale znovu platí, že o úrovni údržby domu jasně svědčí její stav. Plocha je zhruba 9 m2 a pro ty, kdo vaří i ve dne po tmě, přichází vysvobození v podobě velkého okna, které zajišťuje opravdu hodně světla.
Výklenek vnořený do půdorysu kuchyně je vyhrazený pro samostatné WC, které je přístupné z chodby. Řada jistě pamatuje tyto obklady jako žhavou novinku, ale to už je pár (desítek) let zpět. Pravděpodobně je ale vyměníte za novější sestřičku.
Jedná se o dveře vpravo. Hned naproti je pak umístěná nejmenší místnost domu. Pokojík pro hosty, pracovna, případně jednoduše šatna. 7 m2.
Z nejmenší do největší. Hlavní ložnice s okny na severovýchod, tedy chladnější a klidnější orientace pro spánek. 15 metrový pokoj s výstupem na balkon, který kolem dokola lemuje dům. Můžete ho tedy oběhnout zpět k obýváku. Do něj je okno úplně vlevo.
Sousední pokoj moc nezaostává, rozdíl je asi 0,5 m2. Orientace okna je stejná, tedy směrem na severovýchod. Když z okna pokoje vykouknete ven, uvidíte na bazén.
Posledním pokojem je pak 10 metrová místnost vedle koupelny, která fungovala jako dětský pokoj.
Místnosti jsou přístupné z centrální chodby do tvaru L, která má v přední vstupní části k dispozici ještě malé zádveří. Dveře uprostřed fotky vedou do sklepa, na chvilku ale ještě vyběhneme na půdu. Vstup na ni je ve dveřích vedle obýváku. A prosím, není to jen nějaký kamrlíček. Půda je opravdu velká a již zateplená, takže ani při využití pro obytný prostor nebude docházet ke snižování podchozí výšky. Plocha je 106 m2.
Teď už ale můžeme dolů, a to dveřmi vpravo vedle zrcadla. Schodiště má strmější sklon, pod ním se nachází bojlery pro ohřev vody.
Mimo užitkových záležitostí má suterén také funkci mnohem příjemnějšího charakteru. Udělat si pohodu v sauně můžete i teď, je zcela funkční a hned vedle nechybí sprcha na osvěžení. Tuto část suterénu najdete v jeho severní části, kde nechybí taktéž prádelna. Takže stop pračkám poschovávaným všude možně po bytě, tady bude mít konečně své místo.
Království kutilů. Tahle parádní vytápěná dílna se dvěma okny a vjezdem přes garážová vrata má plochu 36 m2. Můžete to tady klidně přebudovat na kancelář nebo další obytný prostor, světlá výška je totiž standardních 2,7 metru. Na první fotce vpravo si pak můžete všimnout plynového kotle.
Motocykl na fotkách není součástí ceny, ale vše kolem něj ano. A není toho málo. Plocha samotné garáže je 53 m2 a její půdorys je do tvaru T. Vejdou se v pohodě 3 auta. Vjezdy jsou dva, ten druhý je z boku. Pro lepší orientaci naleznete na konci webu plánky.
Garáž a sklady se nachází dokonce také pod bazénem, který je umístěný na nejvyšší terase pozemku. Jeho technologie je ukrytá pod povrchem.
Severní část pozemku byla vyhrazena užitkové části se záhonky a je odstíněna hustým živým plotem. Ta jižní, která je před garáží, má pak k dispozici ještě značné zpevněné plochy pro parkování aut.
Dvě auta sem ještě bez potíží hodíte a lehátko, na kterém se budeme slunit, pak můžete umístit do jižního cípu pozemku. Plocha od hrany parkování je do špičku pozemku ještě 200 m2.
Loučíme se pohledem na vaše nové sousedství.
Jelenovská 1238/2, 153 00 Praha 16 - Radotín
Vzdálenosti od domu:
BUS Karlická | 230 m
(linka 244, 248, 309,319, noční 951)
Vlak Radotín | 1 km / 15 min pěšky
Nájezd na Pražský okruh | 4 km / 6 min
Albert | 550 m
Potraviny Eso | 450 m
Sportovní hala | 350 m
ZŠ + bazén | 700 m
MŠ Slunečnice | 500 m
ZUŠ | 300 m
Biotop Radotín | 850 m
Pošta | 450 m
Zdravotní středisko | 450 m
Mapa katastru - předmět prodeje
Výpis z katastru - předmět prodeje
Vyúčtování plynu - roční
Vyúčtování elektřiny - čtvrtletní












































































