Když na vás skutečně není vidět. REZERVOVÁNO.
Toužíte po domě a jeho největší přidanou hodnotou má být mimo dostatku prostoru také vysoká míra soukromí. Satelity a tisícimetrové poloholé plácky jeden vedle druhého. Že to není nic pro vás? Pak by vás tento kousek v Černošicích mohl opravdu oslovit. Na těchto téměř 2.000 m2 totiž skutečně není absolutně vidět. Bujná a vzrostlá zahrada má jediného souseda, kterého od vás dělí doslova hradba živého plotu. A pokud se aktuálně bojíte vyjít na zahradu neučesaní, protože co kdyby zrovna koukali sousedi, tohle bude vaše vysvobození. Tady prostě vstanete, uděláte si kafe, a na terasu sednete přesně tak, jak jste vylezli z postele. Protože na vás nemá kdo koukat. Protože terasa je na jihovýchod. Protože budete koukat do stromů a zelených kopců. Protože tady opravdu bude váš vlastní svět, který nebude nikdo zvenčí narušovat. A místa tu budete mít habaděj. Však má dům přes 300 m2, velký suterén i bazén. Dům z roku 1999 prošel v poslední době pár modernizacemi a podstatné je především to, že vás jeho provoz nesežere zaživa. Budete se pohybovat mezi 10 až 15 MWh ročně. Vděčit za to budete nejen tepelnému čerpadlu, ale také kvalitní konstrukci se zateplením vatou.
Suterén s garáží o celkové ploše 90 m2 je jedna z těch věcí, kterou u nových domů zkrátka nenajdete. Nikdo už je nedělá - jsou příliš drahé. A i kdyby těchto skoro 100 m2 dům neměl, pořád vám jich zbývá přes 200. Obrovský obytný prostor v sobě spojuje 3 hlavní zóny. Hala s jídelnou, kuchyně a salon, ve kterém je vyšší strop. Nechybí pochopitelně kamna pro ty z vás, kdo rádi okoření atmosféru skutečným ohněm a mimochodem - není to jen na efekt, kamna mají výměník. Dům je řešen tak, že je každá jedna polovina proti té druhé posunutá o půl podlaží. První dvě ložnice s koupelnou vás tak čekají po jednom rameni schodišti, zbylé tři pak zase o půl patra výš. V rámci interiéru proběhla dílčí rekonstrukce, jinak je ale vše původní, zachovalé a funkční. Zcela jistě si najdete řadu věcí k výměně, nicméně v domě se takto bydlelo a bydlet klidně může i nadále. Stěhovat se lze okamžitě a žádné zásadní rekonstrukce netřeba ihned řešit. Dům je napojen na veškeré sítě a topit v něm můžete hned dvěma hlavními způsoby. Mimo nového tepelného čerpadla totiž zůstal zachován i původní plynový kotel.
Všechno se ale točí hlavně kolem místa. Na domě si předěláte všechno podle sebe. Tyto ložnice spojíte, tuto naopak přepažíte. S lokalitou už se ale hýbe špatně. Jenže právě to je v případě tohoto domu ta největší hodnota. Auto klidně můžete nechat doma, protože na vlak je to zhruba 450 metrů a přestože to vypadá, že jezdí blízko, je zaseknutý pod úrovní domu a žádný nadměrný hluk provoz neprodukuje (už vůbec ne v interiéru). Přes vzrostlé stromy tak uslyšíte spíše šumění listů nebo zpěv ptáků, kteří měli na zadní části zahrady u bazénu také svou voliéru. Solidní a bytelný dům s mimořádně příjemnou atmosférou a dostatkem místa možná při první návštěvě ulice minete, protože je skutečně schovaný a ani na něj nedohlédnete. Prozradí ho pouze nová vysoká brána na pozemek. Jakmile se před vámi otevře, zcela jistě mi dáte za pravdu. Tohle je vážně dobrý.
25.900.000 Kč
Dispozice 6+1 | 3 podlaží | 310 m2
4 ložnice | 2 koupelny | garáž 46 m2
Suterén celkem 90 m2 (s garáží)
Kolaudace únor 1999 | Druhý majitel
2018 - tepelné čerpadlo | 2024 - nátěr fasády
Porotherm 440 | Stropy monolit
Pozemek 1.815 m2
Naprosté soukromí | Vzrostlé stromy
Plynový kotel 12 kW | Krbová kamna 6 kW
Podlahové topení | Bazén
Spotřeba 12 - 14 MWh ročně
Tepelné čerpadlo | Původní plynový kotel
Virtuální prohlídka domu
Abyste nemuseli studovat plánky a lovit ve fotkách, máme pro vás připravený model domu. Ten si můžete projít na displeji i s nasazenými VR brýlemi.
Černošice nejspíš už znáte, jinak by vás to sem netáhlo. Město, které je usazené mezi zelené kopce a řeku, je známé hlavně svou zástavbou působivých vil, jejichž rozmach zavládl již za první republiky. Tato oáza zeleně nedaleko hlavního města je díky stálému vlakovému spojení v perfektní dostupnosti i bez auta. V případě tohoto domu je vlak opravdu za rohem - 450 metrů.
Hlavní devizou pozemku je špičková míra soukromí. Skutečně odnikud není vidět. Soused je jeden a pozemky od sebe odděluje tlustá a neprůhledná hradba živého plotu. Kdo nemá rád bohapusté plácky, toho také nadchne vzrostlá zeleň.
Hranice stavby je od nové vjezdové brány vzdálena přes 30 metrů. Nejen že sem od plotu není vidět, ale ještě k tomu je to vážně daleko. Dům tak není nalepený na žádné cestě a udržuje odstup od veřejnosti. Ne že by snad po cestě proudil provoz nebo davy. Jedná se o úzkou vedlejší ulici.
Hlavní fasáda domu je orientovaná na jihovýchod, tedy směrem na Cukrák. Výhledy jsou skutečně uklidňující. Jen stromy a kopce.
V létě nejspíš posedíte na střechou kryté terase, ale v letních třicítkách si pak možná rádi ochladíte tváře uvnitř domu. V něm zůstává příjemný chládek, přitom však přes velká okna stále vidíte tu parádu venku.
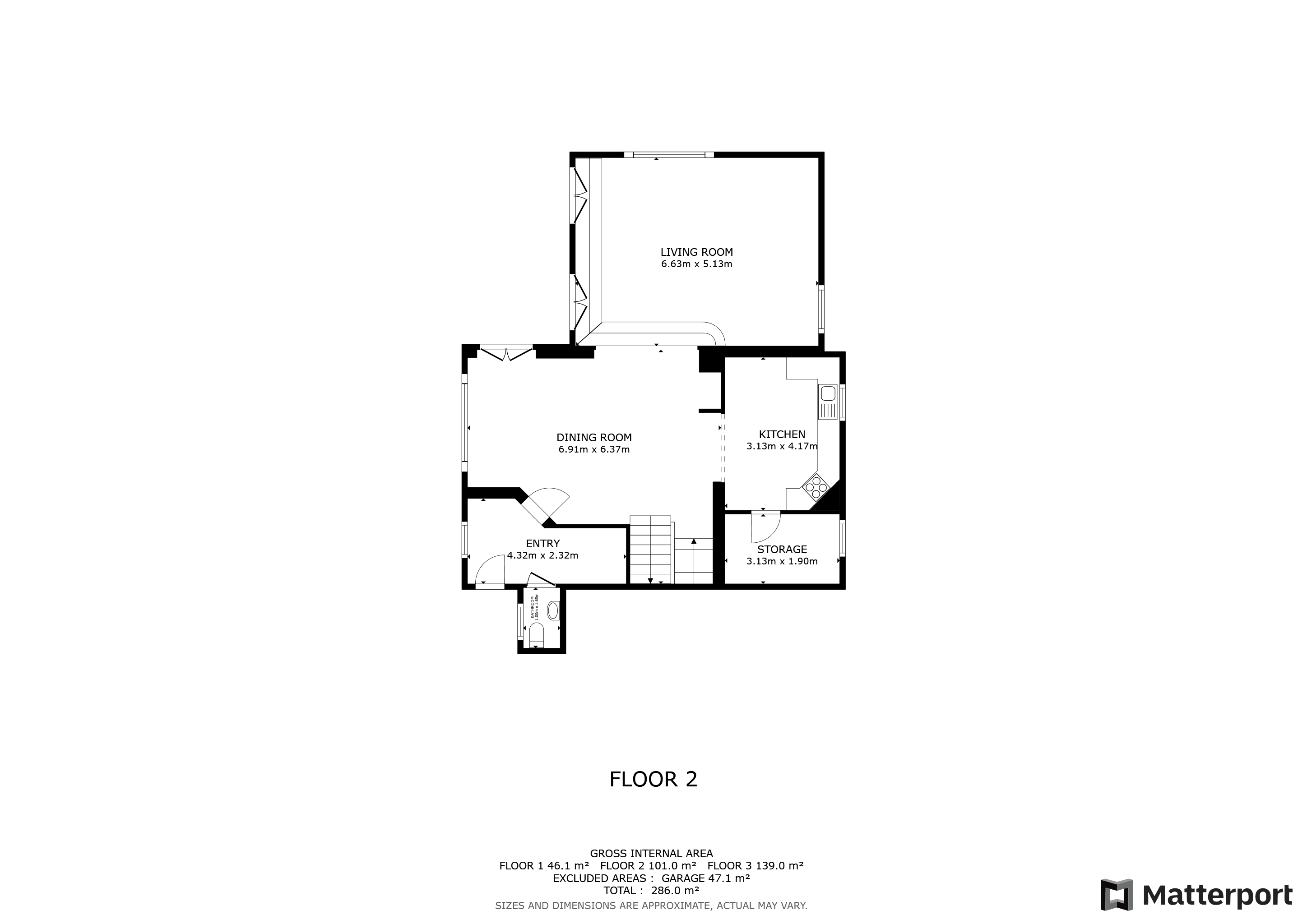
Obývací pokoj má o něco vyšší strop (dva schody) a plochu 34 m2. Okna jsou nejen směrem na terasu, ale také zezadu i z boku, odkud by šel vytvořit vstup na zadní část zahrady.
V původním plánech není prostor označen stroze jako obývák, ale je to salon. A v salonu samozřejmě nemůže chybět klavír stojící na dřevěných parketách.
V hlavní roli světlo. Toho je v obytné části domu skutečně spousta. A až padne tma, můžete dům rozzářit v kamnech. Ta jsou s výměníkem a napojena na okruh topení. Tedy nejen atmosféra, ale také reálný užitek.
Obytná hala má plochu 27 m2 a slouží jako prostor jídelny. Všude, kde je dlažba, je teplovodní podlahové topení.
O studené nohy se tedy bát nemusíte a to ani v kuchyni. Ta má k dispozici skutečně velkou spižírnu o ploše 6 m2, která může dobře sloužit také jako přípravna.
Kuchyně je v domě stále původní. Z dnešního pohledu už nejde o kdovíjakou krásku, nicméně je stále velmi dobře funkční. Pokud nepotřebujete spižírnu a raději chcete větší linku, příčku můžete klidně sundat.
Všechny části dom jsou přístupné přes centrální schodiště. V každé polovině domu jsou dvě podlaží, která jsou vůči sobě o půl úrovně přesazená.
Vstup do domu je do obytné haly, které předchází vstupní zádveří s šatnou a WC.
Toalety a koupelna ve spodní části domu jsou již po rekonstrukci. První WC je u vstupu, to druhé pak u prvních dvou ložnic.
Pokoj s klenutým oknem směrem do zahrady je můj nejoblíbenější. Výhled je fantastický, protože směřuje výhradně do zeleně. Plocha je 23 m2.
Ložnice na druhé straně je jen o chloupek menší. Okno je tentokrát směrem k bazénu, ale výhled není díky všudypřítomným stromům o nic horší. Pokoje jsou vzájemně spojené dveřmi. Stejně jakou celou zeď, klidně je můžete odstranit.
Oba zmíněné pokoje mají k dispozici vlastní WC a také koupelnu, které jsou již po rekonstrukci. Horní podlaží má sociální zázemí zase svoje.
Nahoře mají dvě ložnice výstup na balkon, ze kterého je (jak jinak) parádní výhled do okolí.
Identické, zrcadlově otočené. A oddělené příčkou, kterou lze snadno odstranit.
Obě tyto ložnice mají shodnou plochu - 12 m2.
Koupelna k horním ložnicím (v domě jsou tedy dvě) je stále v původním stavu, ale velmi udržovaná. Její plocha je 10 m2 a skvělé je také to, že jsou zde dvě velká okna.
Mimo vany je v koupelně sprchový kout a WC je oddělené vedle. Z něj je pak k dispozici přes skládací schůdky vstup na půdu.
O výhledech už jsem párkrát mluvil, ale není tohle prostě skvělé? Jedna z nejlepších věcí, kterou u domu můžete mít. Klid, zeleň, výhledy. A to dokonce z vany.
Hlavní ložnice má 29 m2 a místa je v ní skutečně hodně. Vždyť je velká jako celý byt 1+kk. Ložnicí prochází komín, který je obložený bílými cihlami. Obložení palubkami lze pochopitelně sundat, má jen dekorativní funkci.
Víceúčelovou funkci má však balkon, který k této ložnici náleží. Po obou stranách má totiž krytý úložný prostor, který je za dvířky. Balkon je na druhé fotce vpravo, směrem k obřímu živému plotu.
Teď seběhneme naopak dolů, kde má dům schovaný velmi příjemný bonus v podobě velké garáže a suterénu. Garáž má celkem 46 m2 (vč. výklenku pro skladování) a v pohodě tak pojme dvě velká auta.
Několik dalších aut pak zaparkujete na velké zpevněné ploše, jedno stání je pak bokem před vraty do garáže. A na příjezdové cestě klidně můžete stát autobusem 🙂
O jedno rameno schodiště níže vás pak čeká vaše: fitness, ateliér, pracovna, zašívárna, pánský nebo dámský klub, anebo herna pro děti. Nebo dalších 1000 věcí. 24 m2, které jsou skutečně cenným benefitem této stavby.
Je zde také ukrytá kotelna. Po instalaci tepelného čerpadla byl uchován plně funkční původní systém, kterým je plynový kotel. Ať už bude doba jakákoliv, topit můžete plynem i elektřinou. A pokud jste pozorně četli, pak víte, že dokonce i dřevem. Do kamen je totiž zaveden výměník. Celkem tedy 3 způsoby, kterými můžete tento dům vytápět.
Tepelné čerpadlo je umístěno za domem a protože u toho pořádného nemůže chybět bazén, i ten zde máme k dispozici. Je vybavený filtrací a plavky klidně zahoďte, protože na vás nemá kdo odkud koukat.
Zadní část pozemku je řešena ve dvou terasách, přičemž na té horní jsou ještě dvě malé stavby. První je přístřešek na dřevo do krbu, tou druhou je pak bývalá ptačí voliéra.
Kolem domu se do proběhnout ze všech stran. Plocha pozemku před domem je zhruba 1.000 m2, za ním pak cca 500 m2. Dost místa na relax rovnou v několika zónách.
Není pochyb o tom, že se vám to na této uklidňující zahradě dokonale podaří. Vzrostlé stromy, soukromí, dostatek místa. Věřte mi, že se vám odtud nebude chtít pryč.
Adresa domu
Pod Višňovkou 1605, 252 28 Černošice
Vzdálenosti od domu:
Vlak Černošice - Mokropsy | 450 m
BUS č. 419 | 450 m
Tesco Vráž | 1.400 m
ZŠ Černošice | 400 m
Sportovní hala | 450 m
MŠ Barevný ostrov | 450 m
Půdorys domu - suterén a garáž
Půdorys domu - 1. podlaží
Půdorys domu - 2. podlaží
Mapa katastru
Výpis z katastru - předmět prodeje


























































































