PRODÁNO.
Rodinné bydlení v panelovém domě u parku.
Horní Počernice. Kousek na metro, vlak přímo do centra, historické srdce, parky, kompletní občanská vybavenost a taky kousek do Klánovického lesa. A co vás určitě taky bude zajímat - bezproblémové parkování. Nejčastější bolest sídlišť se Počernicím vyhnula obloukem. Místní nedají na tuto lokalitu dopustit (prodávám tu třetí byt za poslední rok) a nejspíš to nebude náhoda. Periferie Prahy nemusí nutně znamenat kompromisy.
U tohoto konkrétního domu vás jistě potěší i to, že si nebudete se sousedy koukat do talířů. Je poslední v řadě, proti ložnicím se tedy žádá vysoká stavba už nenachází. A z druhé strany je dům vzdálen téměř 50 m. Především vás ale může těšit, že celý dům je už kompletně opravený. Znamená to, že dům nečekají žádné významné investice a nepohodlí. Kolik znáte paneláků s výsledkem průkazu energetické náročnosti ve třídě B? Směle se může rovnat některým novostavbám. O dobře fungujícím SVJ svědčí i vlastní web, do kterého se jako vlastník můžete přihlásit a zjistit aktuální dění.
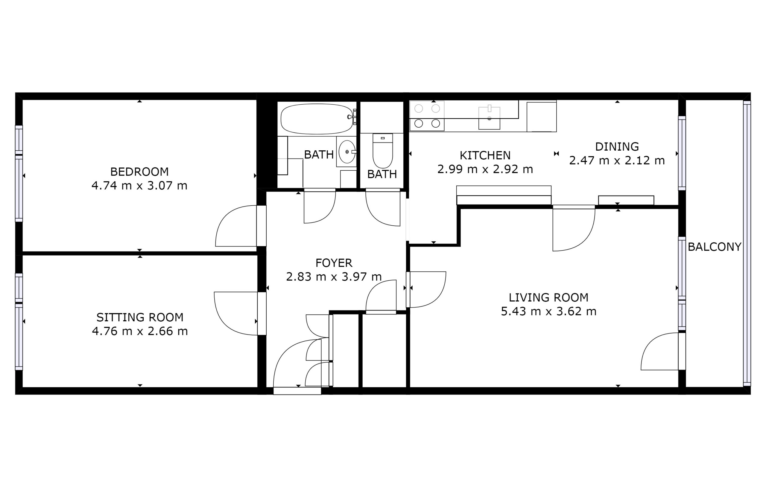
Autobus za rohem, školy do 500 m, nový park přímo u domu. Široké možnosti sportovního vyžití díky blízké cyklostezce nebo volně přístupnému sportovišti nedaleké školy. Je toho vážně spousta. Místo je tedy pro rodinný život jako stvořené, teď už to chce jenom dostatečně prostorný byt. Celkem 73m2 (čistá plocha bytu), dispozice 3+1, lodžie, sklep a kompletně revitalizovaný dům. Zatím to není vůbec zle, viďte?
Obývací pokoj s kuchyní a lodžií jsou orientovány na slunný západ, ložnice naopak na východ. Letní slunce vám do nich tedy nebude svítit. Na orientaci bytů v panelových domech je dobré si dát opravdu velký pozor. V obýváku totiž chcete mít příjemné teplo i světlo, ale na spaní naopak klidnější chládek. Kdo to zná, tak ví. Kuchyň s obývákem můžete klidně propojit, zrovna tak si můžete přebudovat prostornou chodbu s komorou. Velkou výhodou těchto typizovaných bytů je absence vnitřních nosních zdí, s bytem tak můžete doslova čarovat.
Ačkoliv je byt v kompletně původním stavu, tedy s umakartem i elektřinou v hliníku, je velmi zachovalý a dá se v něm bez problémů okamžitě bydlet. Pravděpodobně vám ale spíš poslouží jako skvělý základ pro rekonstrukci dle vašich představ a požadavků. K dispozici je vám ihned, v bytě se už nebydlí. S projektem na nový rok tedy můžete začít prakticky okamžitě.
Dispozice: 3+1
Plocha: 73 m2 (jen byt)
Třetí podlaží revitalizovaného domu
Orientace východ - západ
Lodžie o velikosti cca 7 m2
Sklep o velikosti 3.5 m2
PENB B
Bezproblémové parkování
Park v přímém sousedství domu
Úvěr SVJ ve výši 6.006.194,05 Kč (k 31. 12. 2020)
Stav FO k 31. 12. 2020 - 1.365.750,62 Kč
5.000 Kč + elektřina (fond oprav 2.600 Kč)
Virtuální prohlídka bytu
Abyste nemuseli studovat plánky a lovit ve fotkách, máme pro vás připravený model bytu. Ten si můžete projít na displayi i s nasazenými VR brýlemi.
Vítejte v Horních Počernicích a jejich historické části, kam od domu dorazíte po 2.5 kilometrové procházce.
V tomto domě se nachází váš nový byt. Dům prošel kompletní revitalizací, tudíž už vám kolem oken nikdo tancovat nebude. Jsou tu nová okna, fasáda, zateplení pláště i střechy, nový velký výtah, stoupačky, společné části budovy. To všechno vedlo ke skvělému výsledku průkazu energetické náročnosti - dům spadá do třídy B! Za zmínku stojí, že mezi domy je velká odstupová vzdálenost - téměř 45 metrů. Takže si nebudete se sousedy koukat do talířů. Na druhou - východní stranu - už dokonce žádný dům není, tento je poslední v řadě.
Jedním ze sousedů domu, na kterého budete naopak koukat rádi, je například tento nový park (Houslový klíč). Nachází se přímo u domu.
Sedmimetrová zasklená lodžie, kterou oceníte nejen v létě. Proč je v současnosti u bytů balkon nebo lodžie tolik poptávaná? To není zas tak těžká hádanka. Tyhle řádky sám píšu z karantény a kdybych neměl kam vytáhnout paty na vzduch, asi by mi přeskočilo už úplně.
Z lodžie se přesuneme do hlavní místnosti bytu - kterou je obývací pokoj o velikosti 19 m2. Tyto byty mají obrovskou výhodu v tom, že je po celé délce jejich západní stěny velké prosklení. Žádné tmavé kouty vás tady nečekají. A ani zásadní omezení ve variabilitě - v řadě těchto bytů totiž dochází k odstranění dělící příčky mezi obývákem a kuchyní. Vypadat to pak může třeba takhle...
Na skok do Hostivaře a na Stodůlky do již prodaných bytů, kde právě proběhlo odstranění příčky. Vznikl tak jeden velký obývák s kuchyňským koutem. Stejný scénář můžete provést i v tomto bytě.
A nebo třeba takhle? Ano, i toto je ten úplně stejný byt, akorát po kompletní a neobyčejné rekonstrukci. S byty v paneláku se dá skutečně neuvěřitelně pohrát. Je už prodaný, ale inspirace mám pro vás ještě dost 🙂
Tady je ale zatím vše při starém - tedy s příčkou - a můžete si vybrat, zda byt ponecháte jako 3+1, případně z něj vytvoříte 3+kk. Světlost bytu není žádná photoshopová hříčka, ale realita - hodně oken a orientace na západ udělají své.
Do kuchyňské místnosti se bez problémů vejde i jídelna. Linka je stará a určena k výměně.
Místnost s kuchyní a jídelnou má na délku 5.5 metru. Při výměně kuchyně nebude nutné vyhazovat spotřebiče, pokud chcete minimalizovat náklady - ty jsou stále plně funkční a novějšího data.
Prostorná chodba je centrálním bodem bytu. Přístupné jsou z ní všechny místnosti. Nachází se na ní komora s vestavěnou skříní, kterou můžete přebudovat třeba na praktickou šatnu. Všechno, co nechcete mít v bytě, pak můžete umístit do sklepní kóje. Ta je v případě tohoto bytu nadstandardní - příjemných 3.5 m2, tedy zhruba dvojnásobek běžné velikosti.
Jelikož je byt v původním stavu, je tady i umakartové jádro. Takže klasika - toaleta oddělená, koupelna s malou vanou.
Ložnice jsou hned vedle. Ta vpravo je o chlup větší - její velikost je 15 m2. V oknu si můžete všimnout celkem fajn výhledu - na to, že jsme na sídlišti. Žádný další panelák naproti, ale stromy.
4.75 x 3.1 metru je dostatek prostoru pro velkou postel, pracovní kout i vestavěnou skříň. Právě taková bývá nejčastější konfigurace tohoto pokoje.
Pokud si tedy pracovnu neuděláte vedle. Tento pokoj pokoj má velikost 13 m2.
O velkých odstupových vzdálenostech už byla řeč. Z východní strany domu už žádné stavby, tedy příjemný výhled a zeleň. Z té západní (od lodžie) je pak dům 45 metrů daleko.
Společné části budovy jsou opravené, čisté a potěší jistě i velký výtah. Obrovské parkoviště na druhé fotce, které je přímo u domu, je skutečně stále prázdné. Když jsem na úvod psal, že toto sídliště nebojuje s parkováním, nebyl to žádný kec. Tady skutečně zaparkujete vždycky.
Červené střechy, které vidíte na druhé fotce, jsou školy. Od domu se obě nachází zhruba 500 m. Bojovat nebudete ani s dopravní dostupností, nejbližší zastávka autobusu je doslova nadohled. A hned za rohem je další. Na Čerňák BUSem do 10 minut.
Nejen vy, ale i děti budou z okolí nadšené. Školy, školky, kousek od domu pumptrack, cyklostezky, park, pokračovat můžu donekonečna. Za poslední rok prodávám na tomto sídlišti již třetí byt a zájemce i majitele spojuje jedno - Horní Počernice považují za skvělé místo k životu. Úplná náhoda to asi nebude.
Centru Prahy jste blíž, než byste si mohli myslet. Díky perfektnímu dopravnímu spojení vlakem, který je lehce přes kilometr od domu, jste přímým spojem na Masaryčce za směšných 16 minut. Pokud jste si mysleli, že jsou Horní Počernice zapadákov na kraji Prahy a bude problém s dopravou, nemohli jste se víc plést.
Radši ale koukněte na tuhle skvělou mapku, kterou mají Počernice v magazínu své městské části. Polohu domu značí červená šipka.
Vzdálenosti od domu:
Nový park přímo u domu
Stanice BUS Pavlišovská -100 m (linka 224)
Stanice Ve Žlíbku - 200 m (linka 141, 171, 209, 224, 262 a 912) - směr ČM
Vlak: 15 minut chůze (Masarykovo nádraží)
Metro Černý Most: 10 min busem
OC Trio: 400 m (Albert, drogerie, lékárna)
OC Černý Most: 4 km / 7 minut
IKEA: 4 km / 9 minut
Hornbach, Makro - nákupní zóna: 4 km / 7 minut
Gymnázium, ZŠ, MŠ, ZUŠ - cca 500 m
Xaverovský háj + Klánovický les: cca 2 km
Půdorys bytu
Předmět prodeje - výpis z katastru
Rozpis poplatků
PENB
6.990.000 Kč

































































