Původní domek k rekonstrukci - Ondřej Černovický - certifikovaný realitní makléř

Původní domek k rekonstrukci

Bez práce? Ne. Kouzelný? Ano! REZERVOVÁNO.

Co je malé, to je hezké. A když je to ještě okořeněné tváří ošlehanou časem, může to být pro některé srdcovka. Pokud patříte k těm, kdo hledají dostupný starší domek k rekonstrukci, pak vás tato nabídka v Makotřasech bude opravdu zajímat. Žádný luxus, ale slušný základ k rekonstrukci, který navíc zůstane jedinečný. A tak jestliže nejste fanoušky bungalovů jako přes kopírák, které vyrostly uprostřed pole, tento starší domek nedaleko návsi možná čeká právě na vás.

Dům má dvě podlaží, nižší stropy, necelých 100 m2. Ale to není všechno. Jestli potřebujete hodně místa na vaše koníčky a nebo harampádí, pak vás nadchne i přilehlá stodola. Místo na dílnu, váš ateliér, prakticky cokoliv vás napadne. Takže nejenom bydlení, ale také místo pro podnikání nebo záliby. Na jednom místě, pár kroků z postele. Pokud nejste vášniví zahrádkáři, nabízíme dům bez zahrady. Kdyby vám ale záhonky nebo místo pro děti chybělo, je možné prodat i zahrádku, která se nachází za domem. Nabízí plochu lehce přes 300 m2 a nachází se u Lidického potůčku, přímo vedle dětského hřiště.

Makotřasy jsou malé vesnička o 500 obyvatelích, která těží ze skvělé polohy mezi Kladnem a Prahou. Pokud nechcete jezdit autem, překvapí vás skvělá dostupnost autobusem. Makotřasy totiž leží hned za sjezdem s D7 u silnice, která je jednou z hlavních cest na Kladno. Přestože blízko měst, když o nich nebudete chtít vědět, tak si na ně ani nevzpomenete. Vesnický charakter a klid vás tu budou doprovázet dennodenně. Jestli tedy máte už plné zuby městského shonu, ale města se z praktických důvodů úplně zbavit nemůžete, v Makotřasech vás čeká skvělý kompromis.

Dispozice 3+1
Dům 93 m2 + stodola 75 m2 + půda 77 m2
Pozemek domu 290 m2 - dvorek 95 m2

Možnost přikoupení 317 m2 zahrádky
KE KOMPLETNÍ REKONSTRUKCI
Vodovod - plyn - studna - kanalizace

Dům není podsklepený
K dispozici okamžitě
Plynový kotel + krb

4.390.000 Kč 

Insert Custom HTML

Virtuální prohlídka domu

Abyste nemuseli studovat plánky a lovit ve fotkách, máme pro vás připravený model domu. Ten si můžete projít na displayi i s nasazenými VR brýlemi. Využijte také funkci měření rozměrů.

Dům se nachází kousek od návsi obce Makotřasy, pár kroků od parčíku s dětským hřištěm. Ulice je slepá, nikam nevede a není v ní tedy prakticky žádný provoz.

Dům je o půdorysu do tvaru L. Bílá část se štítem je obytná část, do boku vybíhající je potom stodola.

Dvorek o ploše 95 m2 je od okolních staveb stíněný a není na něj odnikud vidět. Nachází se na něm studna a přístřešek pro posezení.

Ačkoliv je malý, i na něj se vejde místo na pár stromů nebo záhonky. Pokud by vám to bylo málo, existuje varianta přikoupení další zahrádky, která má plochu lehce přes 300 m2 a nachází se ob dům u potoka. Plánek naleznete na konci webu.

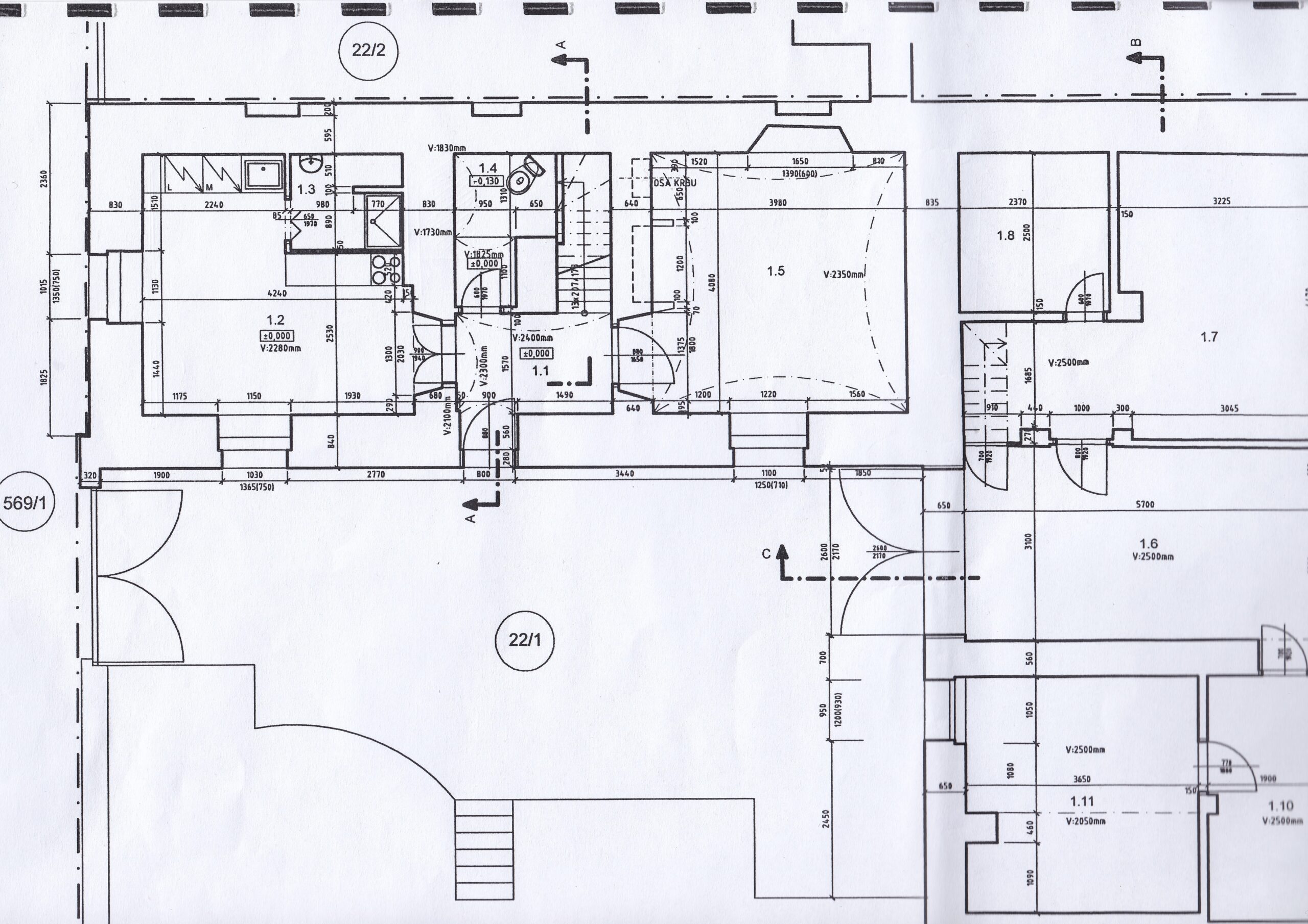
Teď už nás čeká prohlídka interiéru domku, který má dispozici 3+1 a na každém podlaží dvě místnosti.

Tou první je spodní pokoj s klenbami a krbem, který v minulosti zřejmě fungoval jako hospodářská část domu. Stropy jsou tu nižší - 2.2 metru.

Kuchyně s jídelnou má strop již klasický. Za rohem u linky se nachází vstup do koupelny.

Ta je sice starší, ale funkční. Vybavena je sprchovým koutem. Pračku hledejte jinde.

A to sice v technické místnosti, která se společně s toaletou a kotlem nachází pod schodištěm. Vytápění domu je tedy možné jak přes novější plynový kotel, tak přes kamna. Pračka je umístěna za rohem.

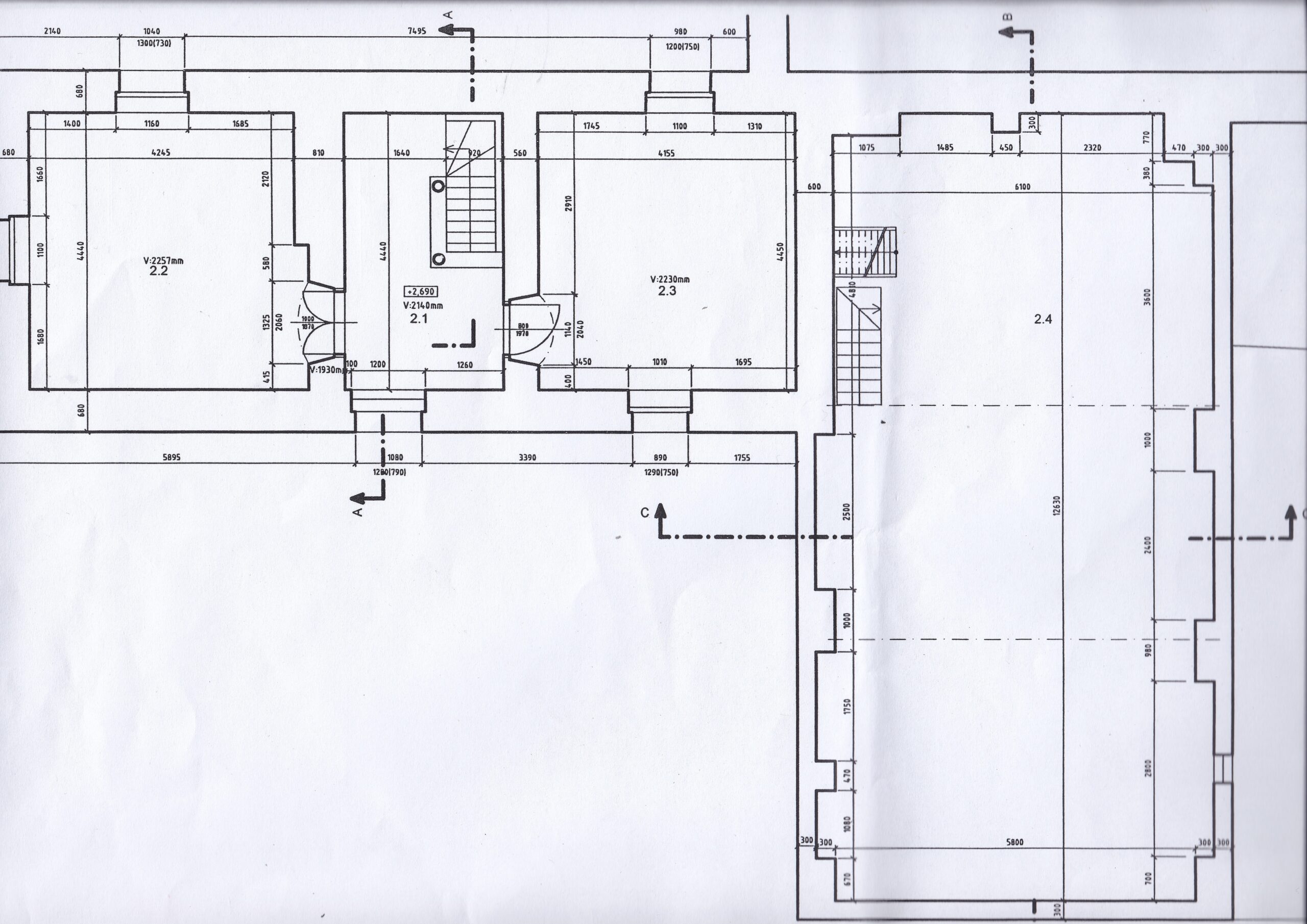
Ve druhém podlaží se nachází dvě prostorné ložnice.

Tato má plochu 19 m2. Okna jsou na jihovýchod (u šicího stroje) a severozápad.

Druhá ložnice je ještě o něco větší - 20 m2. Okna jsou na severozápad a do štítu domu, tedy na jihozápad.

Exteriér i interiér domu je delší dobu bez úprav a je určen ke kompletní rekonstrukci.

Faktem ale zůstává, že v současném stavu je dům funkční a obyvatelný. Navzdory tomu, že se v něm již trvale nebydlí, je vytápěn na pokojovou teplotu - není tedy promrzlý a opuštěný.

Domek bychom měli, teď se vrhneme na velmi zajímavý bonus v podobě velké stodoly. Ta je v prvním podlaží rozdělena na dvě dílny, dva sklady, jeden sklep (není však pod zemí) a místnost na fotce.

V podkroví vás pak čeká další spousta prostoru, který je celý otevřený. Plocha půdy stodoly je 77 m2. Půda je taktéž nad obytnou částí domu (druhá fotka).

Pokud mají Makotřasy nějakou velmi praktickou specialitu, tak je to jednoznačně jejich dostupnost přes MHD. Linka 322 vás doveze přímo z návsi na metro Veleslavín za půl hodiny. Rychlejší je linka 300, které jede rovnou na metro - cesta je pak pouhých 15  minut. Stanice třístovky je 370 metrů od návsi.

Makotřasy jako na dlani. Uprostřed nich se nachází váš nový domek.

Insert Image

Makotřasy 21, 273 54 Makotřasy, Česko

BUS Makotřasy - náves - linka 322
30 minut na metro Veleslavín

BUS Makotřasy - rozcestí - linka 300 a 324
15 minut na metro Veleslavín

Dětské hřiště + parčík - přes potok

Nájezd na D7 - 900 m
Letiště - 7 km
OC Šestka- 10 km
Kladno - centrum - 9 km
Praha - Vítězné náměstí - 17 km

Půdorysy podlaží domu

1. NP

2. NP

1. NP - Stodola

Mapa katastru

Horní modrá plocha je zmíněná zahrádka, kterou je možné v případě zájmu přikoupit.

Výpis z katastru - předmět prodeje


rfwbs-slide

Reference

Co o mně říkají klienti?

Copyright © 2018. Všechna práva vyhrazena.

Vytvořil Tomáš Hlad.