Ideální velikost domu na ideálním místě. PRODÁNO.
Nenápadné místo u lesa, kde stojí při pohledu z ulice ještě méně nápadný dům. Práce architektů se tady opravdu podařila. Už jen proto, že kolem vašeho domu nebude ve slepé ulici absolutně žádný provoz, který by vás rušil. A kdyby byl, stejně nic neuvidí. Z čela je totiž vidět jenom vjezd do garáže. Přestože tu domů stojí více (a naštěstí jsou všechny jednotného architektonického pojetí), podařilo se dosáhnout špičkové úrovně soukromí i mezi nimi samotnými. Od roku 2012 se pozemky zazelenaly, zahrady vzrostly a při posezení na vaší nové terase tak nebudete vystavení pohledům okolí. Přitom byste to na první pohled vůbec neřekli. Dům mnoha pozitivních překvapení, ve kterém panuje nefalšovaný klid. Toto je definice městského bydlení v přírodě, kde na metro dojdete za pár minut pěšky, ale přesto zůstanete ukrytí před okolním ruchem. V horní části Kunratic, kde bude vaším novým sousedem velký les, se bydlí perfektně. Hovoří za to i moje vlastní více než 10 letá zkušenost.
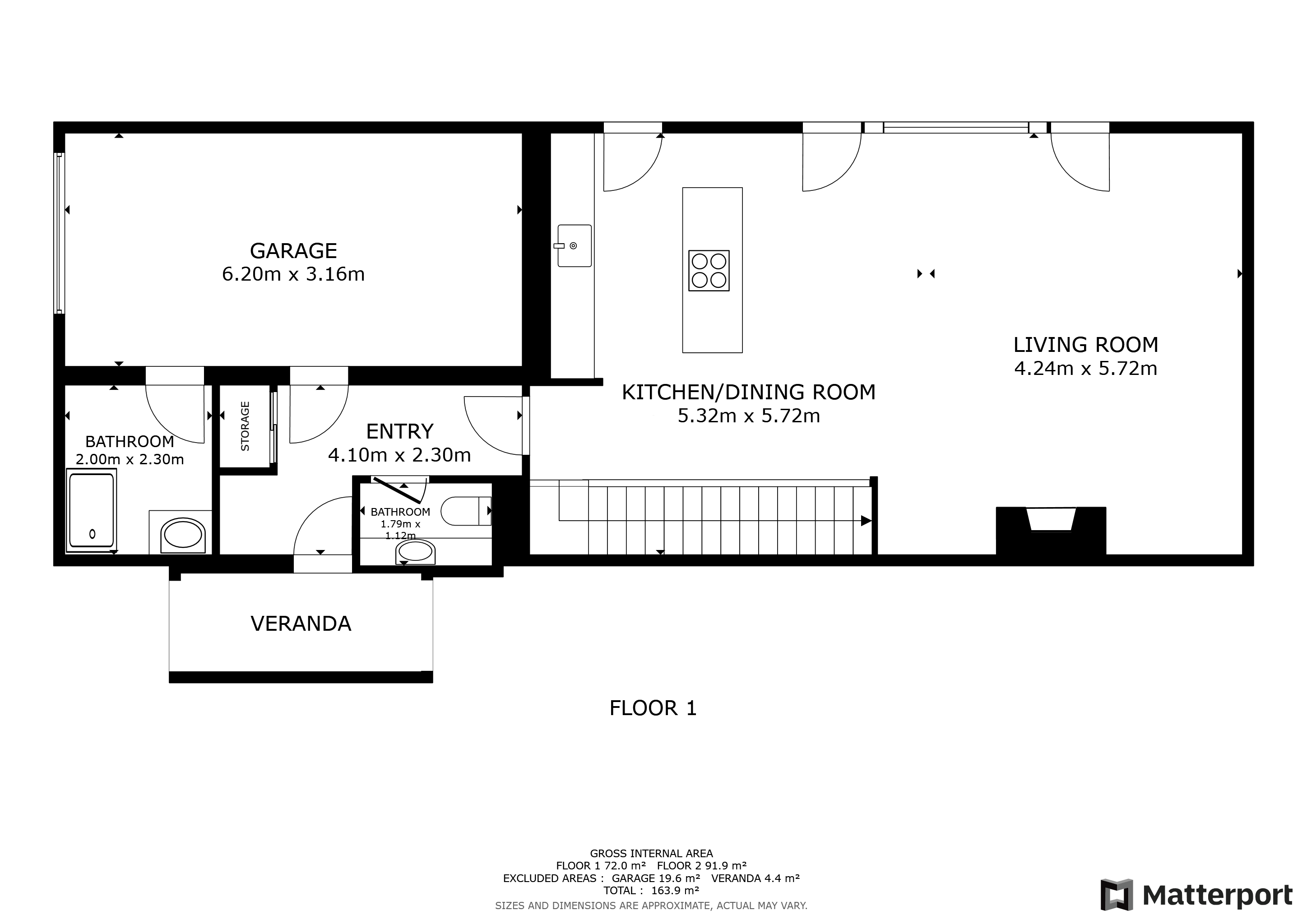
2 podlaží, dispozice 5+kk, 3 koupelny, k tomu samostatná garáž a nedávný technologický upgrade v podobě FVE s baterií. Dům tu stojí od 2012, ale překvapí vás jeho perfektní stav. Příkladná údržba, dobře zvolené materiály a nadčasová provedení odolala zubu času s elegancí a vy se tak nemusíte děsit, že u zánovního domu vysypete na stůl dalších X milionů za rekonstrukci. Tady skutečně potřeba není, věřte tomu. Nastěhovat se můžete prakticky ze dne na den a dům s přehledem pojme celou vaši rodinu. Nahoře vás čekají 4 téměř stejně velké ložnice a konečně se dočkáte také pořádného obýváku. Ten má nejen celou západní stěnu prosklenou do zahrady, ale taky nabídne 54 m2 plochy. Že byste to při pohledu na fotky zvenčí netipovali? Říkal jsem, že architekti odvedli skvělou práci.
V rámci úzké slepé ulice, která tvoří příjezd k 5 domům, se nemusíte obávat provozu ani hluku, takže vaše ratolesti klidně mohou lítat i za branami vašeho království. A pokud vás zužují problémy s parkováním, tady je ze seznamu každodenních potíží taky smažte. I když nebudete stát v garáži, pořád se před dům vejdou dvě auta a v ulici je i několik dalších míst pro návštěvy. V místě se bez potíží obejdete bez auta a na metro dojdete klidně pěšky. Půlku cesty můžete vzít v chládku přes les a na metro naskočíte zhruba po kilometru chůze. Při cestě si pak vezmete kafe v OC Chodov a na Václaváku tak včetně pěší cesty a 5 minut na frontu na kafe budete přesně za 30 minut. Můj rekord, když jsem z protější bytovky jezdil na střední na Staré Město, byl nějakých 20 minut na Muzeum. Ale to už chtělo tempo 🙂 A tohle slovo tady vůbec potřebovat nebudete. Určitě ne u sebe doma. Tempo držte kdekoliv jinde, taky vás naopak čeká klid a pohoda. A opravdu bez háčků. Nikde za rohem nic nečíhá, nic nevede, nic se nestaví... Prostě klid. Tečka.
Dispozice 5+kk | 2 podlaží
Dům celkem 173 m2 | Garáž 20 m2
Zděná konstrukce | Zateplení 100 mm
Kolaudace 2012 | Udržovaný stav k nastěhování
Pozemek 379 m2 | Obdélníkový tvar zahrady
Spotřeba plynu do 25 MWh/rok
Plynový kotel | FVE 6,3 kWp | baterie 10,7 kWh
Žaluzie a osvětlení | Kamerový systém a alarm
Žádný velký provoz nebo ruch kolem domu
33.000.000 Kč
Virtuální prohlídka domu
Abyste nemuseli studovat plánky a lovit ve fotkách, máme pro vás připravený model domu. Ten si můžete projít na displeji i s nasazenými VR brýlemi.
Bokem a v klidu, přitom kilometr od největšího nákupáku u nás. Na fotce směrem od Kunratického lesa, ze které je dobře patrná jeho bezprostřední blízkost, je vidět rovněž nejbližší základka. Tu znám dobře i zevnitř, chodil jsem tam 🙂 A v tom fialovém domě do dneška bydlí moje máma. Za lokalitu dávám ruku do ohně, bydlení tady je naprosto perfektní.
Zepředu vypadá nenápadně. Tedy nikoliv překrásný Fiat 1200, ale dům. Veškerá show se totiž odehrává mimo pohled z ulice. Ta je mimochodem slepá a není v ní absolutně žádný provoz. Dům je však pro jistotu vybaven kamerovým systémem a alarmem.
Na pozemku o ploše necelých 400 m2 si tak budete užívat skutečné soukromí a klid. Dokonale plní funkci pro ty, kdo nepotřebují lán pole (hlásím se mezi vás), ale bez zahrady a pohledu do zeleně se neobejdou.
Posezení na kryté terase je naprosto nerušené. Architektům se v roce 2012, kdy byl projekt dokončen, podařilo domy usadit tak, aby se opravdu vzájemně nijak nerušily.
Obývák o ploše 54 m2 těží z velkých oken, které tvoří celou boční (západní) stěnu domu. Hromada světla a pocit opravdové vzdušnosti. Pohled z oken je navíc opravdu příjemný. Na všech oknech jsou žaluzie, které lze ovládat centrálně, stejně tak jako veškeré osvětlení.
V domě nechybí krb, vytápění je však řešeno plynovým kotlem. Světle laděný interiér vypadá skvěle a je mimořádně zachovalý. Do domu není nutné investovat, bydlet se v něm dá okamžitě. Jeho údržba je naprosto příkladná a naživo působí ještě lepším dojmem. Věřte mi, že zklamaní nebudete. A nejsou to jen prodejní kecy, je to pravda.
Ve světlé barvě byl volen také dekor leskle lakované kuchyně, jejíž pracovní plocha je orientována směrem do obývacího pokoje. Až budete grilovat, do kuchyně můžete vstoupit bočním dveřmi přímo od linky.
V kuchyni (9 m2) naleznete veškeré potřebné spotřebiče a díky ostrůvku také dostatek úložného prostoru. Ten byl vytvořen také pod schodištěm, kde vznikl prostor pro knihovnu. Ke schodišti se ještě vrátíme.
Vstupní část domu je od obýváku oddělena skleněnou otevírací stěnou a mimo vestavěné šatní skříně je zde také vstup do garáže a na WC. Ke všemu se ještě vrátíme, teď se podíváme na ložnice ve druhém podlaží.
Opticky lehké schodiště pracuje se zábradlím z tvrzeného skla a dřevěnými nášlapy, jejichž dekor a materiál navazuje na dřevěnou podlahu v celém domě.
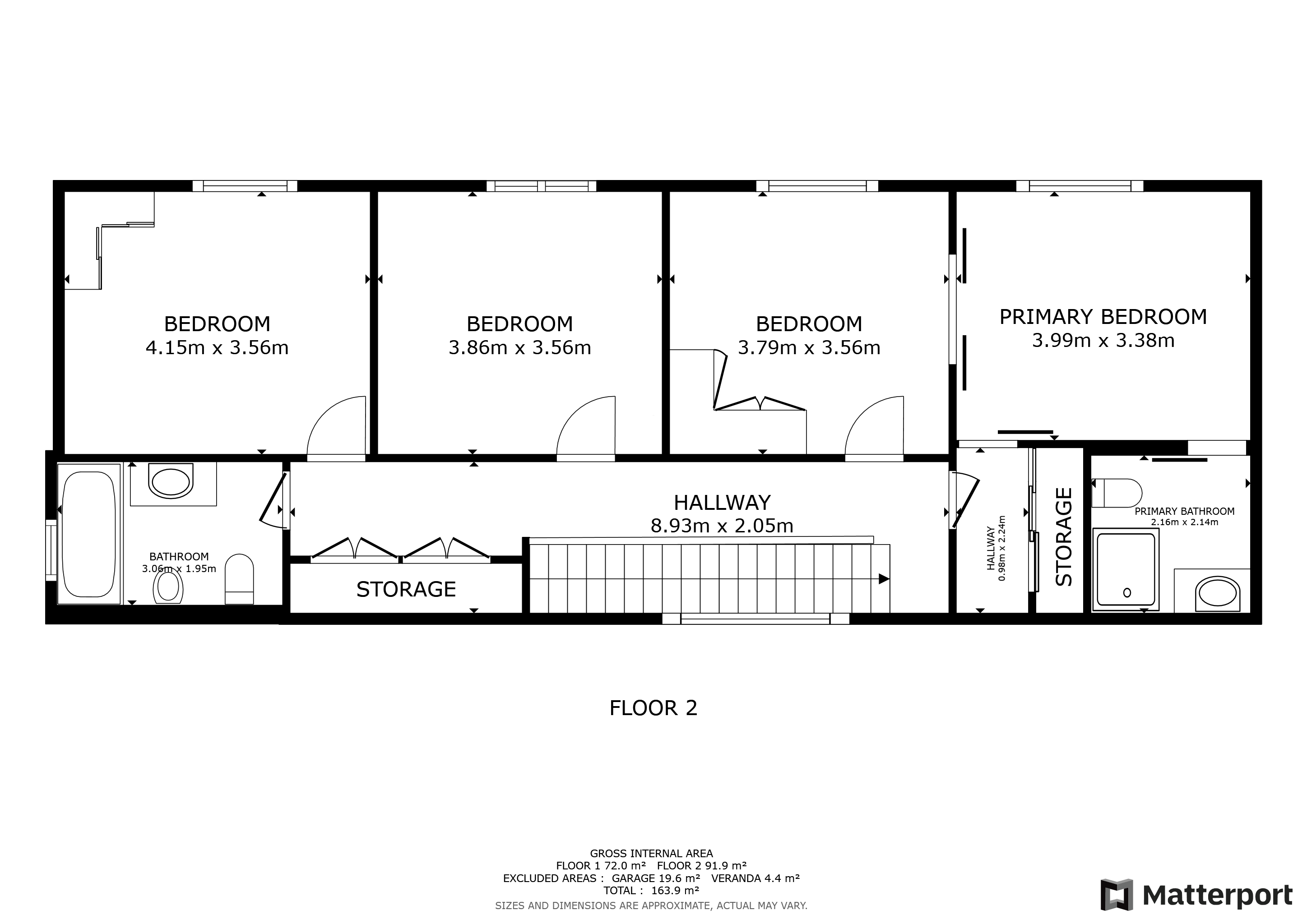
Nahoře je všechno pěkně a přehledně v řadě. Tedy na obou koncích domu koupelny, mezi nimi pak z chodby přístupné 4 ložnice.
Jejich plocha je téměř identická. Pohybuje se v rozpětí od 13 do 14 m2. Všechny ložnice mají okna na západ, tedy směrem do zahrady.
Nutno zmínit, že okna nejsou klasického formátu. Na výšku mají 190 cm, což znamená zcela odlišnou porci světla proti klasice.
Jediné okno směrem do ulice je toto z koupelny. Ta byla primárně určena dětem, takže je vybavena vanou. Velkoformátový obklad bez divokých barev je nadčasový a použitelný ještě na mnoho let.
Protože v domě nebylo potřeba tolik pokojů, hlavní rodičovská ložnice se se sousedním pokojem propojila přes posuvné dveře. Rodiče tak mimo svého pokoje na kraji domu (13,6 m2) mají k dispozici ještě pracovnu nebo velkou šatnu (13,2 m2).
A pochopitelně také svou koupelnu, tentokrát vybavenou sprchovým koutem. Vstup je z boku za postelí.
Mimo koupelny je z druhé strany postele také vstup do menší šatny (3,5 m2) Příčka, ve které jsou nyní posuvné dveře, lze pochopitelně opět zacelit a místnosti oddělit.
Vrátíme se dolů, kde jsme na vstupní chodbě minuli samostatné WC. Třetí koupelna byla vytvořena v garáži, kde je vedle pultu se dřezem ještě sprchový kout. Ten oceníte v situacích, kdy se v deštivém dni vrátíte domů z procházky se psem.
Garáž má 20 m2 a bez potíží pojme i SUV. V zadní části se pak nachází zázemí k fotovoltaice a veškeré rozvaděče. Elektrárna má výkon 6,3 kWp (14 panelů) a bateriové úložiště 10,7 kWh. Dost místa pro parking je také před domem, kam se vejde i váš Cadillac. Od zdi domu po hranici pozemku je to 6 metrů.
Hlavní vstup do domu je v krytém závětří z boku. Na konci tohoto nejužšího místa pozemku (1,3 m) je umístěn ještě malý zahradní domek.
Čistá plocha zahrady v této části pozemku je lehce přes 200 m2. Důležité je, že v naprostém soukromí, se vzrostlým živým plotem a několika většími stromy.
Ať už budete leštit váš roadster nebo grilovat s přáteli na zahradě, vždycky si budete uvědomovat hlavní hodnotu tohoto konkrétního místa. Za celý den totiž nemusíte vidět jediného člověka. A i když jsou lidi fajn, někdy je dobrý je nevidět.
Královny Žofie 1687/7, 148 00 Praha-Kunratice
Vzdálenosti od domu:
BUS zastávka U Kunratického lesa | 250 m
(linka 177 a 203)
Metro Chodov | 1 km
Večerka | 200 m
LIDL | 700 m
BILLA | 650 m
ZŠ Campanus | 650 m
MŠ Hroncova | 600 m
Hřiště | 300 m
Sportovní areál ZŠ | 600 m
Půdorys domu | 1. NP
Půdorys domu | 2. NP
Mapa katastru
Tak to je z vašeho nového domu všechno. Věřím, že vykouzlil úsměv na tváři i vám.






































































