Zbrusu nový moderní dům pouhých 7 km od Poděbrad.
Úplně nový dům, ve kterém ještě nikdo nikdy nebydlel. Moderní technologie, 6 místností, dostatečně velký pozemek a nízké náklady na vytápění díky tepelnému čerpadlu. To vše 7 km od Poděbrad a v rozpočtu do 7 milionů. Dům je zkolaudovaný a bude předán kompletně dokončený, s výjimkou instalace kuchyňské linky. Tu už si můžete vyřešit podle vlastních představ a potřeb.
Pakliže se děsíte koupě domu od velkých developerů a neosobního přístupu, pak jste narazili na opačný případ. Přístup majitele mě zaujal hned na úvodní schůzce, kde jsme probírali detaily týkající se prodeje. Praktičnost, užitná hodnota a dobré podmínky bydlení majitel kladl nad svůj vlastní zisk. Tento dům není stavěny s ohledem na korporátní šetření každé koruny, je stavěny lidmi pro lidi.
Pakliže je pro vás rozhodující dostupnost Poděbrad, pak si v autě sotva stihnete pustit své dvě oblíbené písničky. Jsou totiž opravdu kousek. A Sadská je dokonce hned vedle. V Polabí je krásně a nebude vám tu chybět vůbec nic. Kostelní Lhota dokonce vyhrála v roce 2016 cenu Vesnice roku.
Dispozice: 4+kk
Obytná plocha: 102 m2 + terasa 18 m2
Dvě obytná podlaží
Pozemek: 549 m2
REZERVOVÁNO
Dispozice: 6+kk
Obytná plocha: 159 m2 + terasa 18 m2
Dvě obytná podlaží
Pozemek: 678 m2
REZERVOVÁNO
Parkovací stání před domem pro 2 vozy
Vytápění tepelným čerpadlem
Teplovodní podlahové topení
Oddělení zahrad 6 m dělící příčkou
Elektřina, kanalizace, vodovod. Vyvedení přípojek vedle domu k napojení dalšího objektu (přístřešek pro grilování, zahradní domek)
Uvedené plochy odpovídají doložené technické zprávě a katastrální mapě.
3D interaktivní prohlídka domu
Abyste nemuseli studovat plánky a lovit ve fotkách, máme pro vás připravený model většího domu. Ten si můžete projít na displayi i s nasazenými VR brýlemi.
Na první fotce (vizualizaci) z dronu je nejlépe patrné řešení tohoto dvojdomu. Linka na střeše mezi okny odhaluje dělení částí. Vlevo se tedy nachází větší 6+kk, vpravo poté menší 4+kk (prodáno). Když už je řeč o střeše, střešní krytinu tvoří betonové tašky KM Beta. Fotografie zároveň prozrazuje umístění domů v rámci obce. Zahrady jsou orientovány k lesu, výhled není rušen žádnou okolností zástavbou.
Pozemek nabízí dostatek prostoru pro vybudování bazénu či grilovacího zázemí. I na to se myslelo, a tak jsou z boku domu vyvedeny veškeré sítě k dalšímu napojení (voda, odpad, elektřina). Na pozemku si tak dokonce můžete vytvořit i další plnohodnotný domek, například útočiště pro vaše děti nebo hosty.
Tepelné čerpadlo je umístěné v místě, ve kterém není žádná klidová zóna. Neexistuje tedy, že by chod čerpadla jakkoliv rušil. Kompletní servis vč. pozáručního je zajištěn přímo zhotovitelem domu.
Dům je jednoduché, nestárnoucí architektury bez zbytečných příkras. Obvodové zdivo domu je Ytong 300 mm, které je zatepleno polystyrenem 160 mm. Veškerá okna v domě jsou izolační trojskla s velmi nízkým koeficientem U = 0,75 W/m²K. Díky těmto parametrům a systému vytápění lze očekávat skutečně velmi nízké náklady na provoz domu. Zabezpečení řeší pohybová čidla s možností napojení bezdrátového řízení. Druhá fotografie je přední část domu, kde je před francouzskými okny umístěná terasa o velikosti 18 m2.
Tato část pozemku je vzájemně oddělena dělící příčkou. Výstup na terasu je realizován z hlavních prostor domu, tedy z obývacího pokoje s kuchyňským koutem.
Jak si vaše nové království vybavíte nebo dokončíte, to už necháme na vás. Zpracovali jsme vám ale pár nápadů provedení interiéru. Vnitřní prvky budou kompletně dokončené s výjimkou kuchyňské linky - tuto záležitost necháváme na vás. Linka je věcí individuálních potřeb a vkusu. Bylo by tedy zbytečné platit za něco, co by vám ve výsledku nevyhovovalo. V dokončení tak máte stále poměrně široké pole působnosti.
Koupelny jsou vyvedeny v jednoduchém a minimalistickém designu. Tedy žádné divoké barvy a mozaiky, ale nestárnoucí provedení, které bude vypadat čerstvě i za 10 let. Obklady jsou bílé, světle šedé a šedé značky RAKO, řady EXTRA (kód WADMB722, 723 a 724).
Fotografie prostorného obývacího pokoje, ze kterého je výstup na již zmíněnou terasu. Instalace kuchyňské linky a světel je na vás, zbytek domu je kompletně hotový. Podlahy jsou izolovány polystyrenem o tloušťce 120 mm, střecha je izolovaná 300 mm minerální vaty. V kombinaci s izolačními trojskly tak dům spadá do třídy energetické náročnosti B a lze očekávat velmi nízké náklady na provoz.
Zvenčí se to možná nezdá, ale dům je skutečně obrovský. V horním podlaží jsou hned 4 ložnice a ještě šatna. Nejmenší pokoj má 9 m2, největší pak 17.
Výhled z oken vás tady asi určitě neurazí, je totiž naprosto skvělý. Pole, louky a lesy. Přitom do Poděbrad to máte cobydup. A to samé i Praha, na Čerňáku jste s přehledem do půl hodiny.
Dostatek prostoru naleznete i na chodbě, ze které je přístupná tato rozměrná půda. Ta je celá pochozí a je velmi příjemným bonusem pro všechno, co už 10 let nepoužíváte, ale vyhodit to prostě nejde.
Podlahovou krytinu tvoří dlažba RAKO SALOON 20x80 cm (kód DAK82748) v dekoru tmavého dřeva. Stejné obložení je i na schodišti. Obavy ze studené dlažby můžete díky podlahovému topení hodit za hlavu.
Díky podlahovému topení nebudou interiér hyzdit žádné radiátory, které navíc zabírají místo. Každé podlaží domu lze samostatně regulovat přes centrální termostat. Dům má k dispozici samostatnou technickou místnost, ve které je umístěná vnitřní jednotka tepelného čerpadla společně s vývody na pračku a sušičku.
Z terasy domu je volný výhled na pole a protější lesy, který nic nezastiňuje. Na poli momentálně probíhá zemědělská činnost.
Nejen v proslulých lázeňských Poděbradech je hezky. I obec Kostelní Lhota má své historické centrum, které tvoří prostor kolem nově zrekonstruované školy, která tu stojí už od roku 1778.
Jelikož jsou domy ještě před kolaudací, je zadaná adresa protějšího domu. WEB obce Kostelní Lhota.
Vzdálenosti od domu:
Stanice BUS: 500 m (linka 398 a 433; 46 minut na Černý Most)
Vlak Sadská: 3.5 km, 6 minut
Koloniál Kostelní Lhota
Potraviny Sadská: 3.5 km / 6 minut
Poděbrady - centrum: 7 km / 10 minut
Sadská - centrum: 3.5 km / 5 minut
Dálnice D11: 7 km / 9 minut
Praha - Černý Most: 36 km / 27 minut
Nejbližší ZŠ a MŠ je přímo v Kostelní Lhotě. Škola je k dispozici pochopitelně i v sousední Sadské a Poděbradech.
Obcí prochází cyklotrasa 8240 Labe-Sadská-Poděbrady. Dvě restaurace, fotbalový, vodácký a volejbalový oddíl. Pro vášnivé rybáře pak rybník "peklo" u kostela a jez Výrovka.
Předmět prodeje - výpis na listu vlastnictví
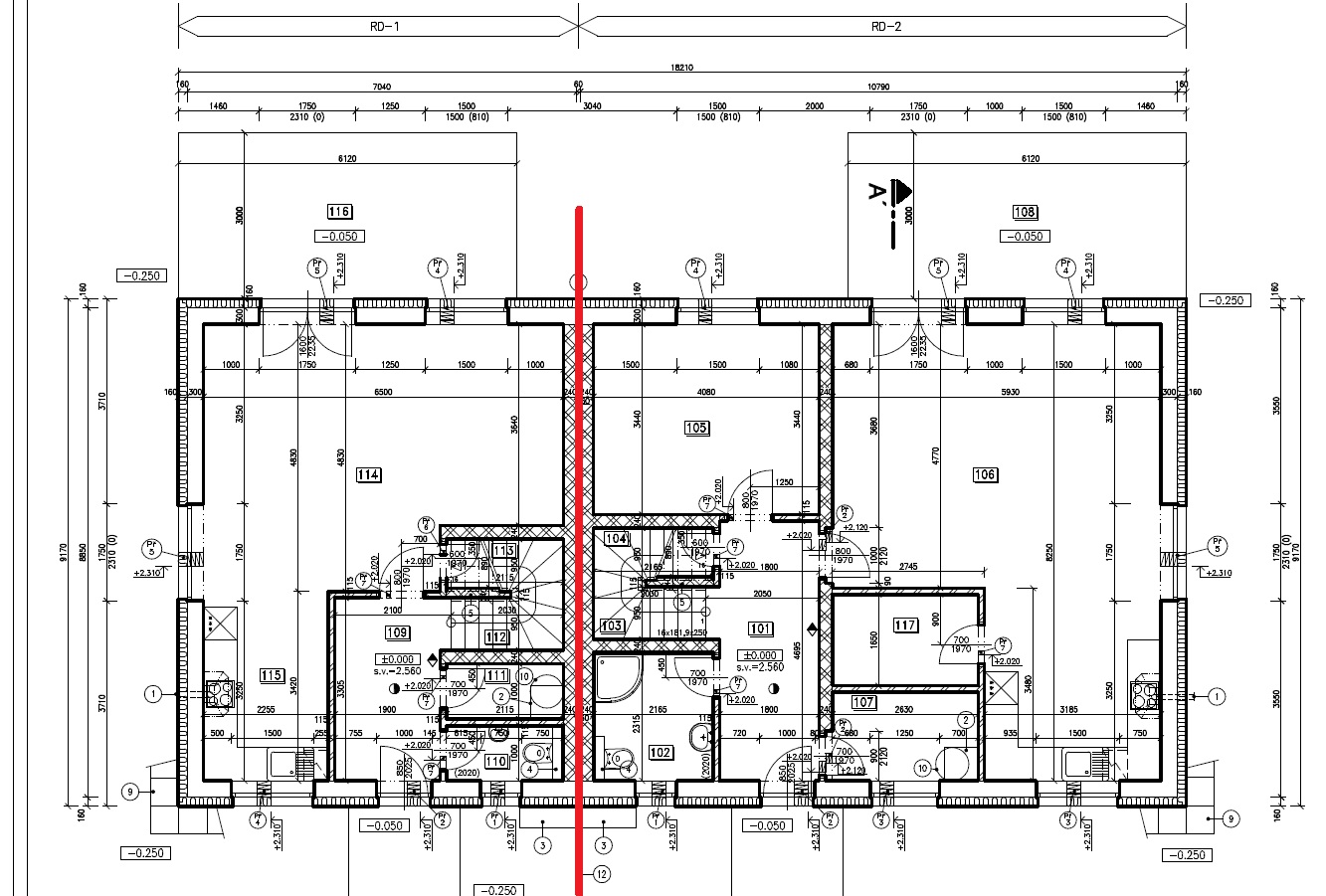
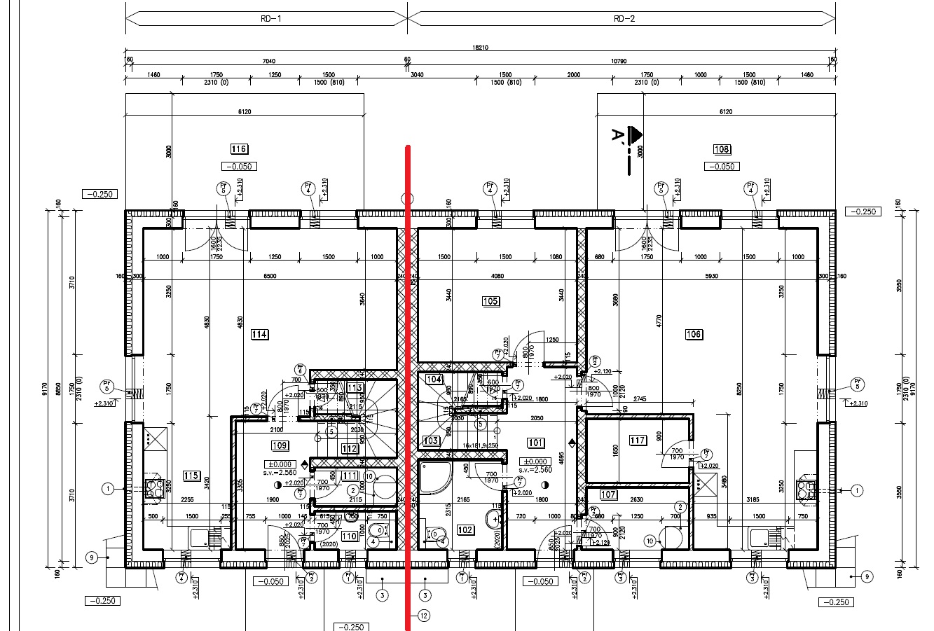
První podlaží
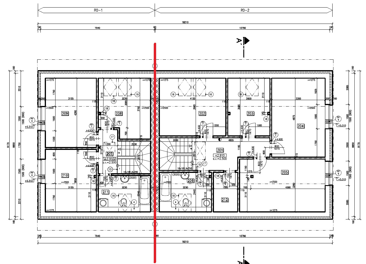
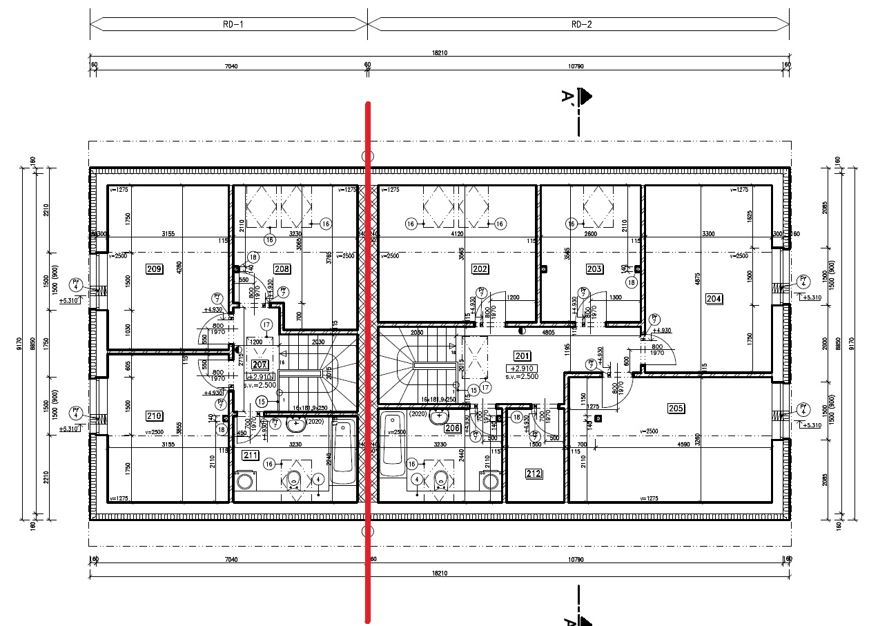
Druhé podlaží
Projektová dokumentace ke stažení
Dům 4+kk - REZERVOVÁNO
Dům 6+kk - REZERVOVÁNO
Zajímají vás další informace? Zavolejte nebo napište, rád vám je doplním. A nebo úplně nejlépe, přijeďte se podívat.



























































