Prodej řadového domu Mělník - Ondřej Černovický - certifikovaný realitní makléř

Prodej řadového domu Mělník

Do řadovky a přesto z řady vystupovat.

Absolutně komfortní bydlení v řadovém domě, který je krajní, s velkým pozemkem a dostatkem prostoru i pro větší rodinu. Tento dům je navíc "postižen" perfekcionistickým přístupem současných majitelů - ti skutečně nenechali nic náhodě.

A tak si na zpracování hlavní části domu nechali skutečně záležet. Povolali designéry ze studia OBLIQO a nechali vytvořit kuchyni, kterou můžete plnit titulky magazínů o bydlení.

Dvě podlaží, celkem 146 m2 a dispozice 5+kk. Vše připraveno, rovnou k nastěhování. Tento dům byl totiž dokončen teprve loni, takže je to skutečně čerstvá novostavba. A protože je rohový, nabízí i větší pozemek - ten má přes 500 m2, tedy naprosto plnohodnotná zahrada.

Tento nevídaný balíček nabízí dům, který si nyní můžete pořídit. Bez nákladných investic​, připraven okamžitě plnit úlohu nového útočiště vaší rodiny.

Jako bonus obdržíte k domu ještě kompletní návrh zahrady od zahradního architekta. Tady se vážně myslelo úplně na všechno. Pergola, kůlna, bazén a detailní plán osázení dřevin. Docela příjemný welcome drink, nemyslíte?

Ahoj, prohlídku tohoto domu mám na starosti já.

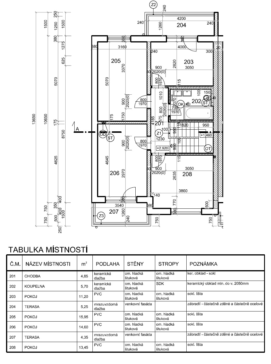
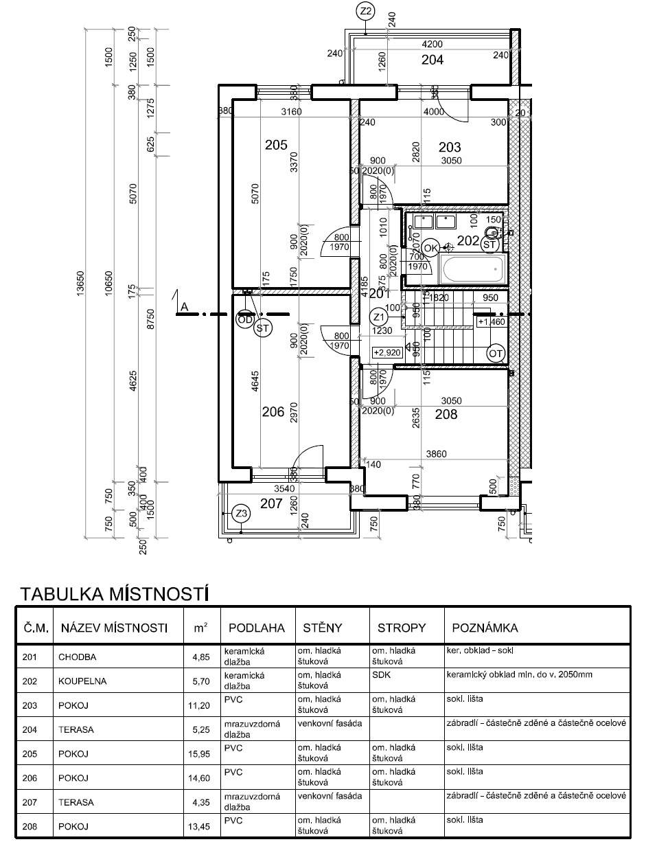
Plocha: 146 m2 s garáží (18 m2)
Pozemek: 519 m2
Dispozice: 5+kk

Dokončení stavby: 2019
Orientace zahrady východ - jih - západ
Třída energetické náročnosti: B

Vytápění: 1.750 Kč (plyn)
Elektřina:  2.000 Kč
Kotel Vailant 14 kW

Uvedená plocha odpovídá rozměrům uvedených v projektové dokumentaci a v katastru nemovitostí.

Virtuální prohlídka domu

Máme pro vás připravený model domu. Ten si můžete projít na displayi i s nasazenými VR brýlemi.

Vítejte u svého nového domu. Nového po všech stránkách. V přední části pozemku se nachází velká zpevněná plocha, která umožňuje parkování několika autům. Nad garáží je patrný jeden z balkonů domu.

Největší pecka na interiéru tohoto domu, alespoň za mě. Tahle vychytaná kuchyně není dílem náhody, ale designerů, kteří ji navrhli čistě pro tento dům. A nejen tuto kuchyni, i spoustu dalších prvků. Všechny spotřebiče v kuchyni jsou BOSCH.

Na rozdíl od všech ostatních domů v ulici, tento má k dispozici okno ke kuchyňské lince. Tento individuální požadavek majitelů zajišťuje pracovní ploše dostatek denního světla. Já v tom hned vidím "výdejní okénko" dětem na zahradu 🙂 Z hlavní místnosti, která má přes 40 m2, je dvojicí francouzských oken výstup na terasu. Celé první podlaží domu je vytápěno podlahovým topením, nejsou tu radiátory.

Jestli tento návrh designerů dotáhnete do úplně podoby nebo ne, to už bude na vás. Pro inspiraci ale poslouží skvěle.

Venkovní terasa (dřevěná je na jih) lemuje celý obvod domu v různých materiálech. U oken jsou přípravy na instalaci elektrických předokenních žaluzií.

Povrchy venkovních ploch mají moderní vzhled i dostatečnou trvanlivost. První fotka je plocha před dveřmi do obýváku a kuchyně, druhá pak terasa z boku domu.

Záběr shora prozrazuje koncepci venkovní plochy. Pro odstínění plochy posezení je zpracovaný návrh pergoly s integrovanou kůlnou - naleznete na konci webu. Garáž momentálně funguje jako úložný prostor (18.5 m2, 3 x 6.1 metru). Vrata jsou manuální, vjezdová brána na pozemek pak elektrická s motorem Hormann.

Oběhli jsme dům kolem dokola a vrátíme se zpátky dovnitř. Vstupní chodba s prostorem na botník nabízí po levé straně přístup do spodní koupelny.

Velkoformátová dlažba, tlumené tóny, sprcha bez vaničky, závěsná toaleta a po všech stránkách moderní vzhled. Dveře vlevo na první fotce (u sprchového koutu) vedou do technické místnosti. Tam je umístěn kotel, zároveň úložný prostor a prádelna (+ příprava na změkčovač vody).

Ještě než vyběhneme nahoru, neodpustím si detail v podobě dveří do pouzdra, která jsou barevně sladěná s návrhem interiéru v kuchyni a obýváku. Vtipný a svěží prvek, který dodá i obyčejné chodbě šmrnc.

Přes chodbu horního podlaží se nejprve přesuneme do protějšího pokoje. Z druhé fotky je pak patrné umístění koupelny.

Zadní ložnice o velikosti 11 m2 má výstup na balkon na jižní stranu, ten nabídne lehce přes 5 m2.

Moderní provedení a materiály jsou použity v celém domě, výjimkou tedy nejsou ani dveře, obložky a podlahy.

Tato místnost o velikosti 16 m2 funguje momentálně jako dětský pokoj. Tento, i pokoj s balkonem, mají k ruce horní koupelnu.

Ta už je o poznání větší, pohodlně se do ní vejde vana. V tomto domě se tedy nemusíte hádat, jestli chcete vanu nebo sprchu - k dispozici je obojí.

Hlavní, rodičovská ložnice je nyní v přední části domu a k dispozici má svůj balkon. Velikost místnosti činí 15 m2 a její orientace je na severo východ, pro klidné spaní v teplých měsících tedy naprosto ideální.

Balkon o 4 m2 se nachází nad vstupem do domu. Za domy naproti jsou vinice, které patří k zámku Neuberk. Odtud také pochází jméno ulice.

Poslední pokoj je pak místnost o velikosti 13.5 m2. Ten nyní funguje jako pracovna. Dům je napojený na optický kabel s rychlostí přenosu 1.000 Mb/s. Okno v modrém poli na druhé fotce, vedle si pak můžete všimnout sousedního balkonu. V ulici drtivě převažují mladé rodiny s dětmi a dle slov majitelů se tu dokonce konají pravidelné sousedské sešlosti.

Zatímco dům klame tělem a jeho velikost nemusí být na první pohled vůbec patrná, zahrada to o sobě prozradí hned. Příjemných 519 m2 a spousta místa pro vaše záhonky a kytičky.

Zahrada ještě nestačila zarůst, nicméně její kompletní návrh je k dispozici. Ten je natolik detailní, že řeší vysázení všech rostlin, doslova metr po metru. Jeho náhled je na konci webu.

Vzdálenosti od domu:

Centrum: 4.4 km / 7 minut autem / 3 km pěšky

Vlakové nádraží: 1 km / 10 minut pěšky
Autobusové nádraží: 1.6 km
Stanice autobusu: 460 m (474, 695, 696)

Školní statek Mělník - za rohem - lokální zelenina, ovoce a víno
Supermarket Penny: 1.6 km
Supermarket Lidl: 1.5 km
Supermarket Tesco: 1.7 km

Park Na Podolí: 1.7 km

Škol a školek je v okolí tolik, že to snad nejde spočítat. Takže jsem se o to ani nesnažil. Spádová škola pro tento dům je ZŠ Seifertova.

Dům je tak nový, že si ho na Googlu ještě nevšimli. Adresa je K Neuberku 4254, Mělník (GPS 50.3567417N, 14.5006106E)

Půdorysy domu

Návrh zahrady​​​​​

Máte pocit, že nějaké informace chybí? Rádi byste něco doplnili? Zavolejte nebo napište, jsem vám k dispozici.

6.990.000 Kč


rfwbs-slide

Reference

Co o mně říkají klienti?

Copyright © 2018. Všechna práva vyhrazena.

Vytvořil Tomáš Hlad.