Zbrusu nové 5+kk s garáží, které stále voní novotou. Stačí dotáhnout zahradu. REZERVOVÁNO.
Lámete si hlavu nad koupí nového rodinného útočiště? Koupit pozemek a pustit se do mnohaletého dobrodružství se stavbou domu? První rok budete věnovat výběru architekta a strávíte ho nad nekonečným množstvím papírů. To není žádný strašení, však se zeptejte kohokoliv v okolí. Nebo koupit starší dům a pustit se do jeho rekonstrukce? Tuhle myšlenku jsem měl taky. Nakonec mě rekonstrukce vychází o 10% dráž, než stavba nového domu vedle. Tyhle story se zkrátka dějí. Co takhle ale udělat pořádný life hack a koupit dům, který je právě teď čerstvě zkolaudovaný, nikdo v něm nikdy nebydlel a nestavil ho na kšeft? Ostatně to je patrné hned na první pohled, stačí se podívat třeba na standard vybavení koupelen, které jsou v domě hned 3. Toto zbrusu nové 5+kk se samostatnou garáží na kraji Újezda nad Lesy, kde je na konci slepé ulice, vám dost možná ušetří pár šedivých vlasů na hlavě.
Tím nechceme tvrdit, že by byl dům dokonalý. Ostatně kdo chce psa bít, hůl si vždycky najde. S čistým svědomím však tvrdit můžeme, že byl postaven s maximální mírou péče a měl sloužit jako rodinné útočiště majitelů, kterým se však rodinná situace změnila. Nastupuje vaše šance. Na hlavní konstrukční prvky běží 10 letá záruka, ty ty vedlejší 5 letá a na celý dům 3 letá (včetně technologií). Kuchyně je v domě již osazená a ke stěhování tak chybí pouze váš nábytek, nicméně i velká část toho současného v domě může zůstat, pokud byste o něj stáli. Technologie jsou pochopitelně soudobé, takže podlahové topení s tepelným čerpadlem nebo kvalitní okna a izolace. Chybět bude akorát dokončit zahradu, kde zůstává volné pole působnosti vaší fantazii nebo potřebám. Obdélníkový pozemek o ploše přes 1.000 m2 má navíc jeden malý bonus, který to byl schován pro děti. Původní stavba chaty totiž měla být přebudována pro perfektní dětskou základnu. Odněkud musí děti vaši domácnost přeci řídit, no ne?
Na konci slepé ulice se nemusíte obávat provozu ani hluku, takže vaše ratolesti klidně mohou lítat i za branami vašeho království. Sousedy budete mít jenom z jedné strany, z té druhé je totiž lesík a procházka mezi poli k vyhlídce na Sibřině. Na kraj Klánovického lesa se dostanete po zhruba 25 minutách procházky a do centra budete moci konečně pohodlně jezdit vlakem, protože na nádraží Klánovice je to zhruba 3 km. V klídku, v přírodě, ale přitom pořád v Praze. Třeba právě tady najdete zázemí, o kterém už tak dlouho přemýšlíte. Bez obav z koupě zajíce v pytli, protože jak už bylo zmíněno - záruky jsou teprve nově aktivní (od září 2024) a přechází na vás.
Dispozice 5+kk | Samostatná garáž
Dům 143 m2 + garáž 22 m2
Zděná konstrukce | Zateplení 150 mm
Kolaudace 5. 2. 2025 | Budete první obyvatelé
Pozemek 1.082 m2 | Obdélníkový tvar
Na pozemku 2 malé vedlejší stavby | Zapsané
Tepelné čerpadlo | Podlahové topení
11 km od metra Černý Most
Žádný velký provoz nebo ruch kolem domu
18.290.000 Kč
Virtuální prohlídka domu
Abyste nemuseli studovat plánky a lovit ve fotkách, máme pro vás připravený model domu. Ten si můžete projít na displeji i s nasazenými VR brýlemi.
Dům je umístěný na konci slepé ulice, kde sousedí s lesíkem. V okolí je tedy klid a prakticky nulový provoz, takže i kdyby vám děti pláchly za hranici vašich bezmála 1.100 m2, nemusíte se o ně obávat.
Uvnitř vás čeká vůně novoty a podařený interiér, ve kterém vám bude zkrátka dobře. Hlavní obytný prostor nabízí plochu zhruba 45 m2.
O příjemnou míru světla se stará prosklený roh místnosti, který tvoří přes posuvná dveře také propojení se zahradou. Na té měla vzniknout terasa.
Zahradu s terasou už si budete muset dotáhnout podle sebe. Alespoň ale bude vypadat přesně tak, jak to chcete.
Zato uvnitř už se trápit nebudete. Třeba taková kuchyně vypadá opravdu fantasticky. Nikdo v ní ještě nic nevařil, první kafe čeká na vás.
Je vyhotovena v černém matu bez úchytů a designově je tak velmi čistá a nadčasová. Je v ní dostatek prostoru i na vestavěnou americkou lednici, další hromadu pracovní plochy i úložných prostor poskytuje ostrůvek s varnou deskou. Digestoř je skrytá v podhledu.
Výška stropu v části bez podhledu (který je pouze nad kuchyní) je 270 cm. Prostor je dostatečně velký pro umístění plnohodnotného jídelního stolu. Kdo byl pozorný, všiml si v ostrůvku vestavěné vinotéky. Hned proti ní je pak lenoška pod schody. Náhoda? Nemyslím si.
Mimo hotové kuchyně budete mít k dispozici také kompletně hotovou vestavěnou šatní soupravu ve vstupním zádveří domu. Ta svým designem navazuje na barevné ladění linky.
Nejmenším pokojem je tato devítimetrová místnost, která je rovněž v přízemí. Sloužit může jako pracovna nebo pokoj pro hosty. Všechny ostatní ložnice jsou nahoře.
Spodní koupelna s walk-in sprchovým koutem je kombinovaná s technickou místností.
Vedle zásobníku na teplou vodu a vnitřní jednotky tepelného čerpadla tak umístíte pračku a sušičku nad sebe. Venkovní jednotka tepelného čerpadla je umístěna z druhé strany zdí. Vlevo od ní pak můžete vidět vstup do nejmenšího pokoje. Systém zn. TOSHIBA je pochopitelně napojen do podlahové topení.
Do technické místnosti budete pořádat exkurze. Asi těžko totiž budete hledat takovou, která by byla hezčí. Černá matná barva se nese celým interiérem - od sanity, přes vestavění skříně nebo dveře s obložkami.
Schodiště je opticky lehké, svůj podíl na tom má skleněné zábradlí z tvrzeného skla. Prostor pod konstrukcí pak lze využít například pro vestavěnou knihovnu.
Na chodbě je dostatek denního světla díky velkým oknům. Přístup do všech místností je přehledný a nejsou průchozí.
Největší ložnice je vyhrazena rodičům, kteří mají zcela samostatnou sekci. Tedy s vlastní šatnou i koupelnou. Plocha pokoje samotného je 15 m2.
Vstupní část sekce rodičů je dostatečně prostorná (6 m2) pro umístění vestavěné šatny.
Tato koupelna je vyhrazena pouze rodičům. Děti mají svou na druhém konci chodby. Velký sprchový kout se obejde bez nevzhledné vaničky a nechybí nika pro odkládání šamponů.
Koupelny jsou častým poznávacím znamením úrovně standardu celého domu. Tady se opravdu není za co stydět, vypadají skvěle.
Přesun přesně na druhou stranu. Dětská koupelna je vybavena vanou, materiály jsou ale jinak identické. Aspoň k vám pořád děti nepolezou, protože máte hezčí dlaždičky.
První z dětských pokojů je orientovaný směrem do zahrady. Jeho plocha je 15 m2.
Druhý pokoj je o chloupek menší, tedy 14 m2.
Jsou dva pokoje dětem málo? No tak ještě, že tu máme plán B. Původní stěna chata na pozemku zůstala právě proto, aby mohla sloužit jako základna k velení nad světem. Nejedná se o černou stavbu, chata je řádně evidovaná v katastru. Zastavěná plocha je 18 m2 a má dokonce přidělené i evidenční číslo.
Pozemek je obdélníkové tvaru v rozměru 11 m na šířku a 87 m na délku. To už se z jednoho konce na druhý solidně proběhnete. U chaty se nachází ještě stará původní studna.
Součástí domu, avšak mimo hlavní půdorys, je tato samostatná garáž pro jedno auto o ploše 22 m2 (délka 6,5 metru). Dveře má od hlavního vstupu do domu, nemusíte tedy chodit vraty.
Zpevněné plochy kolem domu nejsou dokončené, přístupový chodníček nebo parkovací plochu pro další auta už necháváme na vás.
A poslední bonus na konec? V úplném cípu pozemku se také nachází malá stavba - kůlnička. I ta je v katastrální mapě evidovaná na vlastním pozemku (11 m2) a je tedy legální.
Ježovická 2916, 190 16 Praha 21 - Újezd nad Lesy,
Vzdálenosti od domu:
BUS zastávka Ježovická | 270 m
(linka 209 a 303)
Vlak Klánovice | 3 km - 5 min autem
Metro Černý Most | 11 km - 15 min
Klánovický les | 1.500 m od domu
ZŠ Masarykova | 1.400 m
LIDL | 1.200 m
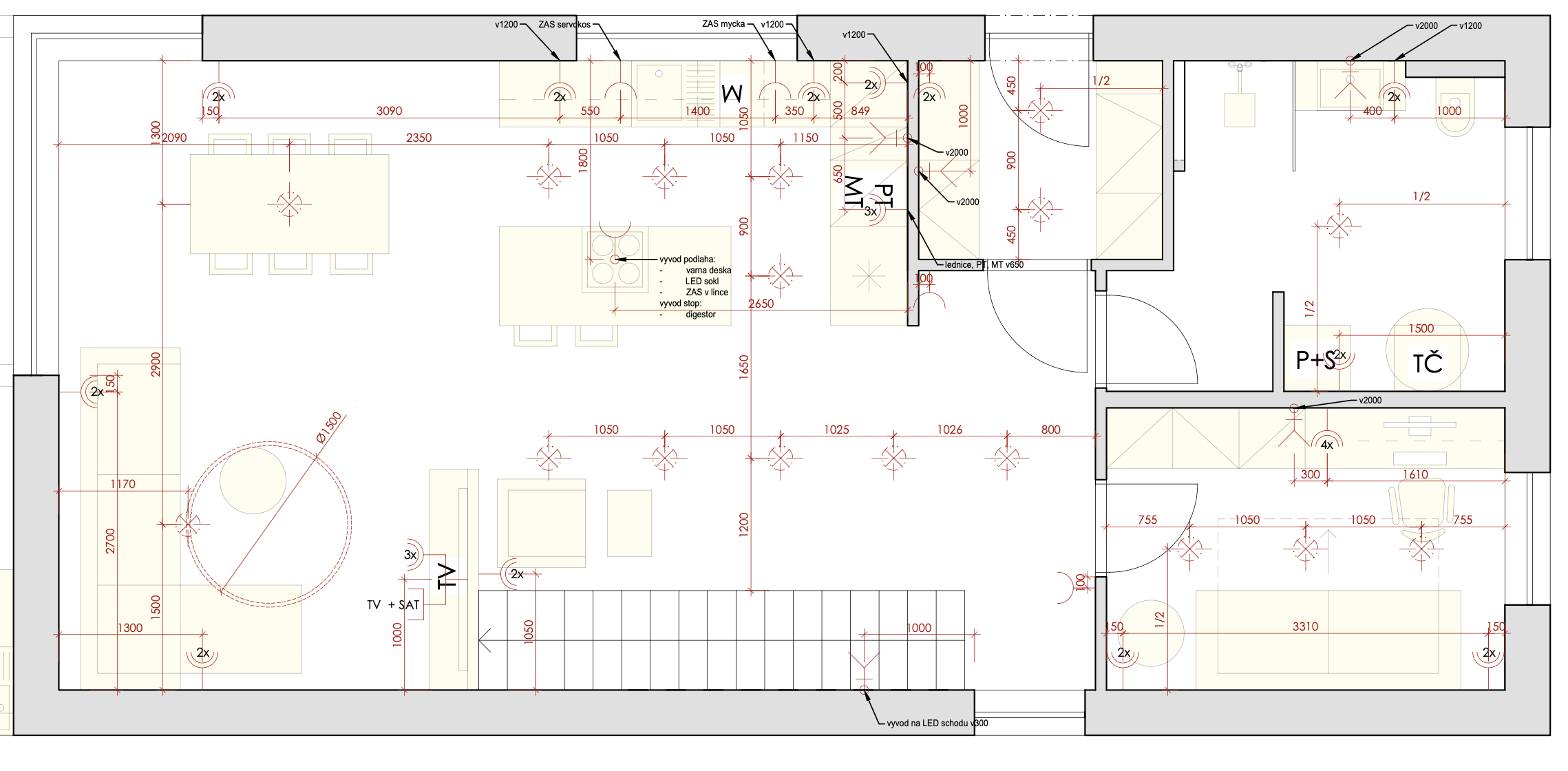
Půdorys domu | 1. NP
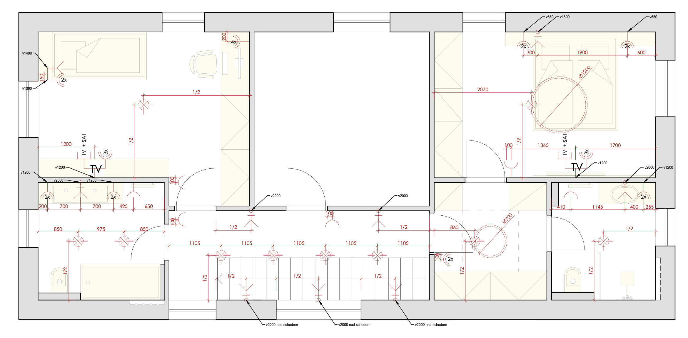
Půdorys domu | 2. NP
Situace
PENB
Tak to je z vašeho nového domu všechno. Věřím, že vykouzlil úsměv na tváři i vám.













































































