Skvělá alternativa k většímu bytu, ale ve vlastním domě. REZERVOVÁNO.
Víc místa, vlastní zahrádka a možnost oddělení domu například pro vaše koníčky nebo podnikání. Tento třípodlažní zrekonstruovaný řadový dům nabízí na ploše lehce přes 120 m2 nečekaně hodně možností. Kompletní přestavbou prošel v roce 2011, je volný a bydlet v něm můžete klidně okamžitě. Pokud jste místní, jednu z hlavních třešniček na dortu netřeba představovat. Dům ve slepé ulici nedaleko IKEMu je pouze pár minut chůze od největšího pražského lesa a přesto, že si tu často můžete připadat jako na vsi, budete na metru cobydup.
V domě vás čekají ve dvou obytných podlažích 3 obytné místnosti a další dvě v suterénu, který je však směrem do zahrady otevřený velkým oknem. Právě v této části můžete volit rozmanitý způsob využití. Kancelář, salon, pracovna, ateliér? S výhledem do zahrádky se v každém případě bude jednat o příjemné prostředí. Ta není nijak obrovská, však pozemek má dohromady necelých 250 m2. Je to tak akorát, abyste měli vlastní zelený kousek, ale zároveň se nestrhali při jeho údržbě.
Z původní stavby, která zde vznikla ve 40. letech jako vzorový dům pro řadovou výstavbu, která se nakonec ve větším měřítku nerealizovala, toho nakonec tolik nezůstalo. Posloužila před 12 lety jako základ, ze kterého se využily prakticky jen obvodové zdi. Dům se rekonstruoval doslova od podlahy po střechu a v současné době vyžaduje pouze účinnějšího izolaci sklepních prostor.
Dispozice 4+kk | Zděná stavba
Plocha 121 m2 dle Matterportu
Pozemek celkem 241 m2
Po kompletní rekonstrukci 2011
Zahrádka 143 m2 za domem
Suterén | 2 obytná podlaží | Půda
Vytápění plynovým kotlem 10 kW
K dispozici okamžitě | Připraveno k předání
Ve slepé ulici nedaleko Krčského lesa
Uvedené plochy pozemku a domu odpovídají katastrální mapě či laserovému měření technologií Matterport. Neodpovídám za jejich správnost a jsou orientační.
Provedené rekonstrukce a úpravy:
- Rozvody vody, elektřiny, odpadu a topení
- Izolace stropů skelnou vatou
- Nová fasáda, izolace sklepa směrem do ulice
- Zateplení místnosti pod terasou (zbytek domu bez)
- Střešní krytina
- Plastová okna a vstupní dveře
- Kuchyňská linka
- Renovované původní schody
- Dveře vč. obložek
- Podlahová krytina - vinyl
13.950.000 Kč
Virtuální prohlídka domu
Abyste nemuseli studovat plánky a lovit ve fotkách, máme pro vás připravený model domu. Ten si můžete projít na displeji s nasazenými VR brýlemi. Využijte také funkci měření rozměrů.
Od domu neočekávejte žádné architektonické výstřelky Jednoduchá stavba s bílou fasádou působí směrem do ulice skutečně nenápadně. Předzahrádka má plochu zhruba 31 m2 (dle funkce měření ploch katastru). Pozemky jsou dva - zastavěná plocha nádvoří (tedy vč. předzahrádky) a pozemek za domem, který je veden jako zahrada.
Ta nabídne novému majiteli dalších 143 m2 čisté plochy, tedy 24 m na délku a 6 m na šířku.
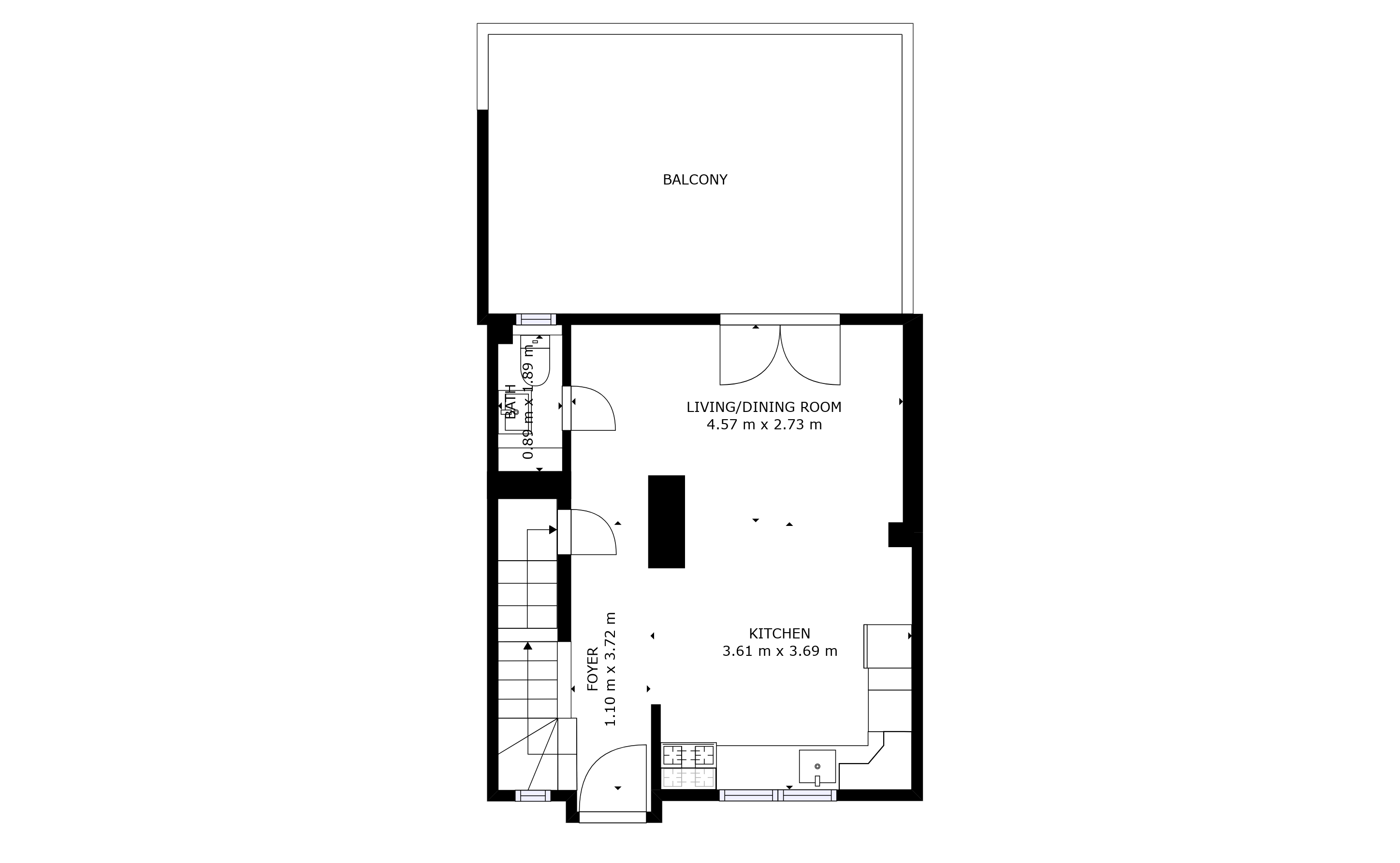
Teď ale proběhneme rovnou dovnitř. Vstup do domu je realizován do podlaží, ve kterém se nachází otevřený prostor obýváku s kuchyní. Vstupní zádveří nyní není oddělené. Původním prvkem, který odkazuje na éru vzniku domu, je originální schodiště.
Okna do hlavního obytného prostoru jsou z obou stran, tedy jih a sever. Jižní strana je u kuchyně, severní potom na terasu směrem do zahrady.
Právě tento uklidňující pohled do zeleně je možná právě to, co vám u současného bydlení chybí. Velká terasa (20 m2) je mezi domy zapuštěná, což jí poskytuje příjemné závětří a také soukromí. Zastřešena je vytahovací markýzou. Nebo tady snad vytvoříte vaši vysněnou zimní zahradu? (základy jsou na nosnost dalšího podlaží připravené).
Plocha hlavního obytného prostoru domu je celkem 30 m2. Ve sloupu u stolku vedou komíny. Pokud byste tedy v obýváku chtěli třeba kamna, není problém je napojit.
Příjemně světlá kuchyně těží z jižní orientace i velkého okna, které prosvětluje pracovní plochu. V kuchyní nechybí všechny nezbytné spotřebiče. Trouba je ve skříni vlevo, myčka pak pod sporákem.
Dveře, které vykukují, jsou od samostatné toalety. Z obýváku nebo terasy tak nemusíte nikam lítat. Vstup do suterénu se nachází v dalších dveřích za sloupem v obývacím pokoji. Nejprve se ale přesuneme nahoru.
Hlavní plochu tvoří prostor s otevřenou galerií ke schodišti. Dům má k dispozici také půdu, vstup je přes poklop ve stropě. Naproti schodišti se nachází koupelna s posuvnými dveřmi, vpravo za rohem pak menší pokoj.
Otevřený prostor hlavní horní ložnice nabízí 20 m2 a dvě velká okna na jih. Oddělení od schodiště je samozřejmě možné jednoduchou příčkou.
Menší pokoj má zhruba 9 m2 a je v něm umístěná velká vestavěná skříň. Okno je do zahrady.
Zrekonstruovaná koupelna s WC je vybavena sprchovým koutem.
Na první pohled se to možná nezdá, ale půda je skutečně dost velká. Střecha není zateplená, protože je zateplený strop. Pokud byste však uvažovali o dalším pokoji, místa je tu na něj pořád celkem dost. Nyní půda sloužila jako plně pochozí úložný prostor.
Poslední částí domu je pak suterén, který je propojený se zahradou. Celou čelní plochu místnosti pak tvoří dvě velká francouzská okna.
Velikost největší spodní místnosti je 17 m2. Tato část domu se přistavovala v roce 2011.
Vytápění zajišťují podlahové konvektory před okny. Suterén je řešen ve dvou úrovních - tato místnost je o 3 schody níže, nežli zbytek podlaží.
Další obytnou část tvoří zhruba 11 metrový prostor nahoře. Tuto místnost do celkového součtu dispozice nezahrnujeme, neboť je se spodní propojená a nemá vlastní okno. Celá tato spodní část domu může perfektně fungovat právě pro zmíněné pracovní zázemí, salon a podobně. Případně tu lze pochopitelně vytvořit třeba ložnici.
Abyste na WC nemuseli ze zahrady lítat nahoru, ve sklepě je pod schodištěm umístěná menší toaleta. Poslední místností je pak technické zázemí s kotlem. Omítka je v této části sklepa záměrně otlučená, neboť pro zamezení vznikající vlhkosti bude nutná lepší izolace (již však jednou byla provedena). Nejedná se o nic šíleného, pouze jsme chtěli ulehčit bádání stavařům.
Zadní část pozemku o ploše necelých 150 m2 je porostlá zelení i vzrostlým stromem. Na šířku má 6 metrů a na délku 24, takže pokud toužíte po bazénu, není problém ho sem umístit.
Jedním z největších benefitů této lokality je mimo dopravní dostupnosti blízkosti největšího pražského lesa. Krčský les (nebo také Kunratický) je od domu vzdálen 500 metrů.
Pod Jalovým dvorem 777/35, 142 00 Praha 4 - Krč
Metro Kačerov - do 10 min. vč. cesty na BUS
Zastávka BUS | IKEM | 350 m
(linka 138, 193, 203, 332, 335, 337, 362 a 2 noční)
ZŠ U Krčského lesa - 300 m
MŠ Tajovského - 700 m
Lidl - 700 m
Krčský les - 500 m
Dětské hřiště - na konci ulice
Půdorys 1. NP
Půdorys 2. NP
Půdorys - suterén
Původní dispozice ze 40. let
Návrh architektonické studie - změna dispozice
Výpis z katastru
Mapa katastru




































































