Velký tak akorát, ve skvělém stavu a na krásném místě. A REZERVOVANÝ.
Jak by asi tak vypadal ideál rodinného bydlení v domě, který vás nebude likvidovat nákladnou údržbou a provozem? Kdybych si měl ze své nabídky na nějaký dům vsadit, pak je to tento. Dřevostavba z roku 2014, která překvapí hromadou úložného prostoru, mimořádně nízkými provozními náklady a ještě vás zaskočí svým stavem. Ale mile, protože na desetiletý dům je v takové kondici, že kdybychom vám tvrdili věk o dvě třetiny menší, podle stavu byste to rozhodně nepoznali. Takhle to vypadá, když stavíte dům, ve kterém máte v plánu strávit zbytek života, dobře si to uvědomujete a podle toho se k němu chováte. Už při vzniku stavby se kladl důraz na kvalitní materiály a trvanlivost. Glazovaná taška, okna ve trojskle a nebo použití lepších řešení namísto těch klasických znamená, že tu nejsou žádné OSB desky a sádroše. Použila se kvalitnější a trvanlivější řešení. Třešničkou na dortu je pak nově instalovaná FVE (2024), která dům posunula do říše staveb, jejichž roční spotřeba se pohybuje maximálně v řádu jednotek MWh ročně. S virtuální baterií v dobré sezóně pak dokonce zcela bez nakoupené energie. Dělá mi velkou radost, že vám tento dům mohu představit zrovna já.
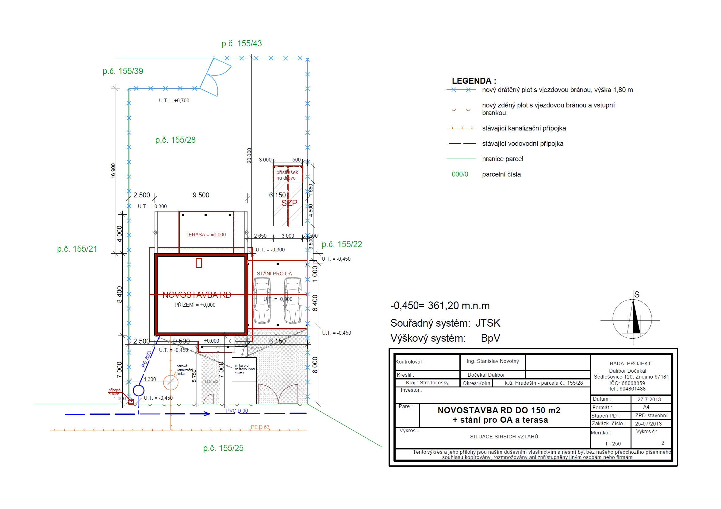
2 podlaží, 2 velké půdy, 2 krytá stání na auto a 2 místnosti v zahradním domku. Taky 2 koupelny a 2 šatny. Co je naopak jedinečné je umístění. Mimo klasický satelit, mimo velkou zástavbu. Uzavřená lokalita, kterou nyní tvoří 11 domů, je ze 3 stran obklopena stromy. A doslova za rohem pak začíná Hradešínský les, přes který lze dojít až do Říčan nebo dokonce Voděradských bučin - kdo nevěří, nechť na konci webu žhaví mapu se satelitním snímkem. V domě vás čeká celkem 120 m2 plochy a mimo zmíněného ještě pár dalších bonusů. Například velká zastřešená terasa za domem, ze které budete mít dobrý výhled na vaše ratolesti, které budou zrovna v bazénu svádět vodní bitvu. Přitápět si můžete také krbem, ale ten bude spíš pro příjemnou romantickou atmosféru. S fotovoltaikou a elektrickým podlahovým topením totiž nemusíte šetřit štípáním dřeva, systém vytápění to udělá za vás. Na konci webu pak naleznete i energetickou bilanci od začátku roku až do teď. Pokud do teď bydlíte v bytě, připravte se na několik tisíc měsíčně do vaší kapsy. Za provoz tohoto domu totiž dáte méně, než jste aktuálně platili za vytápění vašeho 3+kk.
Hradešín je menší obec čítající zhruba 600 obyvatel, která se zalíbí především těm, kdo nefandí obřím satelitům uprostřed placatých nezalesněných placek. S nadmořskou výškou skoro 400 metrů vás tu a tam překvapí nečekaný výhled do okolí, na který můžete narazit při náhodných procházkách okolními lesy. Ty začínají jen pár kroků od vašich budoucích vrátek. Není divu, že jsem drtivou většinu všech domů a pozemků v okolí prodal těm, kdo utekli z Prahy za klidem. Přitom v ní ale v pohodě mohli zůstat pracovat, odříznutí od světa tady rozhodně nezůstanete. A pokud jste už došli do fáze, kdy je vám příjemnější ranní káva a noviny ve vlaku, než nadávání v kolonách, vybrat si můžete z Říčan nebo Úval, ze kterých se do centra hlavního města dostanete do půl hodiny.
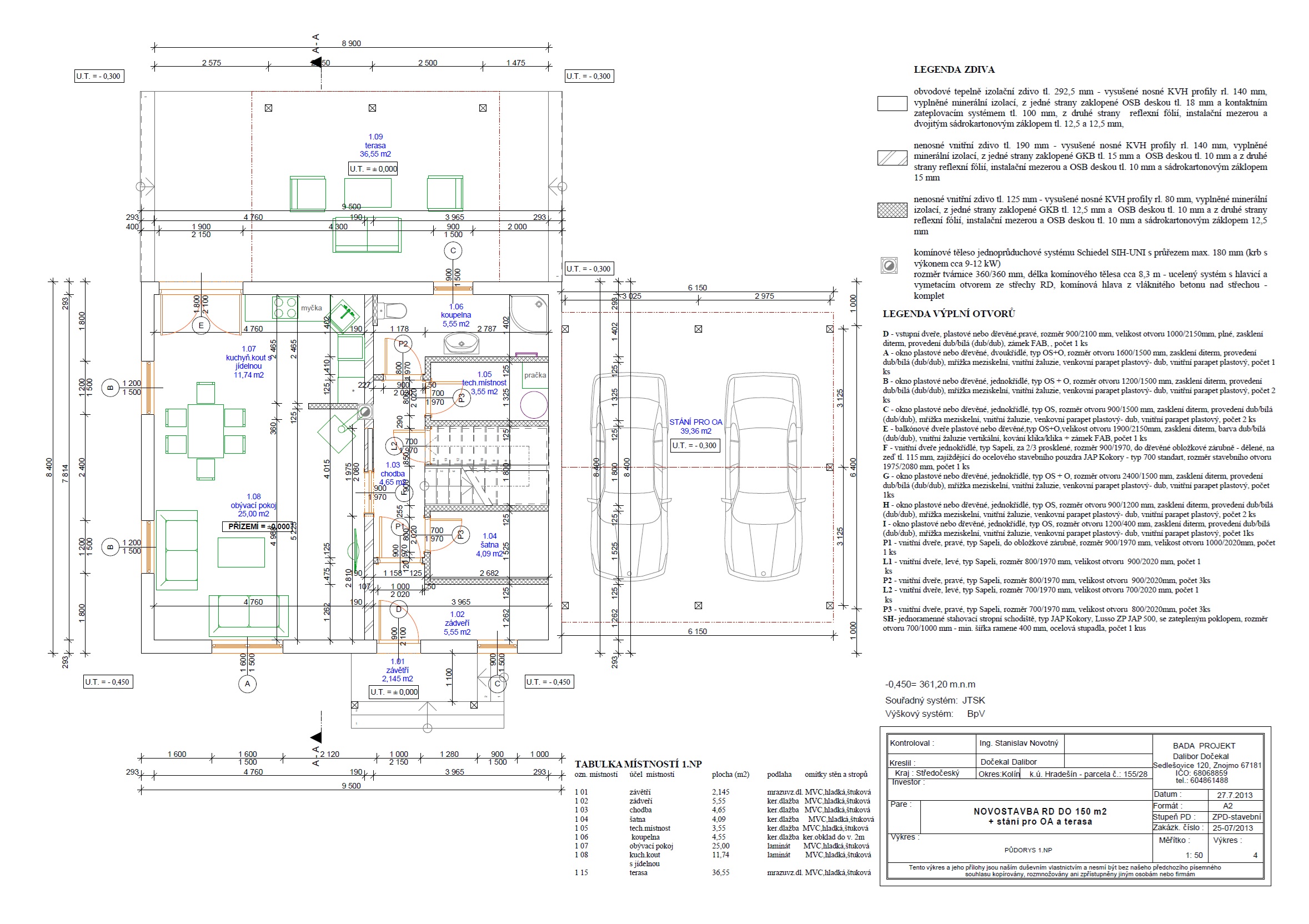
Dispozice 4+kk | 2 podlaží
Dům celkem 123 m2 | Půda 50 m2
Parking pro 2 auta pod přístřeškem
Bez nutných investic | Důsledně udržováno
Kolaudace 12/2014 | Dřevostavba
Pozemek 634 m2 | Zahradní domek
FVE 7 kWp | 14 panelů | Baterie 11,6 kWh
PENB C | Skutečná spotřeba MAX 2 MWh/rok
Decentrální rekuperace | 4 kW kamna
Elektrické podlahové topení
10 m3 nádrž na vodu s čerpadlem
Nabíječka na elektroauto
13.490.000 Kč
Virtuální prohlídka domu
Abyste nemuseli studovat plánky a lovit ve fotkách, máme pro vás připravený model domu. Ten si můžete projít na displeji i s nasazenými VR brýlemi.
Z jedné strany pole, kde nehrozí stavba, se zbylých stran pak obklopen lesy. Nejhezčí část obce Hradešín, který překvapí svou nadmořskou výškou skoro 400 m. Sem tam tak na člověka vykoukne nečekaný výhled.
Dům je sice kompaktní, ale rozhodně ne malý. Mimo domu samotného k němu přiléhá ještě rozměrný přístřešek pro dvě auta, který má k dispozici velkou půdu. Zpoza střechy, na které je nově instalovaná FVE o výkonu 7 kWp, vykukuje ještě zahradní domek (25 m2). Kdo se obává nedostatku místa pro skladování, tak tady skutečně naprosto zbytečně.
Velká zpevněná plocha nabízí spoustu místa pro vaší techniku. Na přední části pozemku se nachází také 10 m3 nádrž na dešťovku (s čerpadlem). S instalací FVE, která proběhla v létě 2024, přibyla pod přístřeškem také nabíječka na elektroauto. Všimnou si můžete také sklápěcích schůdků na půdu.
Díky bateriím, které mají kapacitu 11,6 kWh, můžete získanou energii využívat k provozu elektromobilu. A to dokonce v zimě, neboť dům pracuje rovněž s virtuální baterií (neplatíte spotřebu, pouze distribuci). Hromadu věcí, které nepotřebujte mít každý den na očích, schováte na půdu nad přístřeškem. Ta má plochu cca 40 m2.
A když už jsme v ráži s tím úložným prostorem, máme tu další bonus v podobě samostatného (a zapsaného) zahradního domku, který má dvě části. Teď už ale hurá dovnitř přes velké dveře na krytou terasu!
Vstupujeme do části jídelny a kuchyně. Ta je opravdu nadčasová, protože 11 let byste jí asi netipovali. Je dostatečně velká a s pracovní plochou do tvaru U - tato část hlavní obytné místnosti má 12 m2.
Souhrnná plocha obýváku je 37 m2. V domě je elektrické podlahové topení a přitápět si můžete také krbovými kamny, které mají výkon 4 kW. V této místnosti je rovněž instalována rekuperace.
O dostatek světla se v obýváku starají dvě velká okna, která jsou ve trojskle. Tehdy poměrně slušný technologický výstřelek, který jasně svědčí o tom, že to se stavbou tohoto domu bylo myšleno vážně.
Obývák je od chodby oddělený velkými posuvnými dveřmi. Hnedka u vstupu vás čeká zádveří pro botníky a podobně. V domě jsou však ještě dvě samostatné šatny.
Kolem schodiště jsou pak troje dveře. Vpravo vedle schodiště šatna, vlevo pak komora pod schodištěm (FVE, rack + botník) a úplně vlevo technická místnost. Na konci chodby je pak koupelna s WC a sprchovým koutem.
Ve spodní koupelně nechybí velké okno směrem na zahradu. Samozřejmě s mléčným sklem, pro vyvětrání a denní světlo však nepostradatelné.
Z horní chodby je přístup na půdu domu, která má zhruba 50 m2 a místa je na ní skutečně hromada. Je to druhá půda - ta první byla nad stáním.
Rovněž ve druhé koupelně je okno. A taky spousta místa (10,6 m2), které umožnilo osazení velké rohové vany.
Ložnice s vlastní šatnou. Čistá plocha pokoje 14,3 m2 a k tomu šatna o 4 m2, která je umístěná u dveří do pokoje.
Další ložnice má 15 m2 a fungovala jako dětský pokoj. Když vedle nezapočítáme šatnu, je plochou největší.
Poslední je pak pokoj, který se aktuálně využívá jako pracovna. Má velikost 14,4 m2. Rozdíly mezi velikostmi místností jsou tak minimální.
Krytá terasa s plochou přes 30 m2 je orientovaná do zahrady, tedy severozápadním směrem.
Pozemek má plochu celkem 634 m2, přičemž plocha za domem je zhruba 360 m2. Dost místa na bazén i zahradní domek o zastavěné ploše 25 m2. Dokonce i na něm je glazovaná střešní taška. Kdo by náhodou neznal její výhody, stačí se podívat na stav střechy sousedních domů. U lesa naprostá nutnost, nechytá se na ní totiž mech a další nálet.
Na pozemek je také zadní vjezd přes vrátka v rohu. To ulehčí manipulaci s většími předměty, bazény a podobně.
Kolem domu jsou kompletně hotové zpevněné plochy, vše je funkční, dokončené a v pořádku. Investovat sem skutečně nemusíte ani korunu.
Příjezd do lokality je nyní řešen zpevněnou štěrkovou cestou, která bude upravena na asfaltovou po dokončení stavby jednoho ze sousedních domů. Napojení na sítě je však kompletní - elektřina, voda, kanalizace.
Hradešín 196, 282 01 Hradešín
Vzdálenosti od domu:
Říčany | 13 km
Úvaly | 6 km
Český Brod | 11 km
Praha - Černý Most | 20 km
Potraviny | 900 m
Fotbalové hřiště | 1.000 m
BUS | 700 m
(linka 435 a 823 | Říčany - Úvaly)
Umístění na pozemku
Půdorys 1. NP
Půdorys 2. NP
Bilance spotřeby a výroby elektřiny
PENB





































































