Startovní bydlení nebo investiční byt? - Ondřej Černovický - certifikovaný realitní makléř

Startovní bydlení nebo investiční byt?

Okamžitě připraven, bez investic. A k tomu se vším, co můžete od malého bytu chtít.

Investiční nebo startovní byt nemusí nutně znamenat povinnost nebo nudu. Ač to nebývá zvykem, může vám i dělat radost. U tohoto bytu totiž nechybí terasa, sklep i garážové stání. A to se u těch nejmenších bytů příliš často nevidí. Je navíc ve skvělém stavu a nevyžaduje absolutně žádné investice. Ať už tady budete bydlet a nebo vám poslouží jako uložení volných peněz, tahle akce pro vás bude prakticky bez starostí. Tak se na to pojďme kouknout, třeba naskočíte do dobře rozjetého vlaku.

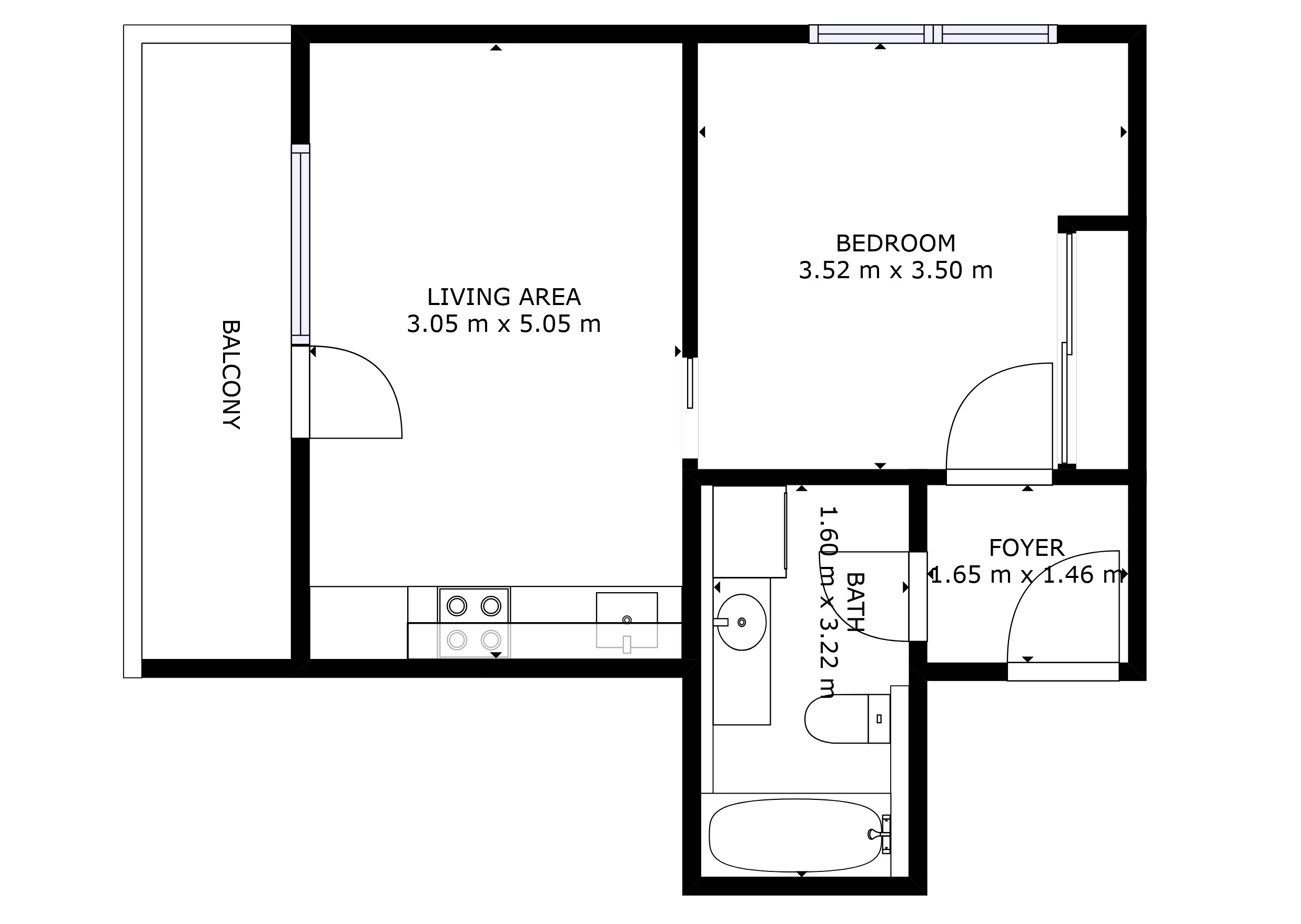
Žádný metr nepřišel nazmar. 38 m2 uvnitř bytu a k tomu příjemná terasa o velikosti 7 m2. Nedostatek úložných prostor bývá častou bolestí malých bytů, nicméně tady nechybí ani více než dvoumetrový sklep. A problém s parkováním? Rozhodně ne tady.  Tady na vás totiž čeká i garážové stání přímo pod domem. Byt byl původně řešen jako jednopokojový, nicméně umístěním příčky vzniklo plnohodnotné 2+kk s průchozí dispozicí, které v cenové hladině do 5 milionů budete s uvedeným příslušenstvím hledat jen velmi složitě.

Na téhle terase se už brzy budete moct vychutnat kávu u západu slunce. A nebo váš nájemce, pokud jste zaměření směrem k investici. Jistě potěší i fakt, že byt uchovává značnou míru soukromí. Je totiž úplně nahoře a ještě k tomu rohový. Takže žádné dupání nad hlavou od zběsilých sousedovic dětí. 5 minut jízdy od metra Zličín v komplexu bytových domů z roku 2019 na vás dost možná čeká váš první byt a nebo skvělý způsob, jak ochránit své úspory před znehodnocením. Tak se na to pojďme podívat.

Dispozice 2+kk (původně 1+kk)
Plocha 38 m2 + 7 m2 terasa + 2 m2 sklep
Páté podlaží domu, rohový byt

Orientace severozápad
Garážové stání pod domem
Bez nutných investic
K dispozici okamžitě

Metro Zličín 5 minut
Poplatky 2.470 Kč
(skutečný náklad 2021; garáž 655 Kč)

3D interaktivní prohlídka bytu

Abyste nemuseli studovat plánky a lovit ve fotkách, máme pro vás připravený model bytu. Ten si můžete projít na displayi i s nasazenými VR brýlemi.

A začneme třeba právě u kuchyně. Ta bývá často jedním z nejslabších článků nemovitostí, které jsou zaměřeny na dostupnou cenu. Linka v černé matné barvě po celé délce stěny bytu ale prozrazuje, že tady záleželo taky na tom, aby i malý byt skvěle vypadal.

Obývací pokoj s kuchyní se pyšní skutečně velkým oknem na terasu - severozápadní stěnu tvoří ze 3/4 prosklená plocha. Velikost místnosti je lehce přes 15 m2. Bez problémů se sem vejde vše potřebné vč. rohového gauče.

A právě zmíněná sedmimetrová terasa je to, co tvoří koření tohoto bytu. My jsme měli při focení na počasí docela smůlu, ale věřte, že káva po náročném dni bývá doprovázena sluncem. To zapadá za protější dům.

Ačkoliv se v tanci v obýváku příliš nerozletíte, jistě oceníte jednu naprosto zásadní výhodu proti koncepci 1+kk. V bytě jsou dvě samostatné zóny, které znamenají přinejmenším to, že nebudete v ložnici cítit spálený oběd ještě večer 🙂 Oddělení místností je pro úsporu místa řešeno posuvnými dveřmi do pouzdra.

Insert Image

Ani v ložnici nechybí velké okno, tentokrát na výhodní stranu. To znamená, že se v létě nebudete v bytě pařit. Odpolední slunce totiž do ložnice nepere. Místnost má velikost lehce přes 12 m2 a s přehledem pojme i velkou vestavěnou skříň.

Mimo velké postele a skříně zůstal prostor i pro pracovní kout, ohrožený tedy nebude ani váš home office. Ten budete ale trávit stejně spíš na terase.

Vstupní chodba o velikosti 2.4 m2 nabízí prostor pro botník či menší vestavěnou skříň. Anebo pokud máte drahé kolo, které nechcete nechat ve sklepě, můžete ho zavěsit u dveří do ložnice.

Chloubou tohoto bytu je mimo jiné i velmi prostorná koupelna s vanou. U nejmenších bytů se rozhodně nejedná o samozřejmost.

5.5 m2, kam se s přehledem vejde vana, toaleta, pračka se sušičkou a spousta skříněk. Takhle velkou koupelnu mohou často závidět i byty 3+kk.

Skvělým bonusem je vlastní garážové stání přímo pod domem. Nachází se ve druhém podzemním podlaží, kam zajíždí autovýtah.

Dvoumetrový sklep se nachází přímo za stáním, takže žádné tahání vybavení přes půl domu. Vyhrazené parkování také jistě oceníte, ostatně stačí se podívat, jaký boj sousedé svádí o stání na ulici. Případná návštěva však místo najde - bokem se nedávno zbudovalo velké parkoviště, které je zhruba 2 minuty chůze.

Pětipodlažní cihlový bytový dům se nachází jako poslední v řadě. Ačkoliv by mohla tato nově vzniklá lokalita působit nedostupně, opak je pravdou. 

Na metro Zličín dorazíte autem za 5 minut a přímým spojem, který má zastávku 200 metrů od domu, dorazíte na metro za 7 minut. Při špatném provozu za 15.

3 minuty autem od domu se nachází BILLA, ke škole děti dorazí po 5 minutách jízdy busem, který staví na zastávce u domu.

Dostupný byt nemusí nudně znamenat nudný. Od hezkého provedení až po zajímavé příslušenství, tady lze získat dost muziky za stále ještě rozumné peníze.

Insert Image

Vzdálenosti od domu:

Stanice BUS Žitná - 200 m
(linka 347 a 358)

Metro Zličín: 5 km / 5 min autem nebo 7 min busem 347
Vlak Chýně - 2.5 km / 7 min busem 347

ZŠ Chýně - 2.4 km / 5 min busem 347
Mini market - 100 m;
BILLA - 2.7 km / 3 min autem
Potraviny - 1.6 km / 2 min autem

Půdorys bytu

Vyúčtování poplatků za byt - 2021

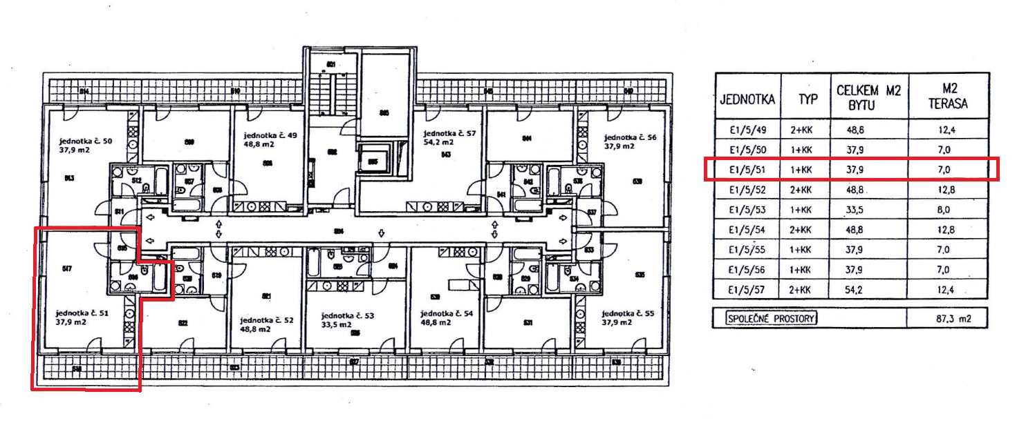
Výpis z katastru - předmět prodeje

4.990.000 Kč

Zajímají vás další informace? Zavolejte nebo napište, rád vám je doplním. A nebo úplně nejlépe, přijeďte se podívat. Možná se vám ale už nebude chtít pryč.

Insert Image

rfwbs-slide

Reference

Co o mně říkají klienti?

Copyright © 2018. Všechna práva vyhrazena.

Vytvořil Tomáš Hlad.