Do 15 minut od Berouna s možností vícegeneračního bydlení nebo až 6 bytů.
Pokud vás neláká bydlet v bungalovu nebo řadovce o 100 m2 za 8 milionů, pak by pro vás mohl být zajímavý tento dům nedaleko Berouna. Ve dvou podlažích nabízí celkem 267 m2. Žádný prcek bez možností, ale nepřeberné množství variant, jak ho koncipovat. Tento dům je skutečně obří. A velké jsou i jeho možnosti.
Vytvořit v něm totiž můžete až 6 bytů. A nebo ho využít jako vícegenerační rodinné sídlo. Pokud vám ale nevoní stavby k rekonstrukci, web rovnou zavřete. Stavba je bytelná, poctivá a bez viditelných zásadních vad. Že je ke kompletní rekonstrukci je bez diskuze, ale právě v tom spočívá silná stránka domu. Vše si můžete udělat podle sebe přesně tak, jak potřebujete. A to klidně postupně.
Dům nadchne i milovníky historie. Vybudován byl koncem dvacátých let obchodníkem s dřívím, panem Antonínem Marxem. Ten se svými syny založil tehdy významnou pilu a provoz zahájil v roce 1929. Pila je dnes už dávno zrušená. Více se dočtete v místním zpravodaji.
Zajímavá je i poloha domu, která je vcelku strategická. Pouze 10 km od centra Berouna a Unhošti. A zhruba 25 minut od Zličína. Pokud máte plné zuby města a přesto ho furt potřebujete mít po ruce, jste tu správně. A to v krásném prostředí berounské přírody, která je tu doslova nadosah.
8+2 v aktuální konfiguraci
Plocha 279 m2 (bez balkonů, sklepu a půdy)
Pozemek: 493 m2
(cca 200 m2 zastavěno domem)
Výstavba 1929
Možnost vytvoření až 6 bytů
Sklep 24 m2
Nevyužité půdní prostory
10 km od centra Berouna
10 km do centra Unhošti
Menší hospodářské budovy na pozemku
Ke kompletní rekonstrukci, vyklizeno
Studna, vodovod a plynovod k napojení. Kanalizace napojena.
Uvedené plochy odpovídají doloženému plánu a katastrální mapě.
3D interaktivní prohlídka domu
Abyste nemuseli studovat plánky a lovit ve fotkách, máme pro vás připravený model domu. Ten si můžete projít na displayi i s nasazenými VR brýlemi.
Obec Chyňava jako na dlani. 10 km od Berouna, 10 km od Unhošti a 25 minut od Zličína.
Tento obrovský dům stojí v obci Chyňava už téměř 100 let a jak si můžete všimnout ze staré fotky, příliš se za za poslední dobu nezměnil. Nyní je dům připraven na kompletní rekonstrukci a další etapu své existence.
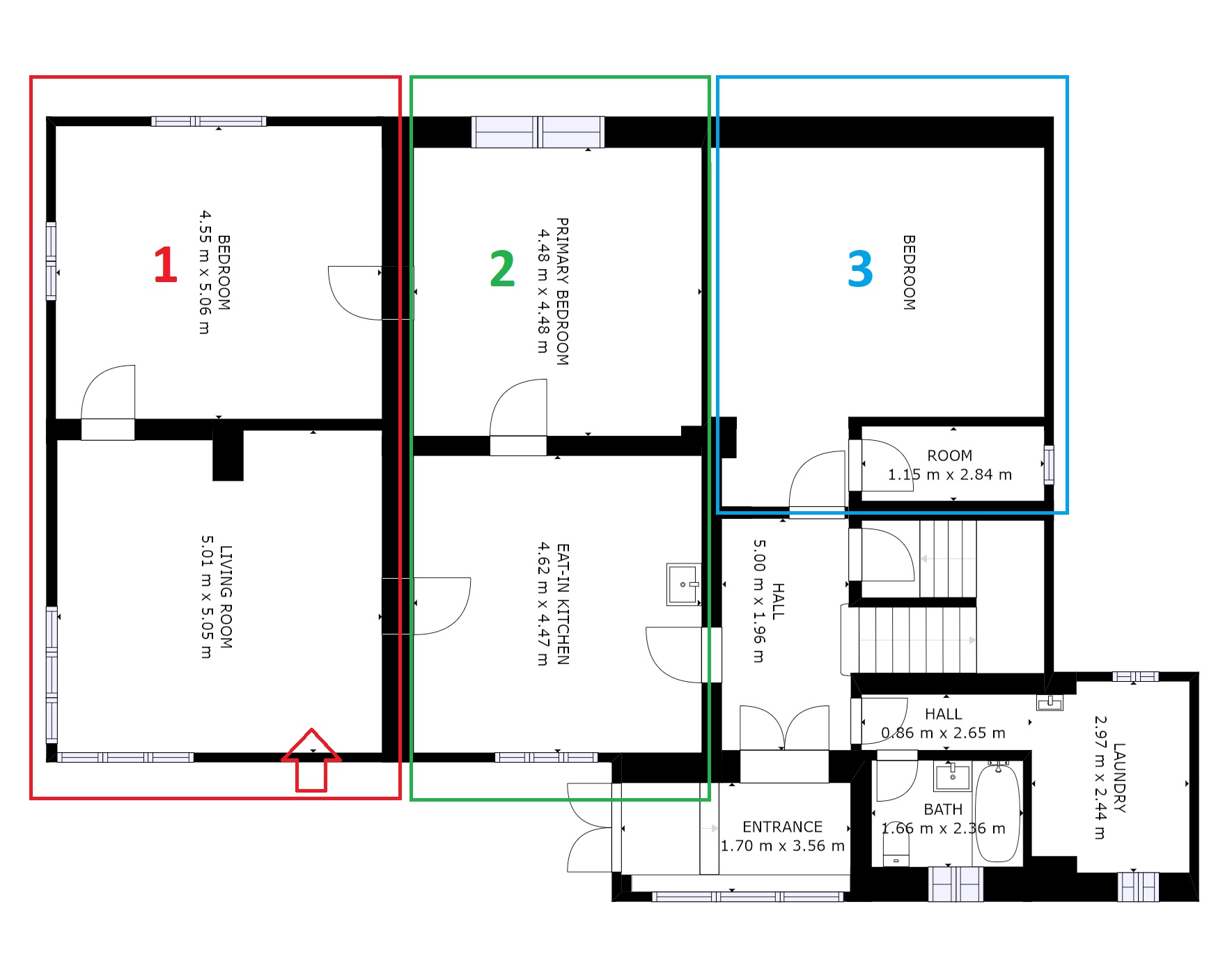
Dům může sloužit jako vícegenerační bydlení a zrovna tak v něm lze vytvořit až 6 bytových jednotek. Každé okno by pak patřilo jedné s tím, že lze vytvořit sestavu 3x1+kk a 3x2+kk.
Ze zadní části domu původně býval vchod, který lze opět obnovit. Jeden z bytů by tak mohl mít zcela samostatný přístup. Dům se původně nacházel u dnes už zrušené pily, která byla tehdy pro obec velmi významná.
Z historie domu se dochoval větší počet fotek vč. dokumentů z kraje 30. let, tedy od prvního majitele domu, který ho nechal vybudovat.
Fasáda domu je vcelku zachovalá, zrovna tak i dřevěná okna. Dům je pochopitelně ke kompletní rekonstrukci, rozhodně ale není v havarijním stavu. Tak, jak ho vidíte, fungoval do dnes.
Ať už vám bude interiér nostalgicky připomínat domy našich babiček nebo byste všechno vymlátili a rekonstruovali, jedno bude tuto stavbu spojovat.
A tím je prostor. Nedostatkem prostoru totiž dům skutečně netrpí. V prvním podlaží se nachází 4 velké průchozí místnosti ve velikostech od 20 do 25 m2. Tato fungovala jako kuchyně a ostatní 3 pokoje jsou přes ni průchozí.
Největší pokoj o ploše 25 m2 s proskleným rohem měl původně vlastní vstup. Čte se v něm dobře, 50 let starému vydání časopisů Květy jsem nemohl odolat. Podlaha je původní prkenná, rozvod topení je zde nový (v mědi, vedený venkem).
Druhý pokoj s oknem směrem do ulice má 23 m2 a může tvořit druhou místnost prvního bytu 2+kk.
V posledním pokoji jsou původní parkety a jeho velikost je 20 m2. Uzavírá "kolečko" 4 spodních pokojů, které jsou všechny propojené. Výška stropů prvního podlaží je necelé 3 metry.
Na tomto plánu naleznete schéma možného rozložení jednotek. Jednotka 1 se samostatným vstupem, jednotky 2 a 3 ze společné chodby. Využití pro pravou část (koupelna) je otevřené. Mohou to být například úložné prostory ke každému bytu. Část vyznačenou modře (3) na fotkách a skenu nenajdete, aktuálně je využitá jako sklad.
Chodba, která je umístěná za vstupním zádveří, má velikost 9 m2 a je z nich přístupná zmíněná čtveřice pokojů, komora (část, kterou lze připojit k bytu č. 3), vstup do sklepa a taktéž do koupeny v přístavku.
Přístavek má plochu 14 m2 (bez příčky) a jeho využití závisí nad samotným využitím domu. Pro byty třeba jako komory, pro bydlení v domě může skvěle posloužit třeba pro fitness nebo saunu, jelikož nebude rušit žádný z pokojů. Dveře naproti na druhé fotce jsou do pátého pokoje, který nemáme na fotkách - funguje nyní jako sklad. Je směrem do ulice a jeho plocha je 23 m2.
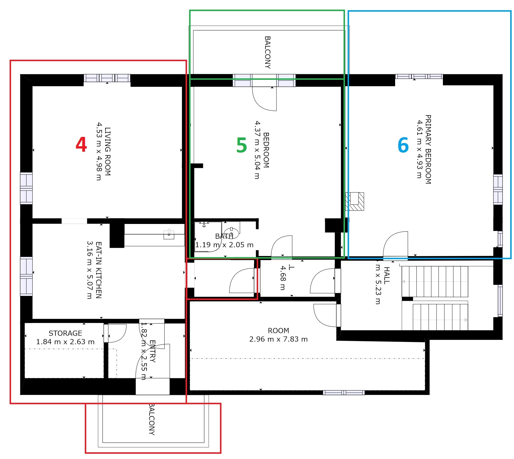
Přes původní schodiště vyběhneme do druhé podlaží, jehož koncepce je velmi obdobná. První pokoj, který se nachází hned u schodiště, má velikost 23 m. Žádný z pokojů v domě není koncipován jako nudle, ale jako pravidelný prostor o rozměrech kolem 4.5 x 5 metrů.
Druhý pokoj, který je hned vedle, má plochu 21 m2 a k dispozici balkon 4.5 m2. Každý z uvedených pokojů může fungovat jako samostatné 1+kk (na koupelnu je místo nad rámec plochy pokojů, dole naleznete plánek)
Poslední částí horního podlaží je pak největší uvažovaný byt 2+kk. A může celé podlaží sloužit jako jeden velký, více než 120 metrový byt.
Možné rozdělení jednotek naleznete na tomto plánku. Případně podlaží využijete jako prostorný byt 3+1 s půdou.
Druhý balkon, který je tentokrát orientován do zahrady, má velikost 4 m2. Přístupný je přes malou chodbu, ze které je vstup i do komory pod střechou.
Pokojů je nahoře celkem 5 a tento je o velikosti 23 m2 (stejnou výměru má pak i další pokoj). 4.5 x 5 metru, výška stropu 2.5 m a dvojice velkých oken.
Z chodby druhého podlaží (jde i místo pro koupelnu) je přístupné podkroví domu, které je využitelné jedině pro úložný prostor - výška je nízká. Pro kontrolu stavu střechy přístup jistě oceníte.
Některé původní prvky na domě možná ještě oceníte. Třeba původní masivní dveře, které jsou rozhodně hezčí, než jejich plastové deriváty a nebo dřevěné schodiště.
Dům je částečně podsklepený, plocha sklepa činí 24 m2 a může sloužit jako technické zázemí domu. Kdysi tu býval kotel na tuhá paliva a nachází se tu vodárna.
Se zázemím, ať už pro cokoliv, vám mohou posloužit tyto menší hospodářské budovy. Pokud se je nerozhodnete odstranit pro zvětšení pozemku, najdete v nich spoustu úložných prostor, místo na dílnu nebo cokoliv dalšího.
Plocha, kterou tyto stavby zabírají, je dohromady zhruba 50 m2 (49 m2 dle měření pozemku v KN).
Pozemek není nijak obří, ale pokud se řadíte k těm, kteří nechtějí celé léto lítat za sekačkou (k těm patřím i já), splní svou funkci perfektně. U jeho údržby nezestárnete a přesto nabídne prostor pro vyblbnutí dětem. I když...
Vypadá to tady, jako že se děti nemají kde vyblbnout? Chyňava má své kouzlo v tom, že je kousek od větších měst, přesto je to pořád vesnice. Obklopená poli, lesy, loukami a ještě k tomu kousek od Berounky.
Jako neudržovaný zapadákov to tady ale nevypadá. Najdete tady vlastní školu i školku, poštu, hospodu i COOP.
A když přeci jenom, za zhruba 15 minut dorazíte na náměstí do Berouna, kde seženete všechno ostatní.
Po cestě se pak můžete kochat krásnou okolní krajinou, která je na Berounsku všudypřítomná.
Jaký příběh tomuto téměř 100 letému domu napíšete už je na vás. Možností je tu nespočet. Začne tady váš životní projekt?
Okolí domu:
Stanice BUS:
300 m - linka 630
(Beroun - Kladno)
13 minut autem na náměstí do Berouna
13 minut autem na autobusák Unhošť
Potraviny COOP - 450 m
ZŠ + MŠ - 600 m
WEB OBCE CHYŇAVA
Stručné info o obci:
cca 1.800 obyvatel
cca 270 dětí
Rozloha 37 m2
Předmět prodeje - LV
Předmět prodeje - mapa katastru
Půdorys domu - první podlaží
Půdorys domu - druhé podlaží
6.250.000 Kč
Zajímají vás další informace? Zavolejte nebo napište, rád vám je doplním. A nebo úplně nejlépe, přijeďte se podívat. Možná se vám ale už nebude chtít pryč.


















































































