Původní 2+1 na kraji Letné - Ondřej Černovický - certifikovaný realitní makléř

Původní 2+1 na kraji Letné

Insert Image

Byt k rekonstrukci ve skvěle udržovaném domě

Byt v původním stavu a k rekonstrukci, kde si všechno uděláte hezky podle sebe. Čas a peníze investované do přebudování tak uplatníte přesně tak jak si přejete. Nebudete platit za nevyhovující kuchyni nebo koupelnu. V bytě se bydlelo přesně tak jak ho vidíte na fotkách, ale ruku na srdce - od podlahy až po strop je na předělání. Vyměnit kachličky nebo podlahy zvládnete levou zadní, ale některé věci nepředěláte. Mimo umístění taky třeba samotný dům. Mít krásný byt v zašlém domě je situace, které se pravděpodobně už snažíte vyhnout. A tady v Bubenské naštěstí nic takového nehrozí. Dům je skvěle udržovaný, čistý a nese v sobě několik připomínek krásných dob, ve kterých vznikl. Například nádherné domovní schodiště odstřelí každého, kdo má pro podobné prvky slabost. Mezi takové snad patříte i vy, jinak si přece můžete koupit byt v paneláku.

Insert Video

2+1 a necelých 70 m2, ke kterým patří ještě velký sklep. Sklepům byla věnována velká pozornost a zhruba před 3 lety byly kompletně upravené. Vysušené, s novými kójemi a také vzduchotechnikou, která zajišťuje výměnu vzduchu a minimalizaci vlhkosti. V domě výtah zatím nečekejte (je však v řešení), nicméně po takhle krásných schodech se chodí s radostí. Mimo výšlapu totiž pokaždé zažijete výstavu krásného. Kamenné nášlapy, původní opravené zábradlí  s dřevěnou rukojetí a než se nadějete, budete ve druhém patře, ve kterém čeká váš brzy nový byt. Od chodby ho odděluje ještě malá společná chodbička, která patří k vám a k sousednímu bytu. Pak už jen otevřít dveře a jste doma. Byt je řešen postaru, takže první místností je kuchyně a hned za ní je koupelna. Celkem 3 prostorné místnosti a okna na obě stranu doprovází ještě tradičně vysoký strop. A staromilce potěší, že jsou všude původní parkety. Za to například okna, ta jsou v domě již všude nová. Stejně jako fasáda.

Specialitkou je pak také to, že auto nemusíte parkovat na ulici. Hned za domem je totiž pár stání, která jsou určená vlastníkům bytů v domě, a kteří je tak mohou využívat. Příjem do SVJ není zajištěn pouze ze strany vlastníků, ale také nájemců. V zadní části dvora je totiž několik garáží, které dům vlastní a pronajímá. I to je důvodem poměrně nízkých poplatků v rámci domu, které budou zajímat především investory. Čím menší částku vám z celkové platby dům ukrajuje, tím víc zůstane ve vaší kapse za nájemné. V tomto domě je zkrátka všechno v nejlepším pořádku a poslední novinkou je pak to, že se řeší boční zateplení stěny do proluky a také výstavba výtahu. To může být hudba vzdálené budoucnosti, ale i tak je pozitivní zpráva, že záměr a ochota budovat je v tomto domě běžný standard. Zdaleka to neplatí všude.

Dispozice 2+1 | Kuchyně u vstupu
Plocha 69 m2 dle PV | 73 m2 dle laseru
Velký sklep | 3 m vysoké stropy

Kompletně opravený dům | Nyní bez výtahu
Třetí podlaží cihlového domu = druhé patro
Byt ke kompletní rekonstrukci

Vytápění WAW | Poplatky SVJ 857 Kč
K dispozici okamžitě - byt je volný
Stromovka 700 m | Vltavská 450 m

9.990.000 Kč

Virtuální prohlídka bytu

Abyste nemuseli studovat plánky a lovit ve fotkách, máme pro vás připravený model bytu. Ten si můžete projít na displayi i s nasazenými VR brýlemi.

Na první pohled perfektně udržovaný dům, do kterého se pravidelně investuje. Svědčí o tom stav zvenčí i zevnitř. Zejména podoba schodiště, které je zcela originální, pohladí po duši každého milovníka původních prvků tradičních domů.

S domem naštěstí bojovat nebudete, v bytě už to ale na pár týdnů práce bude. Je v původním stavu a ke kompletní rekonstrukci, což na druhou stranu znamená, že si všechno uděláte pěkně podle sebe.

Dispozice bytu je řešena postaru, tedy s kuchyní ve vstupním prostoru bytu a hned za rohem je koupelna. Ta se už částečně rekonstruovala (2021), nicméně je celá na předělání. Ohřev vody je zajištěn karmou a vytápění pak WAW.

Skvělou vlastností je, že v celém bytě je dostatek světla díky velkým oknům. Dokonce i v koupelně (resp. na odděleném WC) okno nechybí. Plocha kuchyňské místnosti je 15 m2.

Sousední pokoj je spojkou mezi oběma místnostmi. Zeď mezi kuchyní odstraníte, ale ta další už je nosná. Plocha je necelých 23 m2.

Kdo má rád dřevěné parkety, ten tady bude nadšený. Jsou v obou hlavních místnostech bytu. Okna obou dosud zmíněných místností jsou do vnitrobloku.

Poslední místnost je skoro stejně velká (rozdíl je asi 0,2 m2), nicméně toto okno je orientované směrem do ulice Bubenská.

Insert Image

Jak je patrné z fotky, dveře můžete bez větších zásahů klidně zvětšit, protože původní otvor byl mnohem větší. Platí nicméně, že tuto zeď neodstraníte.

Ve vnitrobloku vás nečeká žádné rušivé překvapení v podobě restaurací a podobně. Překvapení je jediné milé - můžete tu zaparkovat a jsou tu garáže, díky jimž má SVJ značný příjem z pronájmu. Pohyb aut je možný přes opravený průjezd.

Pokud jste z jiných domů zvyklý na změť trubek, které lemují celé společné části domu, pak tady čeká změna. Vše je nové, upravené, schované a čisté.

Zásadní novinky se domu nevyhnou ani v následujících letech. Řeší se zateplení boční stěny domu a také výstavba výtahu. Prostor přes ulici, kde je nové nádraží, bude mezi nádražní budovou a Bubenskou věnováno parkové úpravě. Veškeré další výstavba bude pokračovat až za nádražím ( tedy od do vzduchu se tyčící plastiky sochaře Aleše Veselého a dál). Do oken vám tedy žádný mrakodrap stínit nebude.

Ačkoliv je dům na spodním okraji Letné, k parku s Letenským zámečkem se dostanete za necelý kilometr chůze. Do Stromovky pak za 700 m.

Z hlediska dopravní dostupnosti je dům umístěný skvěle. Na Strossmayerovo náměstí 500 m, na metro Vltavská 450 m a na nádraží Holešovice 900 m. Nádraží Bubny pak doslova přes ulici.

Holešovice jsou zajímavé i na druhé straně, kde zažívá svůj nový zlatý věk holešovická tržnice a její okolí. Ta se postupně transformuje do centra služeb. Od domu sem doběhnete za necelý kilometr.

Super zprávou pro ty, kdo potřebují na druhý břeh, je v červenci 2023 otevřená nová lávka HolKa. Do Karlína na kole a během pár minut? Žádnej problém. Karlínské náměstí je necelé dva kilometry od bytu (přes lávku). A až budete chtít po práci jen tak skočit posedět a trochu si pokouřit, vybrat si můžete z mnoha parčíků, kterými jsou Holešovice poseté. Jedním takovým docela známým "parčíkem" je třeba nedaleká Stromovka.

Adresa bytu:
Bubenská 249/27, 170 00 Praha 7 - Holešovice

Insert Image
Insert Image

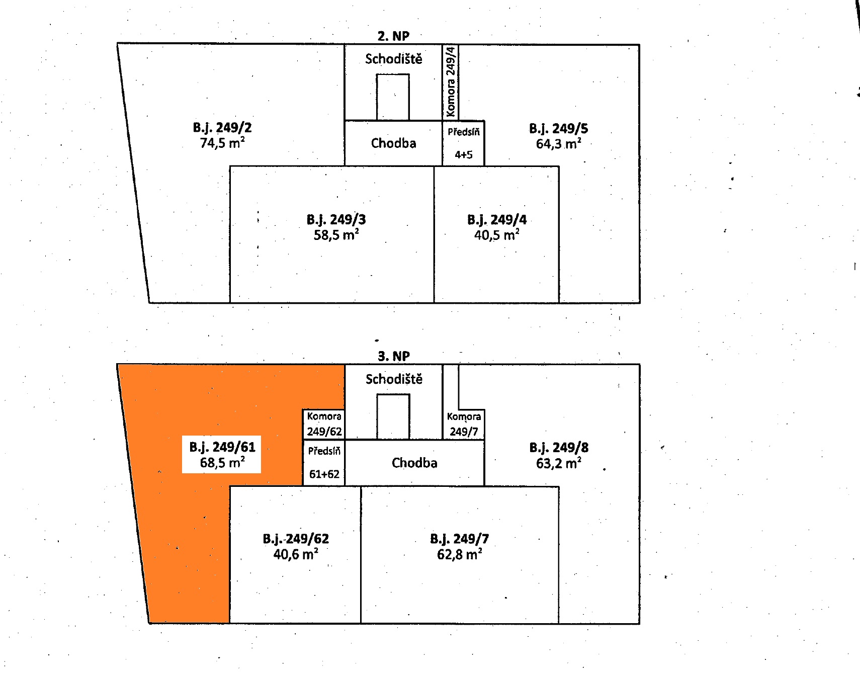
Půdorys bytu 

Plánek podlaží

Vymezení jednotky

Poplatky 2025

Insert Image
Insert Image

rfwbs-slide

Reference

Co o mně říkají klienti?

Copyright © 2018. Všechna práva vyhrazena.

Vytvořil Tomáš Hlad.