Pořádný kus historie přímo u vás doma
Ať už jste milovník historie, romantik nebo zkrátka jen člověk, který má rád hezké a zajímavé věci - město Kouřim by nemělo ujít vaší pozornosti. Je specifické svým rozsáhlým tajuplným náměstím a z vlastní zkušenosti můžu říct, že tu zažijete nevídané. Zlí jazykové tvrdí, že za to může ta láhev prosecca, kterou jsem tu jednoho večera zpracoval, ale o tom až osobně. Zpátky do reality. Místo, kde se protínají doby napříč staletími, vás totiž čeká nejen ve městě samotném, ale dokonce na vašem samotném dvorečku. Hranici pozemku tvoří zepředu zrekonstruovaný dům, zatímco z druhé strany - a teď se podržte - kus autentického středověkého opevnění s baštou ze 13. století. Kdo miluje strukturu starobylého kamene, ten tady u nás zažije záchvat blaha. Zepředu nenápadný domek, který z ulice absolutně neprozrazuje svoje hlavní tajemství. Nechává si ho pěkně pro sebe, potažmo pro vás. Domů koupíte všude habaděj, ale pakliže chcete něco skutečně unikátního a s přidanou hodnotou, kterou lze jen stěží vyčíslit, v ulici Kolínská naleznete svoje nové útočiště. Staré známé heslo ,,Můj dům, můj hrad!" není v tomto případě pouhé klišé, ale prostá a zcela samozřejmá skutečnost. Až si na terase dáte první kávu s pohledem na vaši hradbu, dost možná vám na mysli přijde, že navzdory všem strastem je život jednoduše krásnej. Ve správném domě ano.
Každá pohádka má své záporné hrdiny, ale v našem případě v ní Polorozpadlík nebo Domopodmáčník nevystupuje. Původní domek se 75 cm tlustou zdí byl kompletně opraven a před 10 lety zvýšen o jedno podlaží, vše pochopitelně pod schválením památkářů. V loňském roce dostal dům nadílku v podobě nových oken do ulice a nových vstupních dveří. Neznamená to, že na něm není do čeho investovat, ostatně těžko budete hledat dům, na kterém se něco nenajde. Bydlet tu ale můžete bez starostí a okamžitě, protože je vše funkční. Žádná stará elektřina, žádné staré topení nebo nedostatečná střešní izolace. Vše bylo uděláno pěkně od podlahy, o čemž svědčí hromada fotek, které jsou z průběhu celé akce k dispozici. Dům byl využíván dvougeneračně a ačkoliv s plochou 151 m2 nejde o žádného obra, kdo chce mít oddělenou kancelář, studio nebo odlifrovat děti z dohledu, ten si tady na své přijde. Dole vás čekají 4 místnosti, nahoře pak 3. Na každém podlaží vlastní koupelna i kuchyně. A až se uprostřed rozpáleného léta vrátíte z práce, můžete rovnou skočit do bazénu. Ten dostal v posledních 2 letech komplet novou technologii a schválně mi řekněte, kdo měl to štěstí se koupat v bazénu ve stínu kamenných hradeb.
Pro domeček nyní hledáme nového majitele a byli bychom skutečně rádi, kdyby se o něj ucházel někdo, kdo ho bude s láskou opečovávat. Neprodáváme totiž byt v paneláku, aby nám bylo jedno, co se s ním bude dál dít. Současná majitelka se navzdory pejskům snažila dům maximálně opečovávat a vložila do něj nejen velkou dávku peněz, ale také energie. Kdy by snad nabyl dojmu, že tady ten makléř žvatlá řeči a přitom stačí akorát vyložit prachy na dřevo, šeredně by se pletl. Ne všude se svět točí jenom kolem prachů. Rozhodně ne tedy v domě, jehož hradby pamatují přes 700 let divoké historie. Já se k tomu stavím s pokorou. Budeme rádi, když to stejné půjde i z vás.
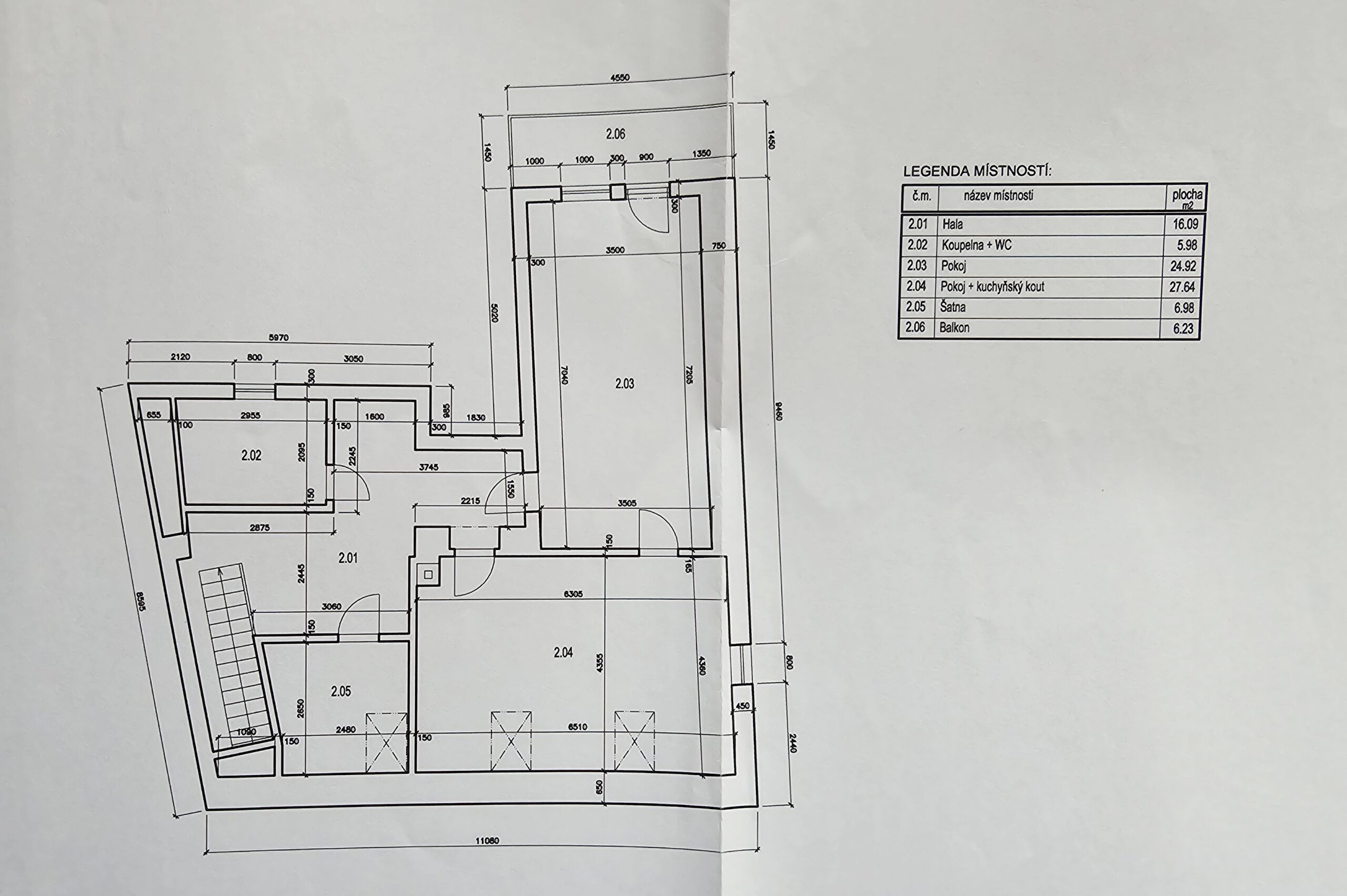
2x koupelna | 2x kuchyně | 2 podlaží
Dole 2+1 | Nahoře 3+kk | sklípek
Plocha dohromady 151 m2
Rekonstrukce 2015 | Okna do ulice 2025
Pozemek 296 m2 | Ohraničeno hradbou
Dochované opevnění z roku 1271
Plynový kotel | Vodovod | Kanalizace
Bazén s novou technologií
150 m od náměstí
7.990.000 Kč
Virtuální prohlídka domu
Abyste nemuseli studovat plánky a lovit ve fotkách, máme pro vás připravený model domu. Ten si můžete projít na displeji i s nasazenými VR brýlemi.
Kouřim je z dnešního pohledu sice malá, ale má obrovský historický význam a skutečně bohatou plejádu událostí. Místo bylo osídleno již před 5000 lety a postupně rozkvetlo do jednoho z nejvýznamnějších královských měst. Následoval poměrně pohnutý osud, který však v polovině 19. století opět nabral pozitivní směr. Dnes zde žije zhruba 2.000 obyvatel, kteří se mohou těšit z nádherného dlážděného náměstí (přes 16.000 m2), pod kterým je hromada tajemství. Rozsah sklepení a chodeb, které se pod ním ukrývají, je dodnes neprobádán.
Kus této nádherné a mnohasetleté historie může být nově součástí vašeho života. Nejen blízkým okolím, vy se jím doslova můžete obklopit. Zbytek městského opevnění a středověké bašty ze 13. století totiž tvoří hranici pozemku.
Nádherná kamenná věž a zeď jsou pochopitelně nemovitou kulturní památkou. Pohledy z terasy u hlavní ložnice jsou jednoduše fantastické.
Tady je ranní káva skutečně magická. A co teprve večery, kdy si staleté kamenné zdivo nasvítíte. Plocha terasy je 6,23 m2 a stačí tak akorát k pěknému posezení. Orientace je na severovýchod, takže se tu v létě neusmažíte.
Hlavní ložnice je plochou největší. Její velikost je 25 m2, takže bez potíží pojme i velkou postel a ještě zbyde místo na pracovní kout. Výška v místě, kde se stěna láme do zkosení střechy, je 1,35 metru.
Horní obývák je v celém domě největší místností. 28 m2 a celkem 3 okna - 2 jsou střešní a 1 klasické svislé.
Vepředu gauč, vedle pracovna, pak jídelna a nakonec prostor kuchyně. Ta je z roku 2015, stejně tak jako celé podlaží tohoto domu. Původně šlo o malý polorozpadlý domek, který však byl kompletně zrekonstruován.
Z chodby je přístup do všech místností horního bytu a nabízí dost místa pro vestavěný nábytek. Plocha chodby je 16 m2.
Koupelny jsou v domě dvě, tato je větší. Má okno do zahrady a velikost 6 m2. V obou koupelnách je podlahové topení.
Nejmenším pokojem druhého podlaží je místnost, která měla původně fungovat jako šatna, nakonec se ale osvědčila jako ložnice. Plocha je 7 m2 a je tu dostatek světla díky velkému střešnímu oknu.
Seběhneme po schodech dolů. Místnost, která se dnes využívá jako hala, je v plánech původně zamýšlená jako obývák. Plocha je 13 m2. Do celkové dispozice pokoj započítávám, ale pro obývák objektivně nepostačuje. Za závěsem pod schodištěm je pak ještě skladový prostor.
Ve spodní koupelně je tentokrát rohová vana. Okénko je malé, ale je tu a to se počítá. Zbylo dokonce místo na pračku a sušičku.
Vstupní chodba má další malý skladík za závěsem. V těchto prostorách domu vás všude čeká dlažba, pod kterou je podlahovka.
Vstupní dveře včetně oken do ulice jsou nové - výměna proběhla v roce 2024. Tloušťka obvodové zdi domu je solidních 75 cm.
Divoké dorostenecké doupě je hned v přízemí a jeho velikost je 16 m2. Navazuje na něj další místnost, která je však plná věcí. Je ještě o něco větší - má 17 m2 a pod ní se nachází původní sklípek.
A to nejlepší nakonec? Zahrádka. Ta rozhodně není pro ty, kdo potřebují lán pole a hromadu stromů. V tomto případě je velikost pozemku za domem zhruba 185 m2 a z celé severní a východní strany ho ohraničuje část dochovaného městského opevnění.
Bazén se sem ale vejde. Má nové tepelné čerpadlo s filtrací (2023) a solinátor (2024). Vodu si můžete ohřát klidně na 30°C. V zadní části je pak perfektní zázemí pro milovníky grilování.
U bazénu je pak ještě teráska pro posezení. Vážně to tady má atmosféru a kdo umíte hrát na kytaru, u večerního táboráku si jistě užijete svých pár chvilek poezie 🙂
Tak jako u kteréhokoliv jiného domu - nečekejte od něj, že je dokonalý. Někomu se nebude líbit jeho barva, někomu přijde malý pokoj. Odpárat mu ale rozhodně nemůžete, že se řadí mezi ty nejunikátnější nemovitosti na prodej. Přitom by vás to zepředu vůbec nenapadlo.
Ikonické náměstí, jehož tvar je dán původní gotickou zástavbou domů. Poprvé bylo vydlážděno před 500 lety. Současná dlažba už má na hrbu skoro 200 let. Doporučuji tady nechodit v podpatkách, na ty se tehdy nemyslelo.
Historické jádro města, do kterého spadá i tento dům (už ve 13. století byla oblast za městskými hradbami), je skvěle patrné na fotce z dronu. Do centra Prahy je to necelých 45 km.
Kolínská 54, 281 61 Kouřim
Vzdálenosti od domu:
BUS Kouřim | 700 m
(linka 662, 821, 822, 824, 888, 889)
Český Brod | 15 km
Kolín | 21 km
Kutná Hora | 29 km
Praha - centrum | 45 km - 60 min vlakem
V Kouřimi: ZŠ, MŠ, ZUŠ, večerky, restaurace
Půdorysy domu
Mapa pozemku

































































